电脑桌面
添加小米粒文库到电脑桌面
安装后可以在桌面快捷访问

巴歇尔槽尺寸VIP免费

巴歇尔槽尺寸_第1页
1/6
巴歇尔槽尺寸_第2页
2/6
巴歇尔槽尺寸_第3页
3/6
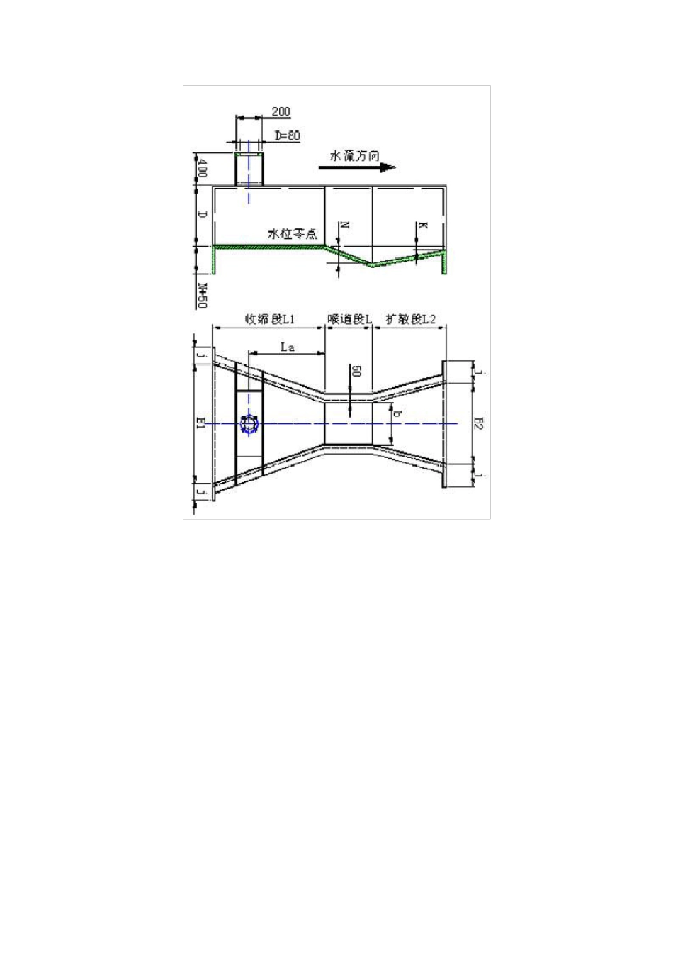
说明: 2 符号说明:b 为喉道宽,B1 为进水渠道宽,B2 为出水渠道宽,L 为喉道长,L1 为收缩段,L2 为扩散段, 2 堰槽修建及使用条件:B>=b,h/p<2.5,h>0.03m,p>0.1m 2 圆圈位置为探头安装位置示意图 二、技术参数: 1、技术参数: 序号 流量范围(吨/小时) 适用渠道mm 水位范围(mm) 临界 淹没度% Q(min) Q(max) >宽×高 h(min) h(max) 1 0.3 19.4 >200×250 15 210 0.5 2 0.6 47.5 >250×300 15 240 0.5 3 2.8 115.6 >300×600 30 330 0.5 4 5.4 399.6 >450×800 30 450 0.6 5 9.0 903.6 >600×1000 30 600 0.6 6 12.6 1440.0 >1000×1200 30 750 0.6 2、常用规格尺寸:(单位:mm) 序号 喉道段 收缩段 扩散段 墙高 流量参数 b L N B1 L1 La B2 L2 K D C n 1 25 76 29 167 356 237 93 203 19 230 217 1.550 2 51 114 43 214 406 271 135 254 22 260 435 1.550 3 76 152 57 259 457 305 178 305 25 460 638 1.550 4 152 305 114 400 610 407 394 610 76 610 1372 1.540 5 228 305 114 575 864 576 381 457 76 770 1927 1.530 6 300 600 230 780 1350 902 600 920 80 800 2444 1.521 3、成品尺寸: 序号 类型 B 值(mm) 长*宽*高(mm) 最大流量(m3)/小时 1 标准型 25 835*267*265 19.44 2 标准型 51 773*314*305 47.52 3 标准型 76 914*359*517 115.56 4 标准型 152 1525*500*730 399.6 5 标准型 228 1630*675*890 903.6 6 标准型 250 2845*980*1060 900 7 标准型 300 2870*940*1200 1440 8 标准型 450 2945*1120*1200 2268 9 标准型 600 3020*1300*1200 3060 10 标准型 750 3095*1480*1200 3960 11 标准型 900 3170*1660*1200 4500 12 标准型 1000 3200*1780*1250 5400 13 标准型 1200 3320*2020*1250 7200 14 标准型 1500 3470*2380*1250 9000 15 标准型 1800 3620*2740*1250 10800 三、安装步骤: 1、明渠土建安装准备 在安装前首先察看地形,进水口必须高于出水口,确保有水位差,出水畅通,这是成功安装巴歇尔槽明渠流量计的关键。 A、巴歇尔槽的尺寸与渠道安装有关,请用户根据现场情况而定。 B、巴歇尔槽的中心线要与渠道的中心线重合,使水流进入巴歇尔...

1、当您付费下载文档后,您只拥有了使用权限,并不意味着购买了版权,文档只能用于自身使用,不得用于其他商业用途(如 [转卖]进行直接盈利或[编辑后售卖]进行间接盈利)。
2、本站所有内容均由合作方或网友上传,本站不对文档的完整性、权威性及其观点立场正确性做任何保证或承诺!文档内容仅供研究参考,付费前请自行鉴别。
3、如文档内容存在违规,或者侵犯商业秘密、侵犯著作权等,请点击“违规举报”。

碎片内容

巴歇尔槽尺寸

确认删除?
VIP
微信客服
  • 扫码咨询
会员Q群
  • 会员专属群点击这里加入QQ群
客服邮箱
回到顶部