电脑桌面
添加小米粒文库到电脑桌面
安装后可以在桌面快捷访问

型钢悬挑卸料平台计算书VIP免费

型钢悬挑卸料平台计算书_第1页
1/11
型钢悬挑卸料平台计算书_第2页
2/11
型钢悬挑卸料平台计算书_第3页
3/11
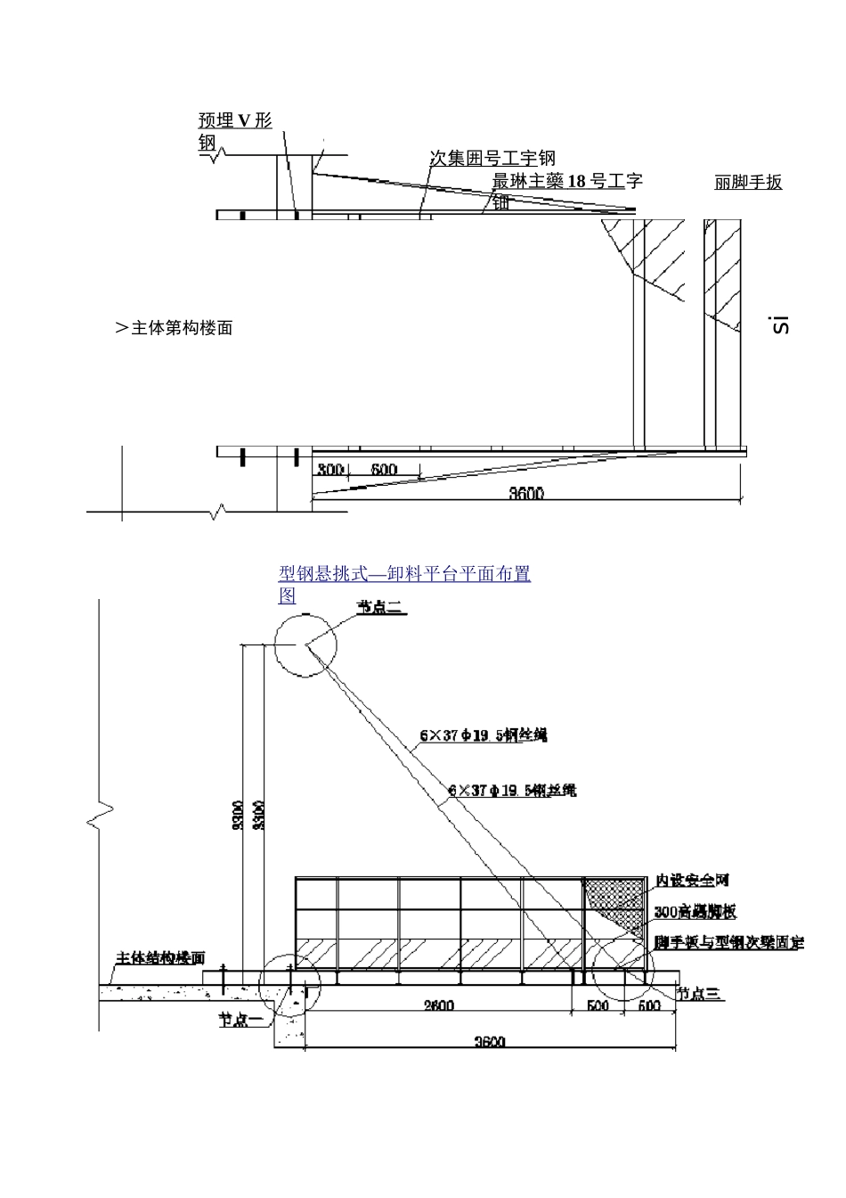
型钢悬挑卸料平台计算书计算依据:1、《建筑施工高处作业安全技术规范》JGJ80-20162、《钢结构设计规范》GB50017-2014、构造参数卸料平台名称1 卸料平台卸料平台类型类型一:主梁垂直建筑外墙平台长度 A(m)3.6平台宽度 B(m)2卸料平台与主体结构连接方式U 形钢筋主梁间距 L1(m)2次梁间距 s(m)0.6次梁外伸长度 m(m)0内侧次梁离墙水平距离 a(m)0.3外侧钢丝绳离墙水平距离 a1(m)3.1外侧钢丝绳拉绳点与平台垂直距离hi(m)3.3内侧钢丝绳离墙水平距离 a2(m)2.6内侧钢丝绳上部拉绳点与平台垂直距离 h2(m)3.3钢丝绳夹个数3+ 卜 Q二、荷载参数面板自重 Gk1(kN/m2)0.39次梁自重 Gk2(kN/m)0.2362主梁自重 Gk3(kN/m)0.2362栏杆、挡脚板类型栏杆、冲压钢脚手板挡板栏杆、挡脚板自重 Gk4(kN/m)0.15安全网设置不设置安全网施工活荷载 Qk1(kN/m2)2堆放荷载 Pk(kN)5堆放荷载作用面积 S(m2)2施工活荷载动力系数1.3三、设计简图预埋 V 形 钢次集囲号工宇钢最琳主藥 18 号工 字钿丽脚手扳>主体第构楼面si型钢悬挑式 — 卸料平台平面布置 图7.608kNr?m7.605kN/m7.608kN/m四、面板验算模板类型冲压钢脚手板模板厚度 t(mm)5截面抵抗矩 W(cm3)4.17抗弯强度设计值[f](N/mm2)205面板受力简图如下:UI]]]]]]]]]]]]]]]]]]]]600.■—.■-E00600计算简图(kN)取单位宽度 lm 进行验算q=1.2xGkiXl+1.4x(1.3xQKi+Pk/S)xl=1.2x0.39xl+1.4x(1.3x2+5/2)xl=7.608kN/m抗弯验算:Mmax=0-100XqXS2=0-100X7-608X0-62=0-274kN^mo=Mmax/W=0.274xl06/(4.17xl03)=65.681N/mm2v[f]=205N/mm2面板强度满足要求!五、次梁验算次梁类型工字钢次梁型钢型号18 号工字钢型钢悬挑式—卸料平台侧立面图节点一(1)[2]0截面惯性矩 Ix(cm4)1660截面抵抗矩 Wx(cm3)185抗弯强度设计值[f](N/mm2)205弹性模量 E(N/mm2)206000次梁内力按以两侧主梁为支承点的简支梁计算:承载能力极限状态:qi=(1.2xGk]+1.4x1.3xQk1)xs+1.2xGk2=(1.2x0.39+1.4x1.3x2)x0.6+1.2x0.2362=2.748kN/mp1=1.4xPk=1.4x5=7kN正常使用极限状态:q2=(Gk1+Qk1)xs+Gk2=(0.39+2)x0.6+0.2362=1.67kN/mP2=Pk=5kN1、抗弯强度7kN2.74STTTTTTTTTTTTTTTTTTTVVv'I1VVVVV心l[l心I*i11*i1;]]]]]]]]]\、\ ■1,■I■,■■I■I12000.■—计算简图(kN)Mmax=q1(L12/8-m2/2)+p1xL1/4=2.748(22/8-02/2)+7x2/4=4.874kN.mo=Mmax/(YxWx)=4.874x106/(1.05x185x103)=25.092N/mm2v[f]=205N/mm2次梁强度满足要求!2、挠度验算5kN1.67F心I...

1、当您付费下载文档后,您只拥有了使用权限,并不意味着购买了版权,文档只能用于自身使用,不得用于其他商业用途(如 [转卖]进行直接盈利或[编辑后售卖]进行间接盈利)。
2、本站所有内容均由合作方或网友上传,本站不对文档的完整性、权威性及其观点立场正确性做任何保证或承诺!文档内容仅供研究参考,付费前请自行鉴别。
3、如文档内容存在违规,或者侵犯商业秘密、侵犯著作权等,请点击“违规举报”。

碎片内容

型钢悬挑卸料平台计算书

wxg+ 关注
实名认证
内容提供者

该用户很懒,什么也没介绍

确认删除?
VIP
微信客服
  • 扫码咨询
会员Q群
  • 会员专属群点击这里加入QQ群
客服邮箱
回到顶部