电脑桌面
添加小米粒文库到电脑桌面
安装后可以在桌面快捷访问

LED大屏钢结构如何规范施工VIP免费

LED大屏钢结构如何规范施工_第1页
1/11
LED大屏钢结构如何规范施工_第2页
2/11
LED大屏钢结构如何规范施工_第3页
3/11
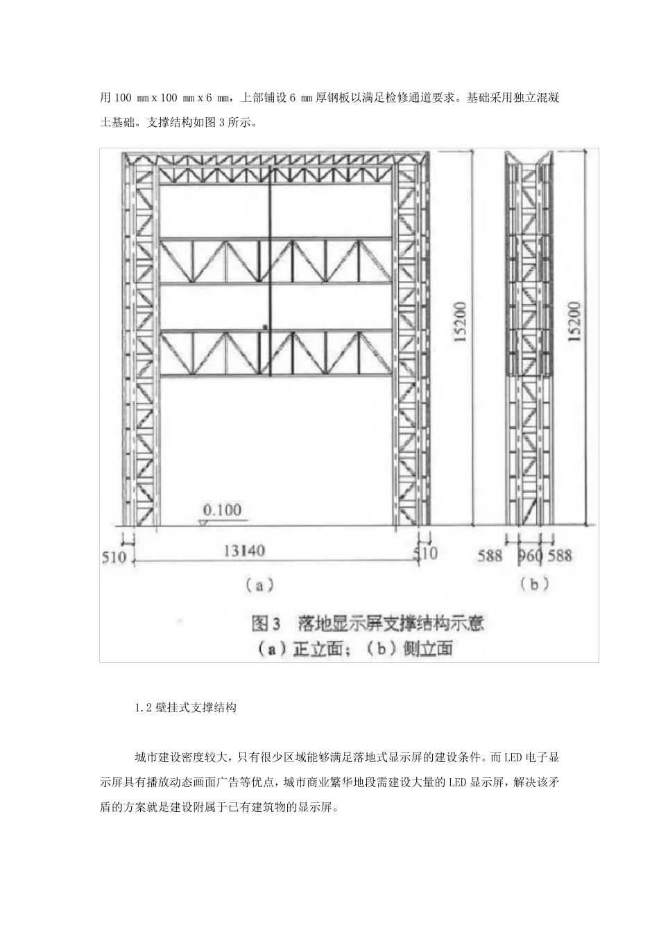
LED 大 屏 钢 结 构 如 何规范施工 随着多媒体技术的发展,led 电子显示屏广泛应用于商业展示,产生良好的广告效应,设计优秀的显示屏支撑结构同时可成为城市建筑物中靓丽的风景线。结合显示屏的视距要求以及投资地域等特点通常会根据建设地点及建筑物要求进行结构类型设计。led 显示屏通常采用独立落地形式或附属建筑物进行设置(图1,2)。针对不同显示屏形式的支撑结构,应准确分析其受力特性选用相应的结构形式,本文将对LED 电子显示屏支撑结构进行分类总结,提出各种支撑结构方案适用的范围、设计难点以及相应的优化设计方案和构造措施。 图1 落地显示屏图 图2 屋顶显示屏图 1、显示屏支撑结构类型 1.1 落地式支撑结构 落地式LED 电子显示屏多设置于城市广场或重要交通交叉处。分析落地显示屏支撑结构受力特性可知,支撑结构宜采用空间钢桁架结构。在基础上设置4 根钢柱组合形成空间格构柱。上部屏体部分采用多层水平空间桁架结构,既可满足结构受力要求,又可满足检修通道的设置。 义乌市宾王路led 显示屏屏体面积屏体有效尺寸为13.4mx8.6 m,属于典型落地式支撑结构,采用格构柱形成显示屏支撑结构体系。钢格构柱4 根主肢采用300 mmx300 mmx 10 mm,水平横材采用200mm×100 mmx6mm、斜腹杆为100 mm×100mm×6mm,结合格构柱内部空间设置检修上人通道;屏体背侧构件采用钢桁架结构,上弦杆、下弦杆、腹杆均采用100 mmx100 mmx6 mm,上部铺设6 mm 厚钢板以满足检修通道要求。基础采用独立混凝土基础。支撑结构如图 3 所示。 1.2 壁挂式支撑结构 城市建设密度较大,只有很少区域能够满足落地式显示屏的建设条件。而 LED 电子显示屏具有播放动态画面广告等优点,城市商业繁华地段需建设大量的 LED 显示屏,解决该矛盾的方案就是建设附属于已有建筑物的显示屏。 根据建筑物的建设条件、改造条件以及建筑物高度通常将附属于建筑物的LED 显示屏支撑结构分为壁挂式显示屏支撑结构和楼顶式显示屏支撑结构。 壁挂式显示屏支撑结构多采用单层钢结构固定于主体结构侧面,内部设置检修通道。中国电信温州分公司南站大楼 LED 大屏幕工程显示屏 24.0 mx 13.4m,属于典型壁挂式显示屏支撑结构,采用方钢管 160 mmx160 mmx6 mm 形成节点体系,槽钢 14a 上铺设6 mm厚压纹钢板形成检修通道,各节点通过 6 个 M16 锚栓锚固于主体结构框架柱侧。该工程正立面及侧立面见图 4。 1.3...

1、当您付费下载文档后,您只拥有了使用权限,并不意味着购买了版权,文档只能用于自身使用,不得用于其他商业用途(如 [转卖]进行直接盈利或[编辑后售卖]进行间接盈利)。
2、本站所有内容均由合作方或网友上传,本站不对文档的完整性、权威性及其观点立场正确性做任何保证或承诺!文档内容仅供研究参考,付费前请自行鉴别。
3、如文档内容存在违规,或者侵犯商业秘密、侵犯著作权等,请点击“违规举报”。

碎片内容

LED大屏钢结构如何规范施工

您可能关注的文档

确认删除?
VIP
微信客服
  • 扫码咨询
会员Q群
  • 会员专属群点击这里加入QQ群
客服邮箱
回到顶部