电脑桌面
添加小米粒文库到电脑桌面
安装后可以在桌面快捷访问

如何画施工总平面图

如何画施工总平面图_第1页
1/6
如何画施工总平面图_第2页
2/6
如何画施工总平面图_第3页
3/6
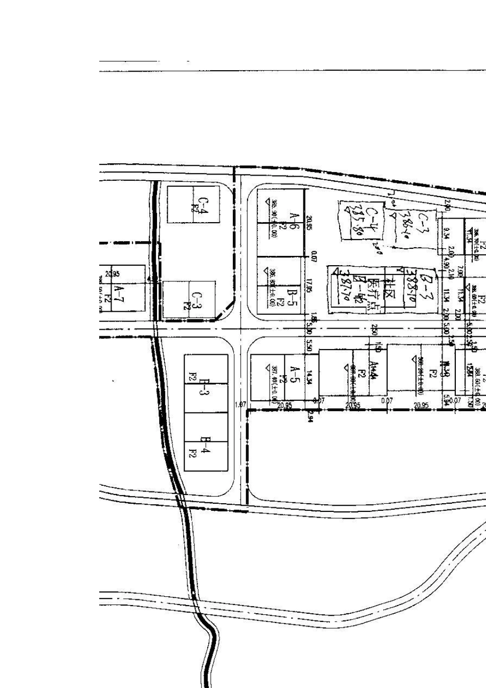
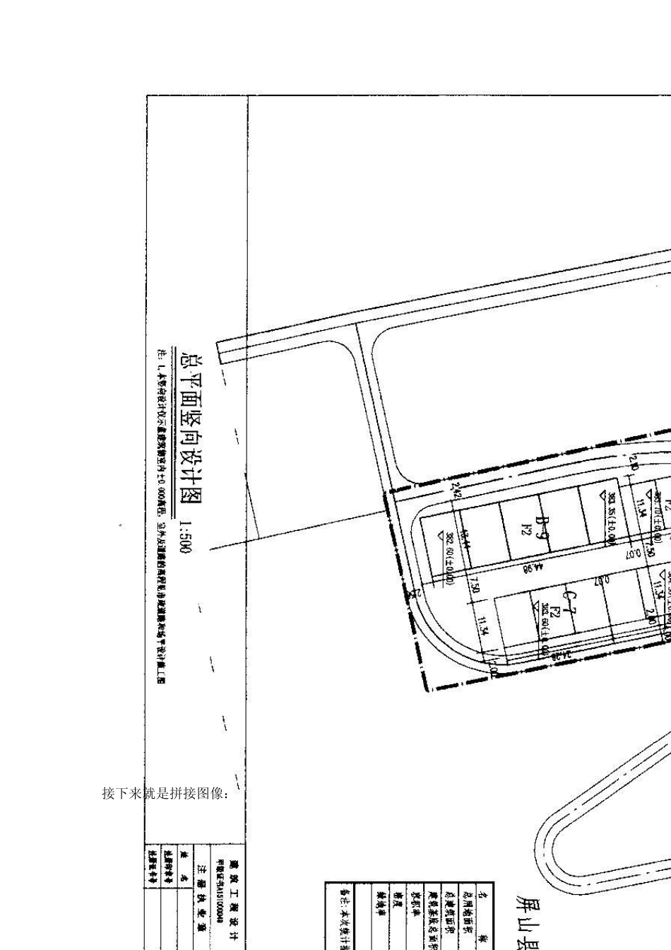
如何画施工总平面图 每当要画施工总平面图的时候你是不是很恼火?没有具体尺寸,没有具体坐标,根本不知道如何下手! 呵呵,这里教大家一个简便的方法,这很快就能把复杂的总平面图画出来。 首先你需要有一台打印机,可以扫描文件,如果没有,你可以用照相机或者手机也行,只要像素高。把你要画的图扫描下来,图纸一般很大,你可以把它分成几块来扫描,,扫描出来的图片一定要清楚哈,不然就会影响你后面的操作。 由于扫描下来的图片是分块的,所以需要将几张图拼接起来,这里可以用 Photoshop 或者其他图像软件如美图秀秀或可牛影响等软件来拼接起来。 图片拼接后,就需要将图片放进 CAD 软件中了,这里直接是不能用 CAD 软件打开的,我们可以打开 CAD 软件,点击“插入”,然后“光栅图像参照”,选择刚拼接好的图片,插入到 CAD,然后可以将图片缩放到适合的大小。如下 扫描图像: 接下来就是拼接图像: 接下来就将图片按上面的方法插入到 CAD 中,建好图层就可以画了,如下 用多段线命令按着图片是的线条跟着画下来就OK 了,最后将画好的CAD 移动出来,做好标注等,一张施工总平面图就画好了,这样速度很快的哦,呵呵,你试一下吧!

1、当您付费下载文档后,您只拥有了使用权限,并不意味着购买了版权,文档只能用于自身使用,不得用于其他商业用途(如 [转卖]进行直接盈利或[编辑后售卖]进行间接盈利)。
2、本站所有内容均由合作方或网友上传,本站不对文档的完整性、权威性及其观点立场正确性做任何保证或承诺!文档内容仅供研究参考,付费前请自行鉴别。
3、如文档内容存在违规,或者侵犯商业秘密、侵犯著作权等,请点击“违规举报”。

碎片内容

如何画施工总平面图

确认删除?
VIP
微信客服
  • 扫码咨询
会员Q群
  • 会员专属群点击这里加入QQ群
客服邮箱
回到顶部