电脑桌面
添加小米粒文库到电脑桌面
安装后可以在桌面快捷访问

(完整版)门式脚手架计算书

(完整版)门式脚手架计算书_第1页
1/13
(完整版)门式脚手架计算书_第2页
2/13
(完整版)门式脚手架计算书_第3页
3/13
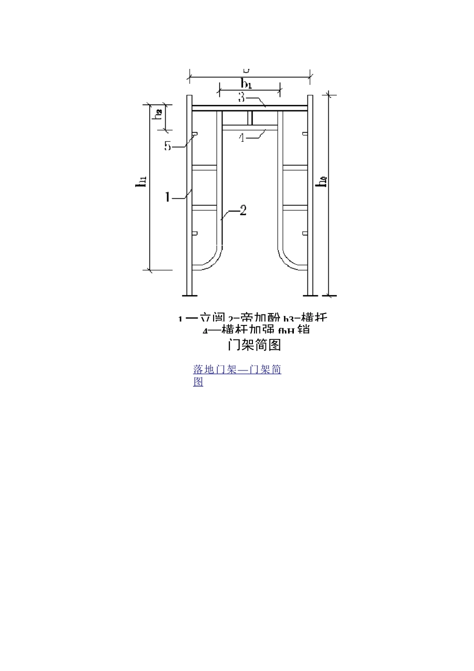
搭设高度 H(m)48步距 h(mm)1950门架纵距 l(mm)18307 + 卜 、匸/7二、荷载参门式脚手架计算书计算依据:1、《建筑施工门式钢管脚手架安全技术规范》JGJ128-20102、《建筑地基基础设计规范》GB50007-20113、《建筑结构荷载规范》GB50009-20124、《钢结构设计规范》GB50017-2003、基本参数门架自重 Gk1(kN)0.224交叉支撑自重 Gk2(kN)0.04水平架自重 Gk3(kN)0.165脚手板自重 Gk4(kN)0.184连接棒自重 Gk5(kN)0.006锁臂自重 Gk6(kN)0.008剪刀撑钢管自重 Gk7(kN/m)0.033水平加固杆自重 Gks(kN/m)0.033直角扣件自重 Gk9(kN)0.0135旋转扣件自重 Gk10(kN)0.0145栏杆、挡脚板自重 Gk11(kN/m)0.015安全网自重 Gk12(kN/m2)0.05施工荷载 Qk(kN/m2)3同时施工层数 n2基本风压®o(kN/m2)0.3风压高度变化系数 uz(立杆稳定性、连墙件稳定性)0.74,1.21风荷载体型系数 Us0.8三、设计简图1 一立闿 2-帝加酚 h3-横托4—横杆加强 fhH销门架简图落地门架 — 门架简 图落地门架」门架平面图四、门架稳定性计算门架型号MF1219水平架设置2 步 1 设脚手板设置1 步 1 设剪刀撑设置4 步 4 跨剪刀撑钢管类型①48X3水平加固杆设置4 步 1 设水平加固杆类型①48X31、荷载计算每米高度脚手架构配件自重产生的轴向力标准值:NGki=(Gki+Gk2x2+Gk3xl/2+Gk4x2xl/1+6*5X2+6*6 乂2)/h=(0.224+0.040X2+0.165X1/2+0.184X2X1/1+0.006X2+0.0085X2)/1.950=0.402kN/m1/2 表示水平架设置 2 步 1 设I 税■T-itTlflBffpWlJWiB-WWFIio-Wn|?i1L-«BI13-^fcWh13-«h1/1 表示脚手板设置 1 步 1 设每米高度脚手架附件重产生的轴向力标准值NGk2=(Gk7xl/cosax2/4+Gk8xlxl/4+Gk9/4+Gk10x4/4+Gk11xl+G^xlxh)/h=(0.038x1.830/0.684x2/4+0.038x1.830x1/4+0.014/4+0.015x4/4+0.015x1.830+0.050x1.830x1.950)/1.950=0.15kN/m1/4 表示水平加固杆 4 步 1 设各施工层施工荷载产生的轴向力标准值:NQk=nxQkxbxl=2x3x1.219x1.83=13.385kN门架宽度 b,见门架型号编辑风荷载标准值:叫=叮叮叫=0.74x0.8x0.3=0.178kN/m2qk=®kx1=0.178x1.83=0.325kN/m风荷载产生的弯矩标准值:Mk=qkH12/10=0.325x3.92/10=0.494kN.m2、作用于门架的轴向力设计值不组合风荷载时:N=1.2(NGk1+NGk2)H+1.4NQk=1.2x(0.402+0.15)x33.6+1.4x13.385=40.975kN 组合风荷载时:Nw=1.2(NGk1+NGk2)H+0.9x1.4(NQk+2Mk/b)=1.2x(0.402+0.15)x33.6+0.9x1.4x(13.385+2x0.494/1.219)=40.123kN门架轴...

1、当您付费下载文档后,您只拥有了使用权限,并不意味着购买了版权,文档只能用于自身使用,不得用于其他商业用途(如 [转卖]进行直接盈利或[编辑后售卖]进行间接盈利)。
2、本站所有内容均由合作方或网友上传,本站不对文档的完整性、权威性及其观点立场正确性做任何保证或承诺!文档内容仅供研究参考,付费前请自行鉴别。
3、如文档内容存在违规,或者侵犯商业秘密、侵犯著作权等,请点击“违规举报”。

碎片内容

(完整版)门式脚手架计算书

wxg+ 关注
实名认证
内容提供者

该用户很懒,什么也没介绍

相关文档

确认删除?
VIP
微信客服
  • 扫码咨询
会员Q群
  • 会员专属群点击这里加入QQ群
客服邮箱
回到顶部