电脑桌面
添加小米粒文库到电脑桌面
安装后可以在桌面快捷访问

型钢悬挑卸料平台计算书

型钢悬挑卸料平台计算书_第1页
1/10
型钢悬挑卸料平台计算书_第2页
2/10
型钢悬挑卸料平台计算书_第3页
3/10
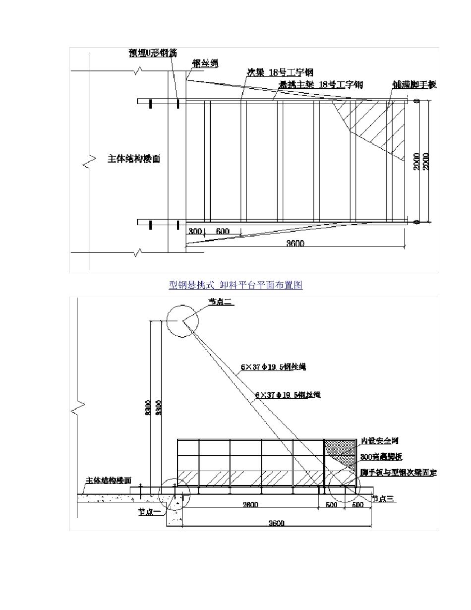
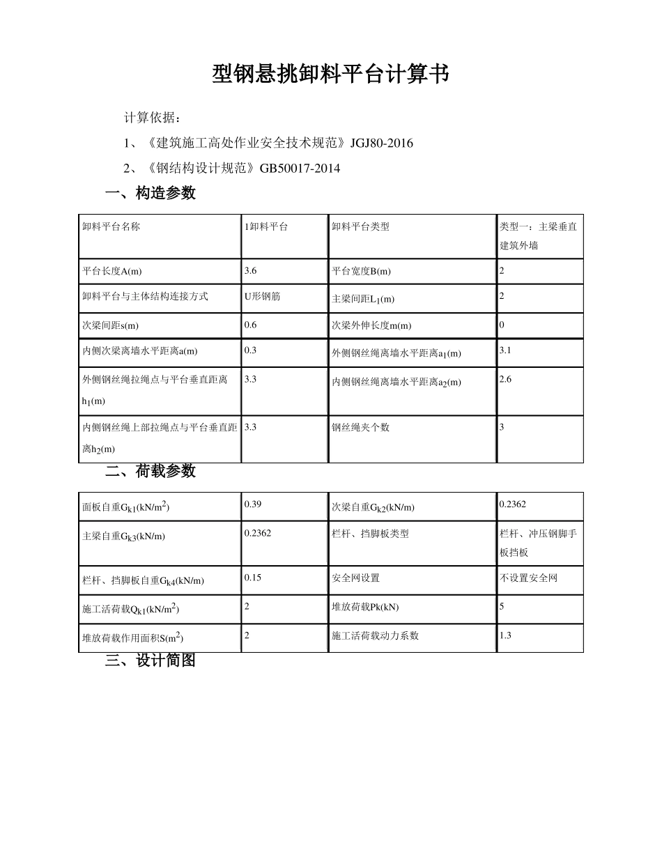
型钢悬挑卸料平台计算书计算依据:1、《建筑施工高处作业安全技术规范》JGJ80-20162、《钢结构设计规范》GB50017-2014一、构造参数卸料平台名称1卸料平台卸料平台类型类型一:主梁垂直建筑外墙平台长度A(m)卸料平台与主体结构连接方式次梁间距s(m)内侧次梁离墙水平距离a(m)外侧钢丝绳拉绳点与平台垂直距离h1(m)内侧钢丝绳上部拉绳点与平台垂直距 3.3离h2(m)钢丝绳夹个数33.6U形钢筋0.60.33.3平台宽度B(m)主梁间距L1(m)次梁外伸长度m(m)外侧钢丝绳离墙水平距离a1(m)内侧钢丝绳离墙水平距离a2(m)2203.12.6二、荷载参数面板自重Gk1(kN/m )主梁自重Gk3(kN/m)20.390.2362次梁自重Gk2(kN/m)栏杆、挡脚板类型0.2362栏杆、冲压钢脚手板挡板栏杆、挡脚板自重Gk4(kN/m)施工活荷载Qk1(kN/m )堆放荷载作用面积S(m )220.1522安全网设置堆放荷载Pk(kN)施工活荷载动力系数不设置安全网51.3三、设计简图型钢悬挑式_卸料平台平面布置图型钢悬挑式_卸料平台侧立面图节点一四、面板验算模板类型截面抵抗矩W(cm )3冲压钢脚手板4.17模板厚度t(mm)抗弯强度设计值[f](N/mm )25205面板受力简图如下:计算简图(kN)取单位宽度1m进行验算q=1.2×Gk1×1+1.4×(1.3×QK1+Pk/S)×1=1.2×0.39×1+1.4×(1.3×2+5/2)×1=7.608kN/m抗弯验算:Mmax=0.100×q×s2=0.100×7.608×0.62=0.274kN·mσ=Mmax/ W=0.274×106/(4.17×103)=65.681N/mm2<[f]=205N/mm2面板强度满足要求!五、次梁验算次梁类型截面惯性矩Ix(cm )抗弯强度设计值[f](N/mm )24工字钢1660205次梁型钢型号截面抵抗矩Wx (cm )弹性模量E(N/mm )2318号工字钢185206000次梁内力按以两侧主梁为支承点的简支梁计算:承载能力极限状态:q1=(1.2×Gk1+1.4×1.3×Qk1)×s+1.2×Gk2=(1.2×0.39+1.4×1.3×2)×0.6+1.2×0.2362=2.748kN/mp1=1.4×Pk=1.4×5=7kN正常使用极限状态:q2=(Gk1+Qk1)×s+Gk2=(0.39+2)×0.6+0.2362=1.67kN/mp2=Pk=5kN1、抗弯强度计算简图(kN)Mmax=q1(L12/8-m2/2)+p1×L1/4=2.748(22/8-02/2)+7×2/4=4.874kN.mσ=Mmax/(γxWX)=4.874×106/(1.05×185×103)=25.092N/mm2<[f]=205N/mm2次梁强度满足要求!2、挠度验算计算简图(kN)νmax=q2L14/(384EIx)(5-24(m/L1)2)+p2L13/(48EIx)=1.67×20004/(384×206000×1660×104)×(5-24(0/2)2)+5×20003/(48×206000×1660×104)=0.102mm<[ν]=L1/250=2000/250=8mm次梁挠度满足要求!3、支座反力计算承载能力极限状态:R1=q1×B/2=2.748×2/2=2.748kN正常使...

1、当您付费下载文档后,您只拥有了使用权限,并不意味着购买了版权,文档只能用于自身使用,不得用于其他商业用途(如 [转卖]进行直接盈利或[编辑后售卖]进行间接盈利)。
2、本站所有内容均由合作方或网友上传,本站不对文档的完整性、权威性及其观点立场正确性做任何保证或承诺!文档内容仅供研究参考,付费前请自行鉴别。
3、如文档内容存在违规,或者侵犯商业秘密、侵犯著作权等,请点击“违规举报”。

碎片内容

型钢悬挑卸料平台计算书

文库当当响+ 关注
实名认证
内容提供者

该用户很懒,什么也没介绍

确认删除?
VIP
微信客服
  • 扫码咨询
会员Q群
  • 会员专属群点击这里加入QQ群
客服邮箱
回到顶部