电脑桌面
添加小米粒文库到电脑桌面
安装后可以在桌面快捷访问

外爬架安拆技术交底

外爬架安拆技术交底_第1页
1/28
外爬架安拆技术交底_第2页
2/28
外爬架安拆技术交底_第3页
3/28
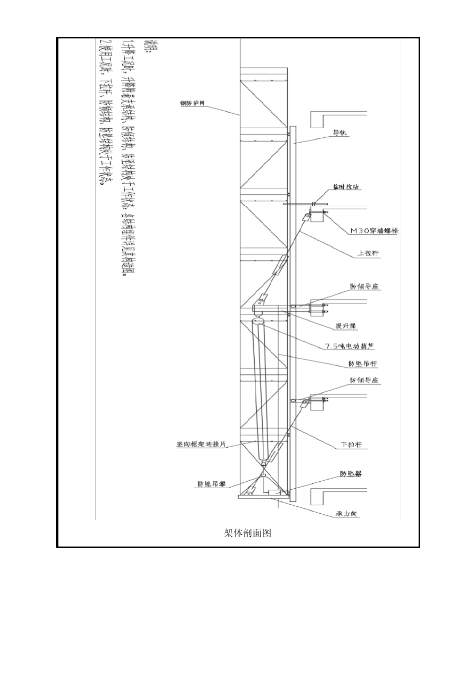
技 术 交 底 记 录工程名称交底部位交底对象五建新街坊 5 号院附着式升降脚手架安装与拆除项目管理人员、劳务负责人分部工程交底级别交底日期主体结构工程项目部一级2017 年 6 月 11 日交底内容:附着式升降脚手架安装与拆除1交底范围本工程在 1#、2#、3#、7#、12#楼使用附着式升降脚手架以保证施工安全、施工质量及施工进度。本工程使用的附着式升降脚手架为桁架导轨式爬架(以下简称“外爬架”),由架体、升降承力结构、防倾防坠装置和动力控制系统四部分构成。结构简单合理、使用方便安全且经济实用。架体部分,提升点处设置竖向主框架,竖向主框架底部由水平支承桁架相连;承力结构和防倾防坠装置安全可靠,受力明确;动力控制系统采用电动葫芦,并固定在架体上同时升降,避免频繁摘挂,方便实用。桁架导轨式爬架各项技术指标、各组成结构、构造符合《建筑施工安全检查标准》(JGJ59-2011)要求,已通过建设部组织的产品鉴定。1#、2#、3#、7#、12#楼标准层高均为 2.9 米,1#楼从地上四层结构开始搭设外爬架,2#、3#、7#、12#楼从地上五层结构开始搭设外爬架。机位布置简况如下表。序号1名称五建新街坊 5 号院 1#楼数量共布置 48 个机分 2 段进行提升位共布置 48 个机2五建新街坊 5 号院 2#楼分 2 段进行提升位共布置 50 个机五建新街坊 5 号院 3#楼分 2 段进行提升位分布34共布置 48 个机五建新街坊 5 号院 7#楼分 2 段进行提升位共设置 38 个机5五建新街坊 5 号院 12#楼分 2 段进行提升位2总体搭设要点2.1 施工时根据机位位置设置预留孔,将预埋管用扎丝捆牢在边梁钢筋上,每个机位在覆盖 4 个楼层的情况下每层需要设置 7 个预留孔,预留孔从楼板的高度下来 10公分做预埋,预留孔应与结构外表面垂直,其中心误差应小于 15mm,预留孔的安装位置详见架体剖面图、穿墙螺栓预埋孔图。穿墙螺栓预埋孔图架体剖面图架体防倾图2.2 架体底部采用标准连接杆搭设底部桁架,局部用脚手架钢管搭设底部桁架,局部搭设的地方已在图纸上标出,详见机位图纸,本工程中 1#、2#、3#、7#、12#楼局部用脚手架钢管搭设底部桁架的搭设要求:(1)搭设过程中严格控制立杆的垂直度,其垂直偏差不大于 4‰。(2)搭设过程中,立杆接长采用对接扣,相邻两立杆的接点不能在同一步层内,对接扣开口应朝内。(3)搭设过程中,各纵向横杆接长采用对接扣,相邻两杆的接点不得在同一立杆跨度内,且对接扣开口朝上。...

1、当您付费下载文档后,您只拥有了使用权限,并不意味着购买了版权,文档只能用于自身使用,不得用于其他商业用途(如 [转卖]进行直接盈利或[编辑后售卖]进行间接盈利)。
2、本站所有内容均由合作方或网友上传,本站不对文档的完整性、权威性及其观点立场正确性做任何保证或承诺!文档内容仅供研究参考,付费前请自行鉴别。
3、如文档内容存在违规,或者侵犯商业秘密、侵犯著作权等,请点击“违规举报”。

碎片内容

外爬架安拆技术交底

您可能关注的文档

确认删除?
VIP
微信客服
  • 扫码咨询
会员Q群
  • 会员专属群点击这里加入QQ群
客服邮箱
回到顶部