电脑桌面
添加小米粒文库到电脑桌面
安装后可以在桌面快捷访问

KOS25100液压系统详解

KOS25100液压系统详解_第1页
1/13
KOS25100液压系统详解_第2页
2/13
KOS25100液压系统详解_第3页
3/13
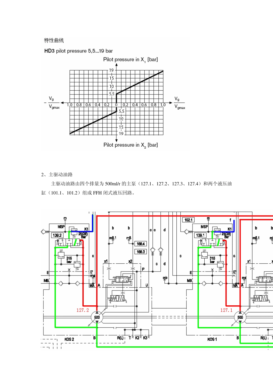
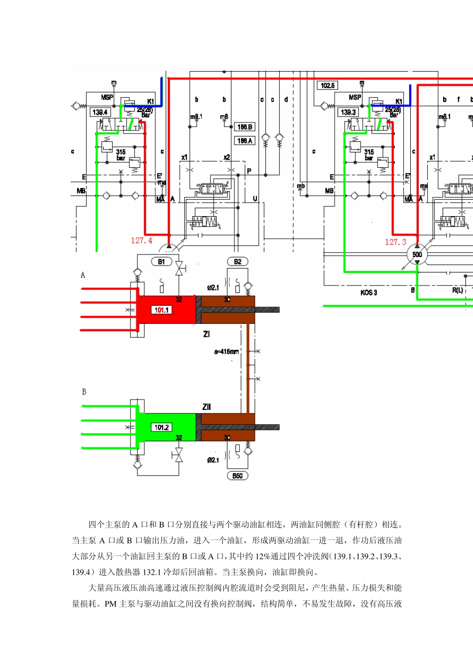
岱庄KOS25100HP泵液压系统详解 普茨迈斯特KOS25100HP 充填泵液压系统由主驱动液压系统、摆缸和HMC 阀系统、螺旋搅拌机系统、料斗辅助搅拌进料系统和液压油循环过滤系统5 个相互独立的液压系统组成。其中主驱动液压系统为FFH 闭式回路,其余为开式液压回路。 一、主驱动液压系统 主驱动液压系统又分为主驱动油路、控制油路、补油油路、冲程补偿油路和压力缓冲油路。 1、 主泵系统 主泵是Bosch Rex roth 公司生产的斜盘设计变量柱塞泵A4VSG500HD3,由先导压力控制并无级调速。 主泵斜盘的一侧控制腔始终与控制油(主泵高压口或外接)相通;先导油压力差X1—X2 可控制先导阀的开口,从而使控制油进入斜盘的另一侧控制腔。 一旦先导压力为零,泵斜盘控制机构在弹簧回中位机能下回零位;当控制压力为零时,泵斜盘控制机构也回零位。 泵在中位时,泵本身不能产生控制斜盘动作的压力油,这样即使 X1—X2 有压差先导阀能打开,泵仍不能输出压力油。为避免此问题,控制压力油口P 必须外接到其他油路,此外接油路能提供泵所需的最小控制压力油。一旦 PA 或 PB>P,控制压力油则由泵本身来提供。 本系统中,S 摆管恒压泵油路外接到了四个主泵的控制压力油口P。 先导油压力范围为5.5-19bar,泵输出特性曲线见下图。 2、主驱动油路 主驱动油路由四个排量为 500ml/r的主泵(127.1、127.2、127.3、127.4)和两个液压油缸(101.1、101.2)组成 FFH 闭式液压回路。 四个主泵的A 口和B 口分别直接与两个驱动油缸相连,两油缸同侧腔(有杆腔)相连。当主泵A 口或B 口输出压力油,进入一个油缸,形成两驱动油缸一进一退,作功后液压油大部分从另一个油缸回主泵的B 口或A 口,其中约12%通过四个冲洗阀(139.1、139.2、139.3、139.4)进入散热器 132.1 冷却后回油箱。当主泵换向,油缸即换向。 大量高压液压油高速通过液压控制阀内腔流道时会受到阻尼,产生热量、压力损失和能量损耗。PM 主泵与驱动油缸之间没有换向控制阀,结构简单,不易发生故障,没有高压液压油在换向阀中高速流动产生能量损耗和发热,可节能5%。 3.控制油路 3.1 低压控制油路 FFH 控制系统用低压控制高压,主泵最大排量时最大控制压力仅为19bar。控制油路在低压状态下工作,零件使用寿命长,不易出故障。 来自于补油泵146.1 的压力油到比例电磁阀125.1,通过电信号可改变阀A 口的压力,此压力通过电磁换向阀103.1 到四个主泵先导压力控制口X1 ...

1、当您付费下载文档后,您只拥有了使用权限,并不意味着购买了版权,文档只能用于自身使用,不得用于其他商业用途(如 [转卖]进行直接盈利或[编辑后售卖]进行间接盈利)。
2、本站所有内容均由合作方或网友上传,本站不对文档的完整性、权威性及其观点立场正确性做任何保证或承诺!文档内容仅供研究参考,付费前请自行鉴别。
3、如文档内容存在违规,或者侵犯商业秘密、侵犯著作权等,请点击“违规举报”。

碎片内容

KOS25100液压系统详解

小辰5+ 关注
实名认证
内容提供者

出售各种资料和文档

确认删除?
VIP
微信客服
  • 扫码咨询
会员Q群
  • 会员专属群点击这里加入QQ群
客服邮箱
回到顶部