电脑桌面
添加小米粒文库到电脑桌面
安装后可以在桌面快捷访问

挤塑聚苯板外墙保温技术交底

挤塑聚苯板外墙保温技术交底_第1页
1/12
挤塑聚苯板外墙保温技术交底_第2页
2/12
挤塑聚苯板外墙保温技术交底_第3页
3/12
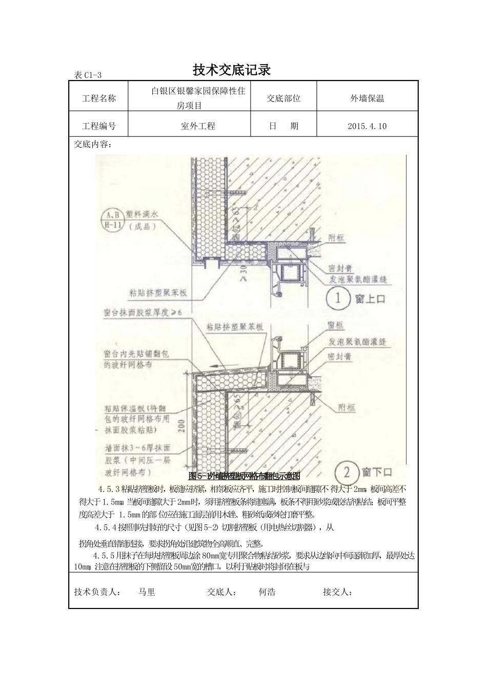
表 C1-3工程名称工程编号交底内容:1.材料组成1.1挤塑聚苯板技术交底记录房项目室外工程交底部位日期外墙保温2015.4.10白银区银馨家园保障性住3规格为1200mm×600mm×50mm,平头式,燃烧性能为B2级,表观密度32kg/m,尺寸收缩率小于1.5%,吸水率小于1.5%。压缩强度大于0.15MPa.抗压强度大于150kPa。1.2专用聚合物粘结、面层砂浆厂家已配制好,现场施工时加水用手持式电动搅拌机搅拌,重量比为水:聚合物砂浆等于1:5,可操作时间不小于2h。1.3固定件采用自攻螺栓配合工程塑料膨胀钉固定挤塑聚苯乙烯泡沫板,要求单个固定件的抗拉承载力标准值不小于0.6kN。1.4耐碱玻纤网格布2用于增强保护层抗裂及整体性;单位面积重量大于160g/m,网孔中心距4mm×4mm.断裂强力(经向纬向)大于750N/50mm。2.施工要求及条件2.1经建设单位、监理单位、总承包单位、外保温施工单位联合验收的各楼外墙体(可分段进行)垂直、平整度满足规范要求,门窗框安装到位,飘窗、阳台栏板、挑檐等突出墙面部位尺寸合格,办理交接单后即可进行施工。2.2雨天施工时,须采取有效防雨措施,防止雨水冲刷刚施工完但粘结砂浆或面层聚合物砂浆尚未初凝的墙面。2.3施工现场环境温度及找平层表面温度在施工中及施工后24h内均不得低于5℃,风力不大5级。3.施工工具电热丝切割器或壁纸刀(裁挤塑板及网格布用)、电锤(拧胀钉螺钉及打膨胀锚固件孔用)、根部带切割刀片的冲击钻钻头(为放固定件打眼用,切割刀片的大小、切入深度与膨胀钉头一致)、手持式电动搅拌器(搅拌砂浆用)、木锉或粗砂纸(打磨用)、其他抹灰专用工具。4. 工艺流程基层清理→刷专用界面剂→配专用聚合物粘结砂浆→抹底层聚合物砂浆→预粘板边翻包网格布→粘贴挤塑板→钻孔安装固定件→挤塑板打磨、找平、清洁→中间验收→拌制面层聚合物砂浆→抹底层聚合物砂浆→粘贴网格布→抹面层聚合物抗裂砂浆→防火隔离带分层粘抹→验收4.1 基层清理技术负责人:马里交底人:何浩接交人:表 C1-3技术交底记录工程名称工程编号白银区银馨家园保障性住房项目Bb-01交底部位日期外墙保温2015.4.10交底内容:4.1.1清理混凝土墙面上残留的浮灰、脱模剂油污等杂物及抹灰空鼓部位等。4.1.2剔除框架柱、梁接槎处劈裂的混凝土块、夹杂物、空鼓等,并重新进行修补;窗台挑檐按照2%用水泥砂浆找坡,外墙各种洞口填塞密实。4.1.3要求粘贴挤塑板表面平整度偏差不超过3mm,超差时对突出墙面处进行打磨,对凹进部位进行找补,需找补厚度超...

1、当您付费下载文档后,您只拥有了使用权限,并不意味着购买了版权,文档只能用于自身使用,不得用于其他商业用途(如 [转卖]进行直接盈利或[编辑后售卖]进行间接盈利)。
2、本站所有内容均由合作方或网友上传,本站不对文档的完整性、权威性及其观点立场正确性做任何保证或承诺!文档内容仅供研究参考,付费前请自行鉴别。
3、如文档内容存在违规,或者侵犯商业秘密、侵犯著作权等,请点击“违规举报”。

碎片内容

挤塑聚苯板外墙保温技术交底

确认删除?
VIP
微信客服
  • 扫码咨询
会员Q群
  • 会员专属群点击这里加入QQ群
客服邮箱
回到顶部