电脑桌面
添加小米粒文库到电脑桌面
安装后可以在桌面快捷访问

低压开口式电流互感器品种及选型方法

低压开口式电流互感器品种及选型方法_第1页
1/6
低压开口式电流互感器品种及选型方法_第2页
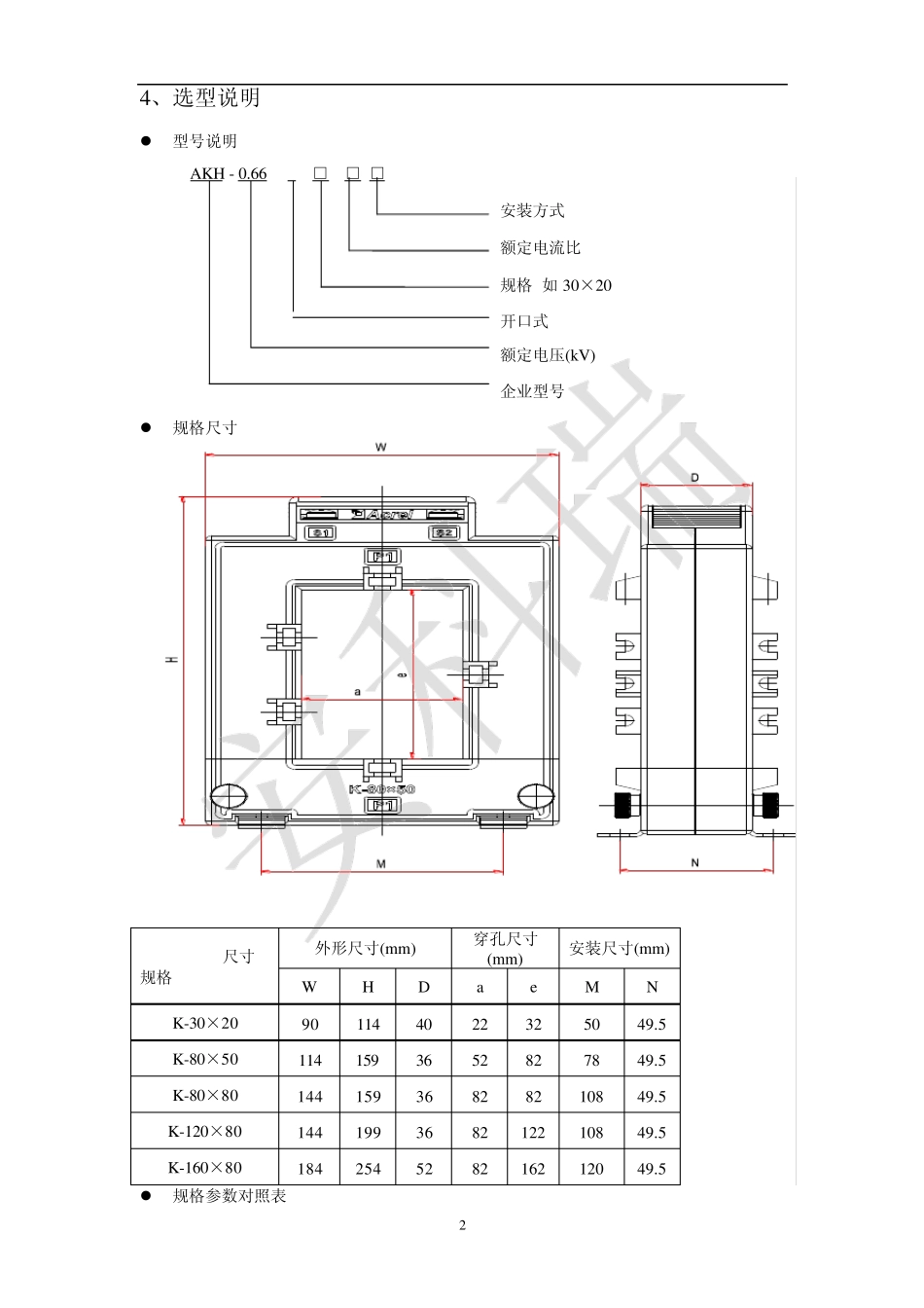
2/6
低压开口式电流互感器品种及选型方法_第3页
3/6
1 低压开口式电流互感器品种及选型方法 1、概述 开口式电流互感器又称开启式电流互感器或开合式电流互感器,主要应用于配电系统改造项目,安装方便,无须拆一次母线,亦可带电操作,不影响客户正常用电,为用户改造项目节省人力、物力、财力,提高效率。该系列电流互感器可与继电器保护、测量以及计量装置配套使用。 2、国内主要品牌及型号 国内生产低压开口式电流互感器厂家、型号品牌繁多,主要常见的产品有:哈尔滨三达德电力 KH150、KH100、KH80、KH55、KH32、KH30、KH25、KH16型开合式互感器;北京奥菲科泰 OSMT-10开启式电流互感器;广州国田电力 LDJK-10开启式电流互感器;上海华通LKZB-0.66系列开合式电流互感器;迪克森 DP(DBP)系列开口式电流互感器;长沙瑞扬 Q125A钳型电流互感器;北京中凯ZKKM1-0.66开口式母排电流互感器;上海安科瑞 AKH-0.66K型开 口 式 电 流 互 感 器 , 即AKH-0.66K-30*20、 AKH-0.66K-80*50、 AKH-0.66K-80*80、AKH-0.66K-120*80、AKH-0.66K-160*80;中宇国电 ZYKM-0.66开口式母排电流互感器;山东圣鸿电子开启式电流互感器;仟佰实业CT24开口式电流互感器;广州铭睿电子MR-LXZK-0.66系列开口式电流互感器;淄博元星KH-8、KH-18、KH-100、KH-32、KH-150开合式电流互感器;上海苏特KH-18、KH-32、KH-100、KH-150开合式电流互感器等等。 3、主要技术指标(以安科瑞 A K H -0.66K 为例)  开口式 CT一次电流 100-6300A,二次电流 5A,1A  额定工作电压 AC0.66kV(等效 AC0.69kV,GB/T156-2007)  额定频率 50-60Hz  环境温度-30℃~70℃,最高耐温120℃  海拔高度≤3000m  工频耐压 3000V/1min 50Hz  用于没有雨雪直接侵袭,无严重污染及剧烈震动的场所 2 4、选型说明  型号说明 AKH - 0.66 - K -□ -□-□  规格尺寸 尺寸 规格 外形尺寸(m m ) 穿孔尺寸(m m ) 安装尺寸(m m ) W H D a e M N K-30×20 90 114 40 22 32 50 49.5 K-80×50 114 159 36 52 82 78 49.5 K-80×80 144 159 36 82 82 108 49.5 K-120×80 144 199 36 82 122 108 49.5 K-160×80 184 254 52 82 162 120 49.5  规格参数对照表 额定电流比 规格 如 30×20 开口式 企业型号 额定电压(kV) 安装方式 3 型 号 额定电流比(A ) 准确级 额定负荷(V A) K -30×20 100/5 1.0 1....

1、当您付费下载文档后,您只拥有了使用权限,并不意味着购买了版权,文档只能用于自身使用,不得用于其他商业用途(如 [转卖]进行直接盈利或[编辑后售卖]进行间接盈利)。
2、本站所有内容均由合作方或网友上传,本站不对文档的完整性、权威性及其观点立场正确性做任何保证或承诺!文档内容仅供研究参考,付费前请自行鉴别。
3、如文档内容存在违规,或者侵犯商业秘密、侵犯著作权等,请点击“违规举报”。

碎片内容

低压开口式电流互感器品种及选型方法

小辰9+ 关注
实名认证
内容提供者

出售各种资料和文档

确认删除?
VIP
微信客服
  • 扫码咨询
会员Q群
  • 会员专属群点击这里加入QQ群
客服邮箱
回到顶部