电脑桌面
添加小米粒文库到电脑桌面
安装后可以在桌面快捷访问

例题建筑面积的计算

例题建筑面积的计算_第1页
1/8
例题建筑面积的计算_第2页
2/8
例题建筑面积的计算_第3页
3/8
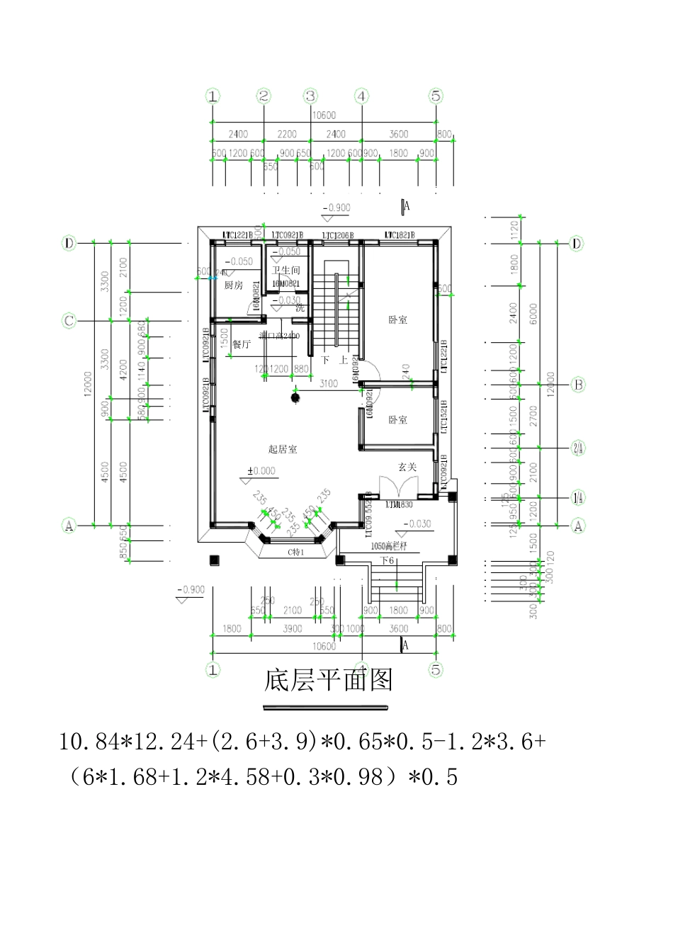
1、计算图示工程各层建筑面积及总建筑面积(工程为地下一层地上三层,地下层至二层层高分别为3.0m、3.9m、3.2m;屋顶如图示为坡屋面,顶层即三层净高最低处为1.44m,净高2.1m 线如图“三层平面图”所示。外墙除标注外厚 240mm,穿墙轴线均为中心线)。(10 分) 1、解 地下层面积= 底层面积= 二层面积= 三层面积= 建筑面积= 地下室平面图上洞口高2100地下室餐厅A 10.84*12.24+(2.6+3.9)*0.65*0.5-1.2*3.6 底层平面图玄关卧室餐厅起居室卫生间厨房上下6C特1洞口高2400洗AA卧室下 10.84*12.24+(2.6+3.9)*0.65*0.5-1.2*3.6+(6*1.68+1.2*4.58+0.3*0.98)*0.5 露 台卧室卧室阳台卧室起居室卧室二层平面图卫生间内卫(改)C特2C特3上下 10.84*12.24+(2.6+3.9)*0.65*0.5-1.2*3.6-1.8*3.6*0.5 三层平面图下露台净高2100mm线净高2100mm线 屋顶平面图威卢克斯斜屋顶窗GZL608改 地下层面积 = 10.84*12.24+(2.6+3.9)*0.65*0.5-1.2*3.6 = 130.47 M2 一层面积 = 10.84*12.24+(2.6+3.9)*0.65*0.5-1.2*3.6+(6*1.68+1.2*4.58+0.3*0.98)*0.5 = 138.41 M2 二层面积 = 10.84*12.24+(2.6+3.9)*0.65*0.5-1.2*3.6-1.8*3.6*0.5 = 127.23 M2 三层面积 = 0.5*(10.84*12.24+(2.6+3.9)*0.65*0.5-1.2*3.6-1.8*3.6-10.04*8.54-3.5*1.8-3.5*1.2+(1.795+3.106)*0.5*0.646)+10.04*8.54-3.5*1.8-3.5*1.2+(1.795+3.106)*0.5*0.646 = 91.49 M2 建筑面积 = 地下层面积+一层面积+二层面积+三层面积 = 487.61 M2 1、解(各层面积距答案±1m2 以内,总面积±3m2 以内,可得满分。计算过程无法统一,可酌情给分但不应超过 50%) 地下层面积 =10.84*12.24+(2.6+3.9)*0.65*0.5-1.2*3.6=130.47m2(考点 地下层建筑面积计算规则变化)(5 分) 底 层面积= 1 0 . 8 4 * 1 2 . 2 4 + ( 2 . 6 + 3 . 9 ) * 0 . 6 5 * 0 . 5 - 1 . 2 * 3 . 6 +(6*1.68+1.2*4.58+0.3*0.98)*0.5=138.41 m2(考点 雨篷建筑面积计算规则变化) (4分) 二 层面积=10.84*12.24+(2.6+3.9)*0.65*0.5-1.2*3.6-1.8*3.6*0.5=127.23 m2(考点 阳台建筑面积计算规则变化 以及露台面积规则) (5 分) 三层面积=0.5*(10.84*12.24+(2.6+3.9)*0.65*0.5-1.2*3.6-1.8*3.6-10.04*8.54-3.5*1.8-3.5*1.2+(1.795+3.106)*0.5*0.646)+10.04*8.54-3.5*1.8-3.5*1.2+(1.795+3.106)*0.5*0.646=91.49 m2 (考点 阁楼建筑面积计算规则变化以及露台面积规则) (5 分) 建筑面积= 地下层面积+底层面积+二层面积+三层面积=487.61m2 (考点 阁楼建筑面积计算规则变化以及露台面积规则) (5 分)

1、当您付费下载文档后,您只拥有了使用权限,并不意味着购买了版权,文档只能用于自身使用,不得用于其他商业用途(如 [转卖]进行直接盈利或[编辑后售卖]进行间接盈利)。
2、本站所有内容均由合作方或网友上传,本站不对文档的完整性、权威性及其观点立场正确性做任何保证或承诺!文档内容仅供研究参考,付费前请自行鉴别。
3、如文档内容存在违规,或者侵犯商业秘密、侵犯著作权等,请点击“违规举报”。

碎片内容

例题建筑面积的计算

小辰6+ 关注
实名认证
内容提供者

出售各种资料和文档

相关文档

确认删除?
VIP
微信客服
  • 扫码咨询
会员Q群
  • 会员专属群点击这里加入QQ群
客服邮箱
回到顶部