电脑桌面
添加小米粒文库到电脑桌面
安装后可以在桌面快捷访问

泳池顺流、逆流混合式优缺点对比

泳池顺流、逆流混合式优缺点对比_第1页
1/10
泳池顺流、逆流混合式优缺点对比_第2页
2/10
泳池顺流、逆流混合式优缺点对比_第3页
3/10
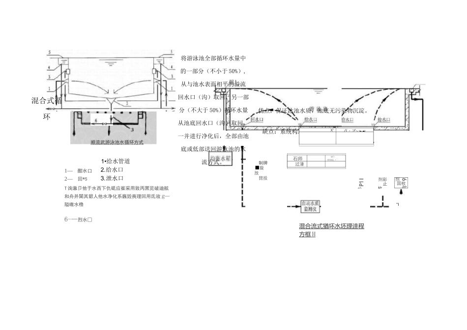
循环方式原理特点优缺点逆流式循1.溢流回水槽2•给水口3.泄水口游泳池的全部循水量,由设在池底的给水口(沟)送入池内,再由设在与游泳池水表面相平的池岸式或池壁式溢流回水槽将循环水量全部取回进行净化后再送回池内的水流方式。优点:该方式布水均匀,池底无污染物沉淀,池水表面污物可及时排除。穿越池壁管道少。缺点:建设费用高、施工维修较困难。池底需增加 300 左右的管道垫层,增大了机房面积。相应结构荷载提高,室内净高减少,成本较大。顺流式循环游泳池的全部循环水量,由设在游泳池端或侧壁水面以下的给水口送入池内,而由设在池底的回水口(沟)取回进行净化后再送回游泳池的水流方式。优点:回水口可与泄水口合用建造成本相对低,循环水管道设计较简单,埋设较浅,系统运行耗能较低,后期维护相对方便;水质能够满足使用要求。缺点:池底易沉积污物,穿越池壁管道多。泳者经常把溢流槽当做痰槽,清理困难,造成二次污染。需另外安装除积污装置。综合成本、维护等因素,集团项目如无特殊要求,水循环系统均采用顺流式循环系统。混合式循环1•给水管道将游泳池全部循环水量中的一部分(不小于 50%),从与池水表面相平的溢流回水口(沟)取回,另一部分(不大于 50%)循环水量从池底回水口(沟)取回,一并进行净化后,全部由池底或低部送回游泳池的水流方式。优点:保证泳池水质,池底无污染物沉淀。缺点:系统构造复杂,建造费用高。2.给水口3.泄水口顺流武游泳池水循环方式1—酣水口2—回*5T 询靠卩他于水西下仇砥应崔采用致丙黑览破迪舷和舟并闌其爺人他水净化系巍毀喪理回用氐玫g—隘嗷水橹6-—烈水□報 IX”八・才>/■-■j制牌■擬放琵投石师eri-HHAL・过淒P1I投剂彩止枚剂9国枚眈混合流式猶坏水坯理逹程方框 H "I游泳池水循环设备的三种池水循环方式作者:浪鲸泳池设备来源:浪鲸泳池设备日期:2016/10/149:55:18 人气:192*吿水站屮伍_=轟魯話1.游泳池水循环设备顺流式池水循环方式这种方式就是将全部循环水量,经设在游泳池端壁或侧壁的池水面以下的给水口送入游泳池内,再由设在游泳池底的回水口,经由循环水泵抽吸,送入过滤器去除回水中的杂质,降低回水的浑浊度,并对过滤后的循环水进行加热、水质平衡和消毒处理后,再送回游泳池内继续使用的一种水流组织方式。池底回水口不得少于 2 个,回水口应有一定间距,以防止被游泳者或其他东西堵塞,减小循环水量影响池水水质。2 个回水口不得串联,以防止回水量...

1、当您付费下载文档后,您只拥有了使用权限,并不意味着购买了版权,文档只能用于自身使用,不得用于其他商业用途(如 [转卖]进行直接盈利或[编辑后售卖]进行间接盈利)。
2、本站所有内容均由合作方或网友上传,本站不对文档的完整性、权威性及其观点立场正确性做任何保证或承诺!文档内容仅供研究参考,付费前请自行鉴别。
3、如文档内容存在违规,或者侵犯商业秘密、侵犯著作权等,请点击“违规举报”。

碎片内容

泳池顺流、逆流混合式优缺点对比

确认删除?
VIP
微信客服
  • 扫码咨询
会员Q群
  • 会员专属群点击这里加入QQ群
客服邮箱
回到顶部