电脑桌面
添加小米粒文库到电脑桌面
安装后可以在桌面快捷访问

砌体结构课程设计实例

砌体结构课程设计实例_第1页
1/22
砌体结构课程设计实例_第2页
2/22
砌体结构课程设计实例_第3页
3/22
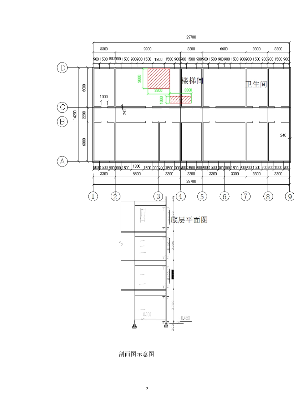
综合课程设计任务书 一、设计题目 砌体结构设计 二、设计资料 1、某砖混结构建筑物,可选择教学楼、住宅楼或宾馆,建筑平面、刨面及梁、墙体的截面尺寸自己设计; 2、屋面、楼面做法参考《国家建筑标准设计图集》; 3、地质资料:地下水位标高-1.0,地基承载力为 150MPa,该地区的基本风压值为 0.55 kN /㎡。 三、设计要求 1 、确定房屋的结构承重方案; 2、确定房屋的静力计算方案; 3、熟练掌握各种方案多层房屋墙体设计及墙、柱高厚比验算方法; 4、熟悉梁端下砌体的局部受压承载力验算; 5、熟悉过梁、挑梁的设计计算; 6、掌握墙体设计中的构造要求,确定构造柱和圈梁的布置; 7、熟悉基础结构设计; 8、掌握绘制结构施工图。 1 一、设计资料 某四层教学楼(无地下室)平面剖面如图,才用1 类楼盖体系,大梁尺寸250m m ×500m m 。墙体用MU10 砖,M5 砂浆砌筑,墙厚均为 240m m 。屋面和楼面构造做法及相应荷载可由标准图集 98ZJ001 查取(自定),空心板自置按 2.5 kN /㎡,190mm厚双面粉刷,墙自重 2.08 kN /㎡,240mm厚双面粉刷墙自重 5.24 kN /㎡,铝合金窗按 025 kN /㎡计算。屋面、楼面活荷载查《建筑结构荷载规范》。 工程地质资料:地下水位标高-1.0,地基承载力为 150MPa,该地区的基本风压值为 0.55 kN /㎡。 二、设计要求 1、确定房屋的结构承重方案; 2、确定房屋的静力计算方案; 3、熟练掌握各种方案多层房屋墙体设计及墙、柱高厚比验算方法; 4、熟悉梁端下砌体的局部受压承载力验算; 5、熟悉过梁、挑梁的设计计算; 6、掌握墙体设计中的构造要求,确定构造柱和圈梁的布置; 7、熟悉基础结构设计; 8、掌握绘制结构施工图。 2 剖面图示意图 3 9.8㎡<50㎡, 因此楼面活荷载不必折剪。 由于本地区的基本风压值0W =0.55 kN /㎡,且房屋高度小于4m,房屋总高小于18m,洞口水平截面面积小于截面的2/3,屋面自重大于0.8 kN /㎡,所以不考虑风载的影响。 4.纵墙承载力验算 <1>选取计算单元 该房屋有内、外纵墙。对于外纵墙,相对而言,D轴线强比A轴线墙更不利。而内纵墙,虽然走廊楼面荷载是内纵墙上的竖向压力有所增加,但梁支乘处墙体的轴向力偏心距却有所减小,并且内纵墙上的洞口宽度较外纵墙上的小。所以可只在D轴线上取一个开间的外纵墙作为计算单元,其受荷面积为:3.3×3=9.9㎡。 <2>确定计算面积: 每层墙的控制截面位于墙的顶部梁(或板)的...

1、当您付费下载文档后,您只拥有了使用权限,并不意味着购买了版权,文档只能用于自身使用,不得用于其他商业用途(如 [转卖]进行直接盈利或[编辑后售卖]进行间接盈利)。
2、本站所有内容均由合作方或网友上传,本站不对文档的完整性、权威性及其观点立场正确性做任何保证或承诺!文档内容仅供研究参考,付费前请自行鉴别。
3、如文档内容存在违规,或者侵犯商业秘密、侵犯著作权等,请点击“违规举报”。

碎片内容

砌体结构课程设计实例

您可能关注的文档

确认删除?
VIP
微信客服
  • 扫码咨询
会员Q群
  • 会员专属群点击这里加入QQ群
客服邮箱
回到顶部