电脑桌面
添加小米粒文库到电脑桌面
安装后可以在桌面快捷访问

各种基础的形式及计算

各种基础的形式及计算_第1页
1/28
各种基础的形式及计算_第2页
2/28
各种基础的形式及计算_第3页
3/28
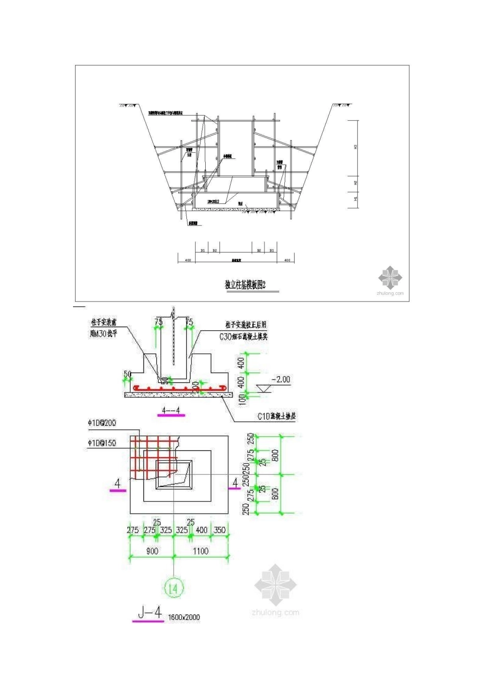
7 月 23 号独立基础编辑当建筑物上部结构采纳框架结构或单层排架结构承重时,基础常采纳方形、圆柱形和多边形等形式的独立式基础,这类基础称为独立式基础,也称单独基础。独立基础分三种:阶形基础、坡形基础、杯形基础。目录1 简介2 构造3 表示方式4 计算方法1简介编辑独立基础.是整个或局部结构物下的无筋或配筋基础。一般是指结构柱基,高烟囱,水塔基础等的形式。独立基础分:阶形基础、坡形基础、杯形基础 3 种。独立基础的特点一:一般只坐落在一个十字轴线交点上,有时也跟其它条形基础相连,但是截面尺寸和配筋不尽相同。独立基础假如坐落在几个轴线交点上承载几个独立柱,叫做联合独立基础。独立基础的特点二:基础之内的纵横两方向配筋都是受力钢筋,且长方向的一般布置在下面。长宽比在 3 倍以内且底面积在 20 m2 以内的为独立基础(独立桩承台)。2构造编辑独立基础一般设在柱下,常用断面形式有踏步形、锥形、杯形。材料通常采纳钢筋混凝土、素混凝土等。当柱为现浇时,独立基础与柱子是整浇在一起的;当柱子为预制时,通常将基础做成杯口形,然后将柱子插入,并用细石混凝土嵌固,此时称为杯口基础。3表示方式编辑表示方式见下表: 参考 11G101-34计算方法编辑⑴、独立基础垫层的体积垫层体积=垫层面积×垫层厚度⑵、独立基础垫层模板垫层模板=垫层周长×垫层高度⑶、独立基础体积独立基础体积=各层体积相加(用长方体和棱台公式)⑷、独立基础模板独立基础模板=各层周长×各层模板高(5)、基坑土方工程量基坑土方的体积应按基坑底面积乘以挖土深度计算。基坑底面积应以基坑底的长乘以基坑底的宽,基坑底长和宽是指混凝土垫层外边线加工作面,如有排水沟者应算至排水沟外边线。排水沟的体积应纳入总土方量内。当需要放坡时,应将放坡的土方量合并于总土方量中。(6)、槽底钎探工程量槽底钎探工程量,以槽底面积计算。带形基础编辑本词条缺少概述、信息栏、名片图,补充相关内容使词条更完整,还能快速升级,赶紧来编辑吧!从基础结构而言,凡墙下的长条形基础,或柱和柱间距离较近而连接起来的条形基础,都称为带形基础。预算定额中的带形基础,是指需要支立模板的混凝土条形基础,才按带形基础定额项目套用。对于未使用模板而就槽形浇注的条形混凝土基础,则按楼地面工程分部的混凝土垫层定额执行。外墙基础按外墙中心线长度,内墙基础按内墙基础净长度计算,附墙垛宽出部分体积并入基础工程量。带形基础其顶阶高宽比...

1、当您付费下载文档后,您只拥有了使用权限,并不意味着购买了版权,文档只能用于自身使用,不得用于其他商业用途(如 [转卖]进行直接盈利或[编辑后售卖]进行间接盈利)。
2、本站所有内容均由合作方或网友上传,本站不对文档的完整性、权威性及其观点立场正确性做任何保证或承诺!文档内容仅供研究参考,付费前请自行鉴别。
3、如文档内容存在违规,或者侵犯商业秘密、侵犯著作权等,请点击“违规举报”。

碎片内容

各种基础的形式及计算

您可能关注的文档

MY shop+ 关注
实名认证
内容提供者

欢迎挑选适合自己的材料。

确认删除?
VIP
微信客服
  • 扫码咨询
会员Q群
  • 会员专属群点击这里加入QQ群
客服邮箱
回到顶部