电脑桌面
添加小米粒文库到电脑桌面
安装后可以在桌面快捷访问

给排水工程工程量清单计价实例

给排水工程工程量清单计价实例_第1页
1/34
给排水工程工程量清单计价实例_第2页
2/34
给排水工程工程量清单计价实例_第3页
3/34
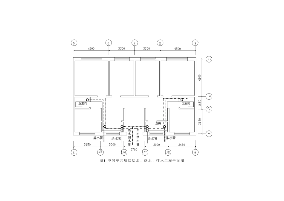
实例:某给排水工程清单计价(通常)安装工程计价(根据以下)程序(进行):一、熟悉工程概况、施工图与施工说明二、编制依据三、工程清单项目的划分及项目编码表格形式四、工程量计算五、套用定额计价表计算分部分项工程量清单报价六、计算主材费用七、单位工程措施项目清单八、单位工程其他项目清单九、规费明细十、单位工程费用汇总一、熟悉工程概况、施工图与施工说明本给排水工程是有三个单元的五层住宅楼,每单元为 10 住户。工程由给水系统、热水系统和排水系统三部分组成。工程提供了六张施工设计图纸:中间单元底层给水、热水、排水工程平面图(图 1);厨房给水、热水、排水工程平面图(图 2);卫生间给水、热水、排水工程平面图(图3);中间单元给水系统轴测图(图 4);中间单元热水系统轴测图(图5);中间单元排水系统轴测图(仅右边五层用户,图 6)。给水系统,由户外阀门井埋地引入自来水供水管道,通过立管经各户横支管上的水表向其厨房和卫生间设备供水。热水系统,由小区换热站经地沟引入热水管道,并通过立管经各户热水表,由横支管向其厨房洗涤盆和卫生间洗脸盆、浴盆设备供水;而热水回水由立管返回地沟,通向小区换热站。排水系统,是由卫生间与厨房的排水管道,经不同排水立管,再经其排出管引至室外化粪池。)图 1 中 间 单 元 底 层 给 水 、 热 水 、 排 水 工 程 平 面 图图 2 厨 房 给 水 、 热 水 、 排 水 工 程 平 面 图图 3 卫 生 间 给 水 、 热 水 、 排 水 工 程 平 面 图图 4 中 间 单 元 给 水 系 统 轴 测 图图 5 中 间 单 元 热 水 系 统 轴 测 图图 6 中 间 单 元 排 水 系 统 轴 测 图 (仅 右 边 五 层 用 户 )给水管道采纳镀锌钢管(螺纹连接),进户埋地引入,室内立管明敷设于房间阴角处,各户横支管沿墙、沿吊顶明敷设,安装高度离地 0.3m 和离地 2.8m。热水管道、热水回水管道在地沟内并排敷设于水平支架上,亦为镀锌钢管(螺纹连接)。其立管与横管的敷设方式与给水管道相同。热水及热水回水管道穿墙设镀锌铁皮套管,穿楼板时设钢套管。冷、热水管道同时安装时应符合下列规定:①上、下平行安装时热水管道应在冷水管道上方。②垂直平行安装时热水管道应在冷水管道左侧。给水管道在交付使用前必须冲洗和消毒。热水管道在交付使用前必须冲洗。地沟内的热水管采纳泡沫塑料瓦块(δ=...

1、当您付费下载文档后,您只拥有了使用权限,并不意味着购买了版权,文档只能用于自身使用,不得用于其他商业用途(如 [转卖]进行直接盈利或[编辑后售卖]进行间接盈利)。
2、本站所有内容均由合作方或网友上传,本站不对文档的完整性、权威性及其观点立场正确性做任何保证或承诺!文档内容仅供研究参考,付费前请自行鉴别。
3、如文档内容存在违规,或者侵犯商业秘密、侵犯著作权等,请点击“违规举报”。

碎片内容

给排水工程工程量清单计价实例

您可能关注的文档

一二三四传媒+ 关注
实名认证
内容提供者

大量资料供您选择,没有合适的可以联系小二。

确认删除?
VIP
微信客服
  • 扫码咨询
会员Q群
  • 会员专属群点击这里加入QQ群
客服邮箱
回到顶部