电脑桌面
添加小米粒文库到电脑桌面
安装后可以在桌面快捷访问

外墙脚手架专项施工技术讲稿VIP专享VIP免费

外墙脚手架专项施工技术讲稿_第1页
1/12
外墙脚手架专项施工技术讲稿_第2页
2/12
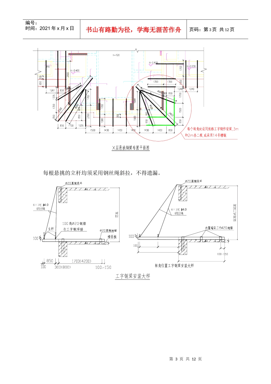
外墙脚手架专项施工技术讲稿_第3页
3/12
第1页共12页编号:时间:2021年x月x日书山有路勤为径,学海无涯苦作舟页码:第1页共12页外墙脚手架专项施工技术讲稿目录一、概述……………………………………………………………………………………2二、外墙脚手架专项施工方案的编制……………………………………………………2三、外墙脚手架构造………………………………………………………………………21、落地式脚手架的地基与基础………………………………………………………22、脚手架悬挑构件……………………………………………………………………23、立杆…………………………………………………………………………………54、纵向水平杆、横向水平杆…………………………………………………………55、脚手板………………………………………………………………………………76、连墙件………………………………………………………………………………77、门洞…………………………………………………………………………………78、剪刀撑与横向斜撑…………………………………………………………………89、斜道…………………………………………………………………………………910、卸荷…………………………………………………………………………………911、水平防护……………………………………………………………………………10四、外墙脚手架的搭设………………………………………………………………………11五、外墙脚手架的拆除………………………………………………………………………12六、脚手架检查与验收………………………………………………………………………13第2页共12页第1页共12页编号:时间:2021年x月x日书山有路勤为径,学海无涯苦作舟页码:第2页共12页一、概述1、危险性较大的外墙脚手架工程,必须编制专项施工方案并报工程管理中心审批:①搭设高度24m及以上的落地式钢管脚手架工程;②附着式整体和分片提升脚手架工程;③悬挑式脚手架工程;④吊篮脚手架工程;⑤卸料平台、移动操作平台工程;⑥新型及异型脚手架工程。2、超过一定规模的危险性较大的外墙脚手架工程,专项施工方案报工程管理中心审批后,项目部组织专家组对专项方案进行论证:①搭设高度50m及以上落地式钢管脚手架工程;②提升高度150m及以上附着式整体和分片提升脚手架工程;③架体高度20m及以上悬挑式脚手架工程。3、要求项目部技术管理人员必须熟悉相关规范,《建筑施工扣件式钢管脚手架安全技术规范》(JGJ130-2001)2002年版、《建筑施工高处作业安全技术规范》(JGJ80-91)、《钢结构设计规范》(GB50017-2003)、《危险性较大的分部分项工程安全管理办法》(建质[2009]87号)等。4、以下将针对集团各建筑项目的施工情况对外墙脚手架的构造、搭设、拆除和验收的重点工作进行强化培训。二、外墙脚手架专项施工方案的编制高支模专项施工应根据本工程的特点编写,方案必须具有针对性、指导施工,并重点考虑施工方法。脚手架的立杆、纵向水平杆、横向水平杆、连墙件、悬挑构件及稳定性必须按《建筑施工扣件式钢管脚手架安全技术规范》和《钢结构设计规范》的要求进行设计和安全验算。专项施工方案经工程管理中心审批后才能用于施工。三、外墙脚手架构造1、落地式脚手架的地基与基础立杆基础必须是坚硬实土或分层夯实的回填土或采用混凝土硬化,立杆下准确放置底座、垫板,脚手架基础应高出地坪100~150mm,并在四周距脚手架外立杆500mm处设排水沟和积水坑。2、脚手架悬挑构件悬挑构件必须经过安全计算选用,根据集团在建项目的特点,建议统一采用16#工字钢作悬挑钢梁;14#槽钢作背梁(联梁);6×19Φ14钢丝绳卸荷;Φ20~22钢筋作吊环;Φ18~20钢筋作地锚,但必须经过安全验算采用。根据规范要求高度超过50m的脚手架,可采用双管立杆、分段悬挑或分段卸荷等有效措施。对于悬挑脚手架,要求应采用分段悬挑的方式,分段高度控制在50m以内。第3页共12页第2页共12页编号:时间:2021年x月x日书山有路勤为径,学海无涯苦作舟页码:第3页共12页每根悬挑的立杆均须采用钢丝绳斜拉,不得遗漏。第4页共12页第3页共12页a.锚固筋预埋b.安放...

1、当您付费下载文档后,您只拥有了使用权限,并不意味着购买了版权,文档只能用于自身使用,不得用于其他商业用途(如 [转卖]进行直接盈利或[编辑后售卖]进行间接盈利)。
2、本站所有内容均由合作方或网友上传,本站不对文档的完整性、权威性及其观点立场正确性做任何保证或承诺!文档内容仅供研究参考,付费前请自行鉴别。
3、如文档内容存在违规,或者侵犯商业秘密、侵犯著作权等,请点击“违规举报”。

碎片内容

外墙脚手架专项施工技术讲稿

确认删除?
VIP
微信客服
  • 扫码咨询
会员Q群
  • 会员专属群点击这里加入QQ群
客服邮箱
回到顶部