电脑桌面
添加小米粒文库到电脑桌面
安装后可以在桌面快捷访问

农村别墅设计图纸及效果图VIP免费

农村别墅设计图纸及效果图_第1页
1/60
农村别墅设计图纸及效果图_第2页
2/60
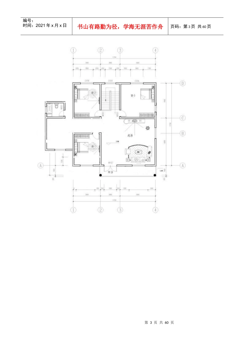
农村别墅设计图纸及效果图_第3页
3/60
第1页共60页编号:时间:2021年x月x日书山有路勤为径,学海无涯苦作舟页码:第1页共60页现在跟大家介绍几款新农村户型图,在农村有地的,手头上有二十万要建房的(不含精装修),基本上下面的户型是可以建造的。实现从农村包围城市,农村的豪宅是第一步!户型参考造价1、毛胚房砖混400-1000/㎡,框架600-1600/㎡2、毛胚房+精装修砖混1200-3000元/㎡,框架1500-4000元/㎡当然精装修只是说按照一般的好的装修,奢华的装修就不是这个价格了,以上价格不包括前后花园栽花种草等费用。下面的户型,一般只给了建筑图,没有结构图,如果施工时候不清楚配筋,可以留言询问。一般框架结构,基第2页共60页第1页共60页编号:时间:2021年x月x日书山有路勤为径,学海无涯苦作舟页码:第2页共60页础好的,可以采用天然地基,不好的,就要做整板基础或桩基础,通常板宜采用双层配筋,现浇,屋面板可不用抗渗混凝土,也可以不做防水,但屋面板要做好一点,瓦要盖好点。以下的户型只是本人收集的一部分,我收集了几十种户型,压缩包有20M,有相当一部分有CAD图,不过很多都是建筑图,配筋自己要考虑。一、老家现即将自建房型:第3页共60页第2页共60页编号:时间:2021年x月x日书山有路勤为径,学海无涯苦作舟页码:第3页共60页第4页共60页第3页共60页编号:时间:2021年x月x日书山有路勤为径,学海无涯苦作舟页码:第4页共60页二、独栋别墅户型农村的暴发户,链子很粗的新贵,可以考虑这样的户型。大气!户型一提高幸福指数的关键第5页共60页第4页共60页编号:时间:2021年x月x日书山有路勤为径,学海无涯苦作舟页码:第5页共60页第6页共60页第5页共60页编号:时间:2021年x月x日书山有路勤为径,学海无涯苦作舟页码:第6页共60页第7页共60页第6页共60页编号:时间:2021年x月x日书山有路勤为径,学海无涯苦作舟页码:第7页共60页第8页共60页第7页共60页编号:时间:2021年x月x日书山有路勤为径,学海无涯苦作舟页码:第8页共60页第9页共60页第8页共60页编号:时间:2021年x月x日书山有路勤为径,学海无涯苦作舟页码:第9页共60页第10页共60页第9页共60页编号:时间:2021年x月x日书山有路勤为径,学海无涯苦作舟页码:第10页共60页第11页共60页第10页共60页编号:时间:2021年x月x日书山有路勤为径,学海无涯苦作舟页码:第11页共60页第12页共60页第11页共60页编号:时间:2021年x月x日书山有路勤为径,学海无涯苦作舟页码:第12页共60页户型二一座豪宅旺三代((*^__^*)嘻嘻……,这么像房产公司的广告?!)第13页共60页第12页共60页编号:时间:2021年x月x日书山有路勤为径,学海无涯苦作舟页码:第13页共60页第14页共60页第13页共60页编号:时间:2021年x月x日书山有路勤为径,学海无涯苦作舟页码:第14页共60页第15页共60页第14页共60页编号:时间:2021年x月x日书山有路勤为径,学海无涯苦作舟页码:第15页共60页第16页共60页第15页共60页编号:时间:2021年x月x日书山有路勤为径,学海无涯苦作舟页码:第16页共60页第17页共60页第16页共60页编号:时间:2021年x月x日书山有路勤为径,学海无涯苦作舟页码:第17页共60页第18页共60页第17页共60页编号:时间:2021年x月x日书山有路勤为径,学海无涯苦作舟页码:第18页共60页第19页共60页第18页共60页编号:时间:2021年x月x日书山有路勤为径,学海无涯苦作舟页码:第19页共60页三、家族户型家中人丁兴旺的,可以考虑这种联排户型。要是前面有口池塘,凉风习习,池塘的知了叽叽喳喳叫着,能够给后代一个不错的童年想象。第20页共60页第19页共60页编号:时间:2021年x月x日书山有路勤为径,学海无涯苦作舟页码:第20页共60页第21页共60页第20页共60页编号:时间:2021年x月x日书山有路勤为径,学海无涯苦作舟页码:第21页共60页四、让城里人留口水的户型(独栋别墅型)不用说了,在城市里花50万买一百平米,在农村可以建一座这样的别墅,再买一台车,那就是真正的优质生活。鸟语花香,莺飞燕舞,卧听风雨声,蟀嗡入梦来,怀抱娇妻,多美的意境啊!当然这个户型的外立面还是有可改善的地方,比如采用圆拱窗比矩形窗好看一点。第22页共60页第21页共6...

1、当您付费下载文档后,您只拥有了使用权限,并不意味着购买了版权,文档只能用于自身使用,不得用于其他商业用途(如 [转卖]进行直接盈利或[编辑后售卖]进行间接盈利)。
2、本站所有内容均由合作方或网友上传,本站不对文档的完整性、权威性及其观点立场正确性做任何保证或承诺!文档内容仅供研究参考,付费前请自行鉴别。
3、如文档内容存在违规,或者侵犯商业秘密、侵犯著作权等,请点击“违规举报”。

碎片内容

农村别墅设计图纸及效果图

确认删除?
VIP
微信客服
  • 扫码咨询
会员Q群
  • 会员专属群点击这里加入QQ群
客服邮箱
回到顶部