电脑桌面
添加小米粒文库到电脑桌面
安装后可以在桌面快捷访问

地下室桥架技术交底VIP免费

地下室桥架技术交底_第1页
1/5
地下室桥架技术交底_第2页
2/5
地下室桥架技术交底_第3页
3/5
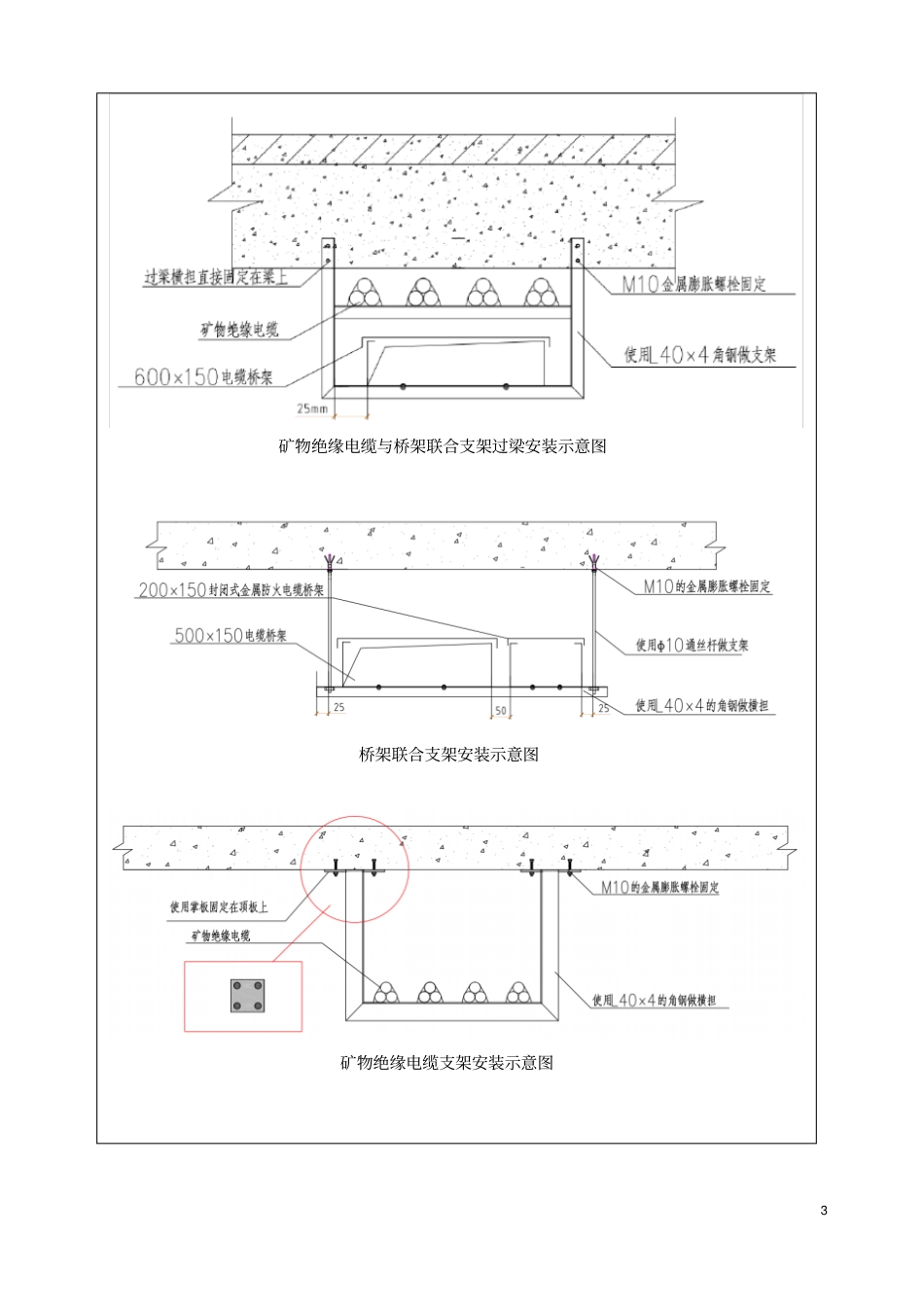
1技术交底记录2013年11月27日工程名称施工单位交底部位地下室工序名称桥架安装交底内容:一、工作内容地下室桥架安装二、施工依据:1、《建筑电气工程施工质量验收规范》(GB50303-2002);2、《建筑电气工程施工工艺标准》;3、电气专业施工图纸以及有关设计变更、图纸会审记录、工程洽商记录。三、施工准备1、材料要求:(1)桥架及其附件:本工程采用的桥架为低压电力电缆防火金属桥架,材料为钢制桥架,外表处理为防护涂层。低压电力电缆各段规格详见附录1(一层桥架布置图)。质量要求为:线槽内、外应光滑、平整,无棱刺,不应有扭曲、翘边等变形现象,并有产品合格证。(2)金属膨胀螺栓:根据允许拉力和剪力选择相应的膨胀螺栓,本工程地下室选择M10与M12的金属内膨胀螺栓及其附件。(3)镀锌材料:圆钢、扁钢、角钢、螺栓、螺母、螺丝、垫圈等金属材料做电工工件时,都经过镀锌处理。(4)辅助材料:钻头、切割片、调合漆。2、主要机具:(1)铅笔、卷尺、线坠、粉线袋、红外线定位仪。(2)电工工具、手电钻、电锤、工具袋、高凳、人字梯、龙门架等。3、作业条件:(1)配合土建的结构施工,预留孔洞、预埋铁件和吊杆、吊架等。(2)待土建地下室顶棚及墙面喷浆粉刷完成后进行桥架敷设。(3)桥架敷设前必须要弹线定位2技术交底记录2013年11月27日工程名称施工单位交底部位地下室工序名称桥架安装四、操作工艺要求工艺流程:弹线定位━→剔凿、预留孔洞━→金属膨胀螺栓安装━→支吊架安装━→桥架安装━→保护地线安装1、弹线定位:根据设计图确定盒、箱、柜等电气设备的安装位置,使用红外线定位仪从始端到终端,先干线后支线找好水平、垂直线,弹在墙板上。根据质量标准要求分匀间距,将支架位置标在梁、板上。2、金属膨胀螺栓安装:金属膨胀螺栓适用于砼构时或实心砖墙上。钻孔直径的误差不得超过+0.5~0.3mm,深度不超过+3㎜。安装螺栓时应用木锤或垫木块用铁锤将螺栓敲入洞内,套管与结构面平齐,螺栓端部外露,丝扣无损伤。3、支吊架安装:支、吊架的钢材应平直、无变形。下料偏差<5mm,切口处无卷边、毛刺。焊接时焊缝不得出现裂纹、咬边、气孔、凹陷、漏焊现象。地下室桥架支架采用Φ10的通丝杆和L40×40×4的角钢制作支架与横担,并用Φ10的金属内膨胀螺栓固定在楼板上;矿物绝缘电缆与桥架的双层联合支架采用Φ12的通丝杆和L40×40×4的角钢制作支架与横担,并用Φ12的金属内膨胀螺栓固定在楼板上;矿物绝缘电缆支架使用掌板和L40×40×4的角钢支架固定在楼板上。支架竖直安装在顶板上,过梁时需要设置横担固定在梁上。支架制作完成后应刷红丹漆。支架安装应牢固稳定,横平竖直。水平段每2m以及转弯处0.5m内设支架,水平支架通丝不能超出角钢下边沿。支架的整体外观应成排成线、长短一致。支架如下图所示安装:矿物绝缘电缆与桥架联合支架安装示意图3矿物绝缘电缆与桥架联合支架过梁安装示意图桥架联合支架安装示意图矿物绝缘电缆支架安装示意图4技术交底记录2013年11月27日工程名称施工单位交底部位地下室工序名称桥架安装4、保护接地线安装:保护接地线应根据设计要求敷设在桥架内一侧,接地螺丝直径为6mm,连接时加平垫、弹簧垫,压接牢固。连接导线截面为4mm2。5、桥架与矿物绝缘电缆走向见附图2(一层桥架电缆走向图)。6、支架布置见附图3(一层桥架支架布置图)。五、质量标准1、金属电缆桥架及其支架和引入或引出的金属电缆导管必须接地或接零可靠,要求如下:竖井内桥架及其支架每段有2处进行接地接零。水平的桥架间连接板的两端焊截面>4mm2的铜芯接地线。2、钢制电缆桥架30m以上设置伸缩节。变形缝处设补偿装置。3、电缆桥架的弯曲半径不小于其中电缆的最小弯曲半径。4、水平安装桥架的支架间距为2m。5、桥架与支架、桥架间连接板的紧固螺栓不得遗漏,螺母位于桥架外侧。6、吊杆应高于角钢下沿。六、成品保护1、安装金属桥架时,应注意保护墙面的清洁。使用工具或机具时注意不要碰坏建筑物的墙面及门窗等。2、配线及电缆敷设完成后,桥架盖板应齐全平实,不得遗漏,并防止损坏和污染桥架。3、临时放在地面上的桥架需要用木方垫起,以防污染生锈等...

1、当您付费下载文档后,您只拥有了使用权限,并不意味着购买了版权,文档只能用于自身使用,不得用于其他商业用途(如 [转卖]进行直接盈利或[编辑后售卖]进行间接盈利)。
2、本站所有内容均由合作方或网友上传,本站不对文档的完整性、权威性及其观点立场正确性做任何保证或承诺!文档内容仅供研究参考,付费前请自行鉴别。
3、如文档内容存在违规,或者侵犯商业秘密、侵犯著作权等,请点击“违规举报”。

碎片内容

地下室桥架技术交底

爱的疯狂+ 关注
实名认证
内容提供者

该用户很懒,什么也没介绍

确认删除?
VIP
微信客服
  • 扫码咨询
会员Q群
  • 会员专属群点击这里加入QQ群
客服邮箱
回到顶部