电脑桌面
添加小米粒文库到电脑桌面
安装后可以在桌面快捷访问

小区的出入口实用标准VIP免费

小区的出入口实用标准_第1页
1/6
小区的出入口实用标准_第2页
2/6
小区的出入口实用标准_第3页
3/6
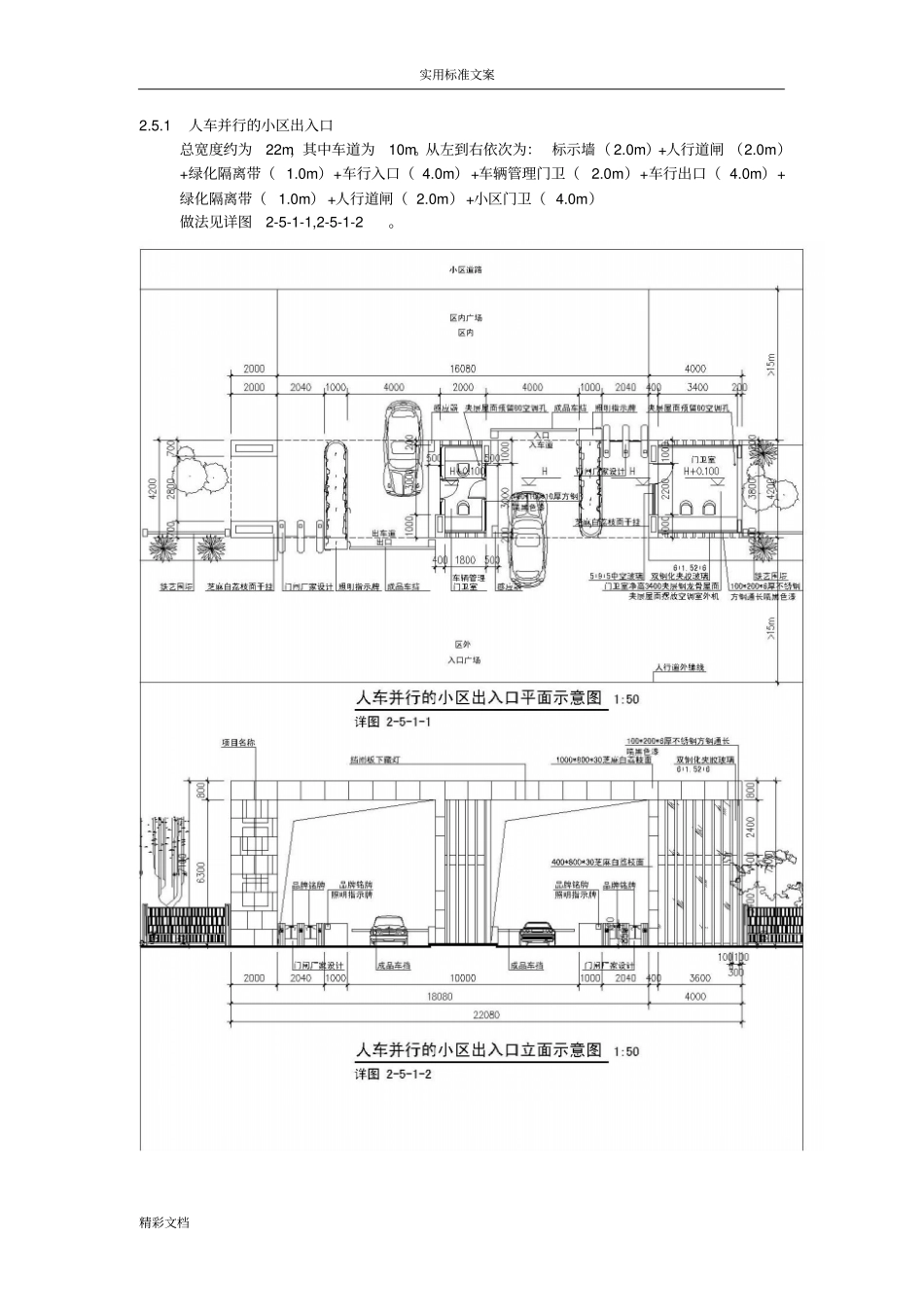
实用标准文案精彩文档小区出入口设计标准1.总图位置区域及规模1.1审核规划批文确认小区出入口设置的位置及数量。车辆出入口距离道路中心线交叉点≥70m。小区至少有2个人行及2个车行出入口。1.2与物业部确认小区出入口设置的位置、数量及人车流线。1.3与工程部确认工程分期是否对出入口管理有影响。1.4小区出入口宜均匀布置,便于主要人车流线的出入。1.5不宜与大型商业功能区邻近。1.6应绘制围墙区域图,小区除出入口其余应封闭围合,便于物业管理。1.7应绘制城市道路及区内道路车行流线图,确认小区出入口的设置是否合理。1.8小区出入口若有车行时离人行道外缘应留缓冲距离≥15米(3个车位)。2.平面布置及做法2.1门卫室应设置空调机,室外机摆放至岗亭屋面并考虑围蔽。2.4车辆出入口应加感应器。2.5小区出入口主要类型实用标准文案精彩文档2.5.1人车并行的小区出入口总宽度约为22m,其中车道为10m。从左到右依次为:标示墙(2.0m)+人行道闸(2.0m)+绿化隔离带(1.0m)+车行入口(4.0m)+车辆管理门卫(2.0m)+车行出口(4.0m)+绿化隔离带(1.0m)+人行道闸(2.0m)+小区门卫(4.0m)做法见详图2-5-1-1,2-5-1-2。实用标准文案精彩文档2.5.2人行的小区出入口兼消防车车行总宽度约为16.7m,消防车车道为8m。从左到右依次为:小区门卫(4.0m)+2个人行道闸(2.0m)+消防车车行出入口(8.7m)+标示墙(2.0m)做法见详图2-5-2-1,2-5-2-2。实用标准文案精彩文档2.5.3车行的小区出入口总宽度约为10m,其中车道为10m。从左到右依次为:车行入口(4.0m)+车辆管理门卫(2.0m)+车行出口(4.0m)做法见详图2-5-3-1,2-5-3-2。实用标准文案精彩文档2.5.4仪式型人车并行的小区出入口总宽度约为16m。从左到右依次为:车行入口(4.0m)+车辆管理门卫(2.0m)+人行道闸(4.0~6.0m)+小区门卫(2.0m)+车行出口(4.0m)做法见详图2-5-4-1,2-5-4-2。3.建筑层高3.1层高:门卫室净高宜为2.5m。4.立面处理4.1入口及门卫造型应考虑标志性和指示的作用,应有项目楼盘名称及照明设计。4.2高宽比例应合宜。5.建筑构造用料做法门卫5.1顶棚5.1.1乳胶漆顶棚●钢筋混凝土结构板,表面剔凿平整●抹水泥腻子一道1~3厚找平●抹底层腻子一道1~2厚找平●抹面层腻子一道,砂纸磨平●白色乳胶漆(二涂)5.1.2扣板顶棚—成品门卫室●配套轻钢龙骨标准骨架●0.6厚铝合金扣板或9厚硅钙扣板实用标准文案精彩文档5.2内墙面5.2.1乳胶漆内墙●高级白色乳胶漆两道●满刮腻子一道,砂纸磨平●6厚混合砂浆抹面●9厚混合砂浆打底扫毛●刷素水泥浆一遍(内加水重10%的108胶)5.2.2埃特板内墙—成品门卫室●涂料饰面层详产品工艺●满刮腻子一道,砂纸磨平,光油一道●10厚埃特板,双面均采用自攻螺丝钉固定●标准轻钢龙骨隔墙5.3地面地砖楼地面●8~10厚防滑地砖(详单项设计)铺实拍平,水泥浆擦缝●25厚1:4干硬性水泥砂浆,面上撒素水泥●15厚1:2.5水泥砂浆找平●素水泥浆结合层一遍●钢筋混凝土结构板,清扫干净5.4踢脚墙裙面砖踢脚线●100高8~10厚面砖,水泥浆擦缝●5厚1:1水泥砂浆加水重10%的108胶镶贴●刷水泥砂浆一遍●9厚混合水泥砂浆打底扫毛●素水泥浆一遍(内加水重10%的108胶)

1、当您付费下载文档后,您只拥有了使用权限,并不意味着购买了版权,文档只能用于自身使用,不得用于其他商业用途(如 [转卖]进行直接盈利或[编辑后售卖]进行间接盈利)。
2、本站所有内容均由合作方或网友上传,本站不对文档的完整性、权威性及其观点立场正确性做任何保证或承诺!文档内容仅供研究参考,付费前请自行鉴别。
3、如文档内容存在违规,或者侵犯商业秘密、侵犯著作权等,请点击“违规举报”。

碎片内容

小区的出入口实用标准

您可能关注的文档

确认删除?
VIP
微信客服
  • 扫码咨询
会员Q群
  • 会员专属群点击这里加入QQ群
客服邮箱
回到顶部