电脑桌面
添加小米粒文库到电脑桌面
安装后可以在桌面快捷访问

广州第五资源热力电厂宣教中心项目技术需求书VIP免费

广州第五资源热力电厂宣教中心项目技术需求书_第1页
1/4
广州第五资源热力电厂宣教中心项目技术需求书_第2页
2/4
广州第五资源热力电厂宣教中心项目技术需求书_第3页
3/4
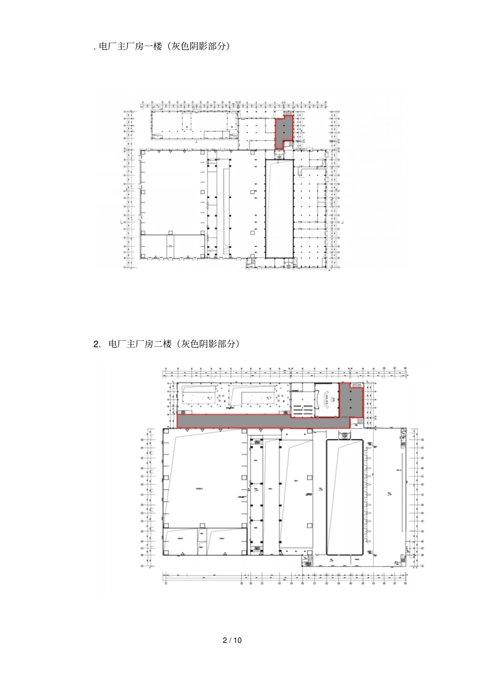
1/10广州市第五资源热力电厂宣教中心项目技术需求书一、项目背景花都区作为中国百强区(第名)、全国投资潜力百强区、全国科技创新百强区、全国绿色发展百强区、年、年工业百强区在生态文明建设、绿色环保建设、循环经济建设、发展工业旅游、振兴乡村等领域都得到巨大发展和提升。为加强提升花都区形象,展示部分发展建设成果,提升循环经济领域领头企业及广州环投集团企业品牌形象,针对社会公众进行环保行业知识科普教育,发展工业旅游,助力乡村振兴战略;现计划在第五资源热力电厂厂区内建造一个环保宣教中心,通过向社会公众提供全方位的花都区介绍、环保科普教育服务、厂区工业介绍,提高公众花都的形象认知,对垃圾焚烧项目的接受度,获得公众对项目开展工作的支持,保障公众沟通、环境影响评价等工作顺利完成。同时要作为花都区的一个形象窗口,集工业旅游、乡村振兴战略、循环经济、环保示范、科普教育、集团展示、工业厂区介绍等功能,以良好的生态、科技、低碳展示手段为载体,区域发展、循环经济介绍、环保宣教为内容,建设成为标杆性环保宣教基地、工业旅游示范和绿色生态示范项目。二、功能要求由投标人对采购方提供的区域进行功能划分,充分利用现有的空间,设计合理的参观动线,提高参观者的互动参与性,包括但不限于花都区介绍区、集团介绍区、电厂介绍区、环保宣教互动体验区、影音区、休息区、会议室。根据实际地情况,结合花都区元素、广州环投集团的系统进行宣教中心的设计,合理使用影音系统、互动系统、灯箱系统、沙盘、语音导览及相关多媒体设备。在确保人员分流,走向舒畅的前提下,展示方式丰富合理。(一)工作范围1.在场地原来的装修基础上进行宣教中心的设计(展馆设计,展示内容、文案的整理提炼,内部装饰装修、多媒体软件制作)。、利用环保工艺品、墙面展板、喷绘等对厂区进行装饰、美化。(二)宣教中心平面图2/10.电厂主厂房一楼(灰色阴影部分)2.电厂主厂房二楼(灰色阴影部分)3/10.电厂主厂房三楼(灰色阴影部分).电厂主厂房四楼(灰色阴影部分)4/10.电厂主厂房六楼主要走道与垃圾吊控制室(灰色阴影部分)三、其他要求(一)供应商资格:详见招标公告。四、采购项目需求清单:(一)投标总体要求:、除在中国境内无法获取或无法以合理的商业条件获取的,或为在中国境外使用而进行的采购外,应当采购本国货物、服务。、投标人按照本需求书所述的服务、标的数量、技术参数要求进行报价,负责本项目标的的设计、制造(或采购)、运输、交货、储存、安装调试、包材料、包质量、包工期、包安全、包文明施工、包保险、施工过程的水电、技术使用培训、试运行及包验收通过等工作;投标人报价包含完成以上工作的一切费用。(二)采购项目基本信息序号项目内容数量工期广州市第五资源热力电厂宣教中项自开工报告起日内完成

1、当您付费下载文档后,您只拥有了使用权限,并不意味着购买了版权,文档只能用于自身使用,不得用于其他商业用途(如 [转卖]进行直接盈利或[编辑后售卖]进行间接盈利)。
2、本站所有内容均由合作方或网友上传,本站不对文档的完整性、权威性及其观点立场正确性做任何保证或承诺!文档内容仅供研究参考,付费前请自行鉴别。
3、如文档内容存在违规,或者侵犯商业秘密、侵犯著作权等,请点击“违规举报”。

碎片内容

广州第五资源热力电厂宣教中心项目技术需求书

您可能关注的文档

文库当当响+ 关注
实名认证
内容提供者

该用户很懒,什么也没介绍

确认删除?
VIP
微信客服
  • 扫码咨询
会员Q群
  • 会员专属群点击这里加入QQ群
客服邮箱
回到顶部