电脑桌面
添加小米粒文库到电脑桌面
安装后可以在桌面快捷访问

水表组安装施工标准做法VIP免费

水表组安装施工标准做法_第1页
1/6
水表组安装施工标准做法_第2页
2/6
水表组安装施工标准做法_第3页
3/6
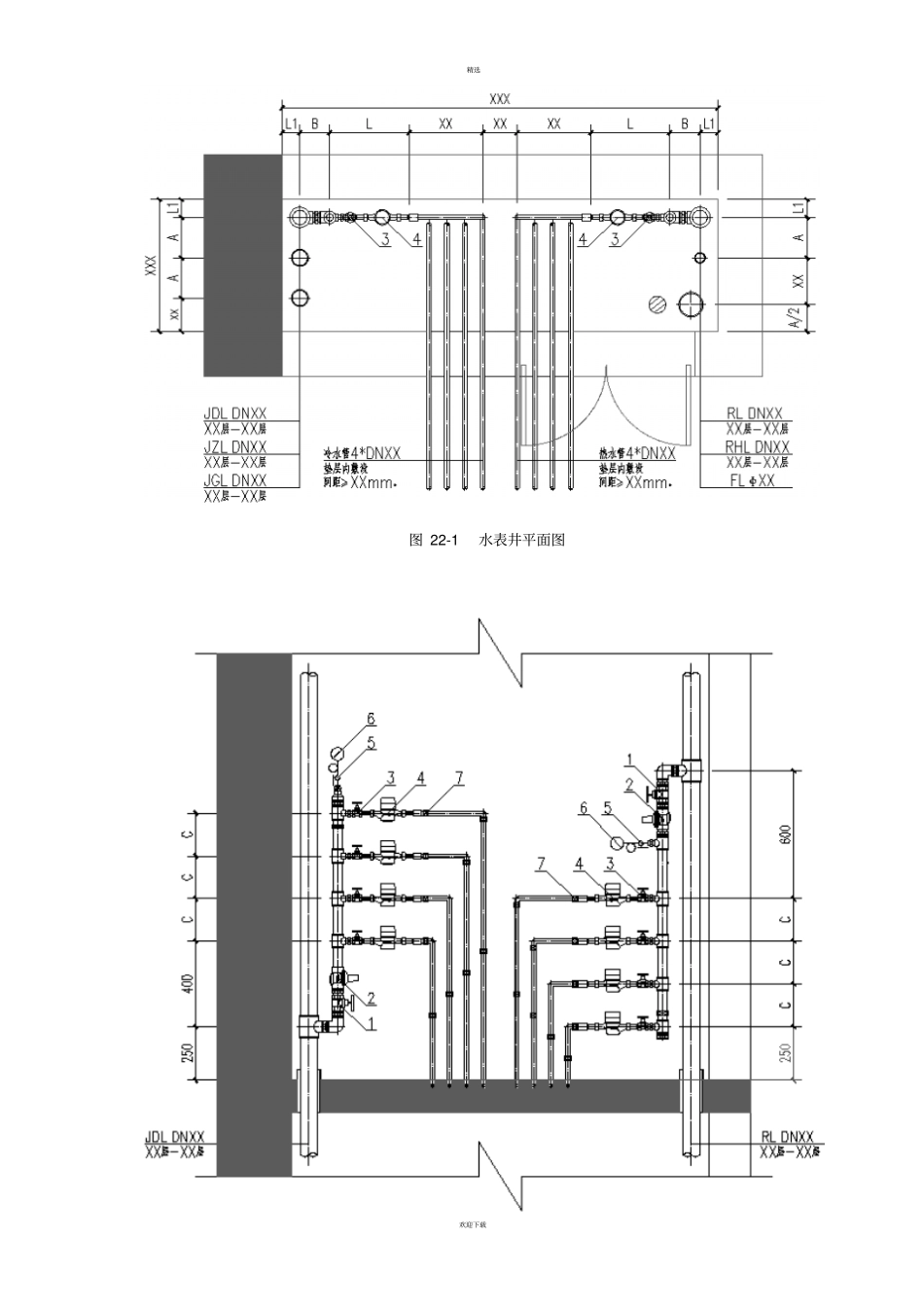
精选欢迎下载22水表组安装施工标准做法1工艺原理通过施工深化设计、成品预制等,完成水表组安装,使其在满足规范、设计的条件下,同时符合水表读数、安装、维护、拆卸的要求。2工艺流程水表及附件选型施工深化设计预留预埋管道安装及冲洗成品预制水表及附件安装3施工要点3.1水表及附件选型水表及附件的选型须符合规范设计、要求,同时考虑水表的工作环境:如水的温度、工作压力、工作时间、计量范围及水质情况等。一般情况下,公称直径不大于DN50时,应采用旋翼式水表(新型水表选型参考图集01SS105)。3.2施工深化设计(以下简称“设计”)(1)施工深化设计图纸应包括平面图(参考图22-1)及立面图(参考图22-2);深化内容包括管道定位、水表组布局、支架形式等。精选欢迎下载图22-1水表井平面图精选欢迎下载图22-2水表井立面图编号说明:1-主截止阀、2-减压阀、3-分截止阀、4-水表、5-球阀、6-压力表、7-管道支架。(2)设计前,应对水表及附件进行实测实量;如缺乏详细数据,可参考标准图集01SS105及表22-1执行,并适当留有余量,以确保水表组有足够的安装空间。表22-1水表井布置设计参数表编号名称尺寸计算备注A相邻立管最小间距A=r1+r2+100r1、r2:相邻管道半径。B立管、支管最小间距B=135~185应按最大管径选取。C水表间距C≥150应按水表规格选取。L水表组合最小尺寸/参考标准图集01SS105第8页选取。L1水表离墙最小尺寸/说明:1、螺翼式水表,表前与阀门应有不小于8倍水表接口直径的直线管段。2、表中单位均为mm。(3)为简化设计过程,相同水井宜选用水表、附件或管道最多的部位进行深化。(4)立管宜设置在墙角处;水表组宜靠墙布置。(5)立管布置应满足管道安装、维护的要求;同一系统的立管宜相邻设置,通过立管移位方式,可减少水表组管道及配件。(6)水表组布置方式应根据水表数量、水表井空间选择下行上给或上行下给的布置方式。(7)支管(即:水表下游管段)宜平行等距布置,避免交叉;如支管需跨越立管处,支管应贴墙安装。精选欢迎下载(8)管道支架间距应按管道材质及规格选取,表前、表后及弯头等部位应加强。(9)水表前后均宜装设检修阀门,水表与表后阀门间宜装设泄水装置。住宅中的分户水表,可不设表后检修阀门及专用泄水装置。(10)当水表可能发生反转时,应在水表后设止回阀,特别是进加热设备的冷水表后应设止回阀。(11)冷热水表的安装要求除工作温度不同外,基本相同。热水表最大工作温度为110℃。若热水表安装在锅炉或换热器前,为防止回流,应在水表后设止回阀。3.3施工安装准备(1)按照深化设计图完成水表井预留预埋。(2)预制、组装三通组件,组装后尺寸偏差应小于±10mm。(3)安装前,应冲洗给水总管去除麻丝、砂石等杂物,如装有过滤器也应加以清洗,以避免造成水表故障。3.4水表安装要点(1)水表应易于接近以便读数、安装、维护、拆卸。并应考虑安装场所需要适当的照明;地坪应无障碍,坚硬不滑。(2)水表应防止由安装场所周围产生冲击或震动引起损坏的危险。(3)水表不应受由管道和管件引起的过渡应力,否则水表应装在底座或托架上,以及在水表前加装柔性接头。水表的上、下游应适当地固紧。(4)水表应防止由表内的水和环境的极限温度引起损坏的危险。(5)水表安装位置应避免暴晒、水淹、冰冻和污染,在雨季和冬季应采取防雨防冻措施。(6)表壳上的箭头方向须与水流方向一致。精选欢迎下载(7)宜避免接近水表处管道截面的突然变化。(8)安装后,应让水缓慢地进入总管,并打开系统放气口或水龙头排气。图22-3支管安装实例图图22-4水表组安装实例图精选欢迎下载谢谢观看!欢迎您的下载,资料仅供参考,如有雷同纯属意外

1、当您付费下载文档后,您只拥有了使用权限,并不意味着购买了版权,文档只能用于自身使用,不得用于其他商业用途(如 [转卖]进行直接盈利或[编辑后售卖]进行间接盈利)。
2、本站所有内容均由合作方或网友上传,本站不对文档的完整性、权威性及其观点立场正确性做任何保证或承诺!文档内容仅供研究参考,付费前请自行鉴别。
3、如文档内容存在违规,或者侵犯商业秘密、侵犯著作权等,请点击“违规举报”。

碎片内容

水表组安装施工标准做法

您可能关注的文档

确认删除?
VIP
微信客服
  • 扫码咨询
会员Q群
  • 会员专属群点击这里加入QQ群
客服邮箱
回到顶部