电脑桌面
添加小米粒文库到电脑桌面
安装后可以在桌面快捷访问

任务二外形轮廓件加工正方形外形加工工作VIP免费

任务二外形轮廓件加工正方形外形加工工作_第1页
1/25
任务二外形轮廓件加工正方形外形加工工作_第2页
2/25
任务二外形轮廓件加工正方形外形加工工作_第3页
3/25
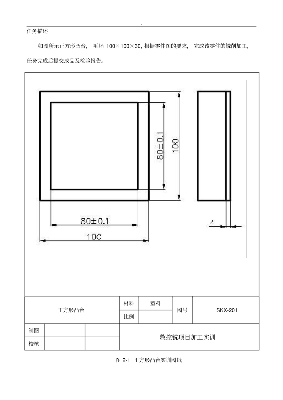
..任务二外形轮廓件加工(正方形外形加工)工作页学习目标1.在教师的指导下,叙述数控铣削加工程序的基本结构;2.叙述G01、G90、G00、G54、M03、M05、M30、M08、G80、G91等指令的含义及格式;3.按安全文明生产操作要求,根据零件图纸,以小组工作的形式,制定正方形外形轮廓件的加工工艺;4.按照安全操作规范动作和步骤,手工录入加工程序并对程序进行校验和编辑;5.对工件进行分中对刀和建立坐标系;6.使用指令编写正方形加工程序;7.在单段模式下完成平面、矩形轮廓的首件试切加工。..任务描述如图所示正方形凸台,毛坯100×100×30,根据零件图的要求,完成该零件的铣削加工,任务完成后提交成品及检验报告。正方形凸台材料塑料图号SKX-201比例制图数控铣项目加工实训校核图2-1正方形凸台实训图纸..第一部分学习准备引导问题:使用数控机床加工零件时,可以编写数控程序并将其输入机床的数控系统中,用程序控制机床完成加工,那么,数控程序的结构和格式是怎样的呢?一、数控程序结构与格式1.指令字1.1顺序号字N顺序号又称程序段号或程序段序号。顺序号位于程序段之首,由顺序号字N和后续数字组成。1.2准备功能字G准备功能字的地址符是G,又称为G功能或G指令,是用于建立机床或控制系统工作方式的一种指令。1.3尺寸字尺寸字用于确定机床上刀具运动终点的坐标位置。其中,第一组X,Y,Z,U,V,W,P,Q,R用于确定终点的直线坐标尺寸;第二组A,B,C,D,E用于确定终点的角度坐标尺寸。1.4进给功能字F进给功能字的地址符是F,又称为F功能或F指令,用于指定切削的进给速度。对于数控铣床,F指令指定的是每分钟进给量。F指令在螺纹切削程序段中常用来指令螺纹的导程。1.5主轴转速功能字S主轴转速功能字的地址符是S,又称为S功能或S指令,用于指定主轴转速,单位为r/min。1.6刀具功能字T..刀具功能字的地址符是T,又称为T功能或T指令,用于指定加工时所用刀具的编号。对于数控车床,其后的数字还兼作指定刀具长度补偿和刀尖半径补偿用。1.7辅助功能字M辅助功能字的地址符是M,后续数字一般为1~3位正整数,又称为M功能或M指令,用于指定数控机床辅助装置的开关动作。2.程序段一个数控加工程序是由若干个程序段组成的。程序段格式是指程序段中的字、字符和数据的排列形式。程序段格式举例:N30G01X88.1Y30.2F500S3000T02M08N40X90(本程序段省略了续效字“G01,Y30.2,F500,S3000,T02,M08”,但它们的功能仍然有效)在程序段中,必须明确组成程序段的各要素:移动目标:终点坐标值X、Y、Z;沿怎样的轨迹移动:准备功能字G;进给速度:进给功能字F;切削速度:主轴转速功能字S;使用刀具:刀具功能字T;机床辅助动作:辅助功能字M。3.程序结构(如图2-2所示)图2-2程序结构图请分析上述内容,完成下面填空。一个完整的加工程序包括开始符、、和。%O1234N1G90G54G00X0Y0S1000M03;N2......N100M30;开始符第一个程序段第二个程序段程序名程序主体程序结束..程序中的字符N的意思是。引导问题:数控机床自动加工正方形外形轮廓件时,刀具需要完成快速定位及直线走刀等运行轨迹,那么数控机床的快速定位及直线进给的控制指令如何编写呢?二、相关指令含义、格式及应用G00:快速定位指令格式:G00XYZG01:直线插补指令格式:G01XYZFG17:XOY平面G54:设定工件坐标系G90:绝对坐标G91:相对坐标G80:固定循环取消M03:主轴正转M04:主轴反转M05:主轴停转M30:程序结束S1200:主轴转速1200转/分钟1.G00快速定位G00快速定位指令为刀具相对于工件分别以各轴快速移动速度由始点(当前点)快速移动到终点定位。当是绝对值G90指令时,刀具分别以各轴快速移动速度移至工件坐标系中坐标为(X,Y,Z)的点上;当是增量值G91指令时,刀具则移至距始点(当前点)坐标为(X,Y,Z)的点上。各轴快速移动速度可分别用参数设定。在加工执行时,还可以在操作面板上用快速进给速率修调旋钮来调整控制。例如,刀具由点A移动至点B,X轴和Y轴的快速移动速度均为4000mm/min,程序为:G90G00X40.0Y30.0F4000或G91G00X20.0Y20.0F4000则刀具的进给路线为一折线,即刀具从起始点A先沿X轴、y轴同时移动至点B,然后...

1、当您付费下载文档后,您只拥有了使用权限,并不意味着购买了版权,文档只能用于自身使用,不得用于其他商业用途(如 [转卖]进行直接盈利或[编辑后售卖]进行间接盈利)。
2、本站所有内容均由合作方或网友上传,本站不对文档的完整性、权威性及其观点立场正确性做任何保证或承诺!文档内容仅供研究参考,付费前请自行鉴别。
3、如文档内容存在违规,或者侵犯商业秘密、侵犯著作权等,请点击“违规举报”。

碎片内容

任务二外形轮廓件加工正方形外形加工工作

您可能关注的文档

确认删除?
VIP
微信客服
  • 扫码咨询
会员Q群
  • 会员专属群点击这里加入QQ群
客服邮箱
回到顶部