电脑桌面
添加小米粒文库到电脑桌面
安装后可以在桌面快捷访问

第六章刀盘驱动系统VIP专享VIP免费

第六章刀盘驱动系统_第1页
1/12
第六章刀盘驱动系统_第2页
2/12
第六章刀盘驱动系统_第3页
3/12
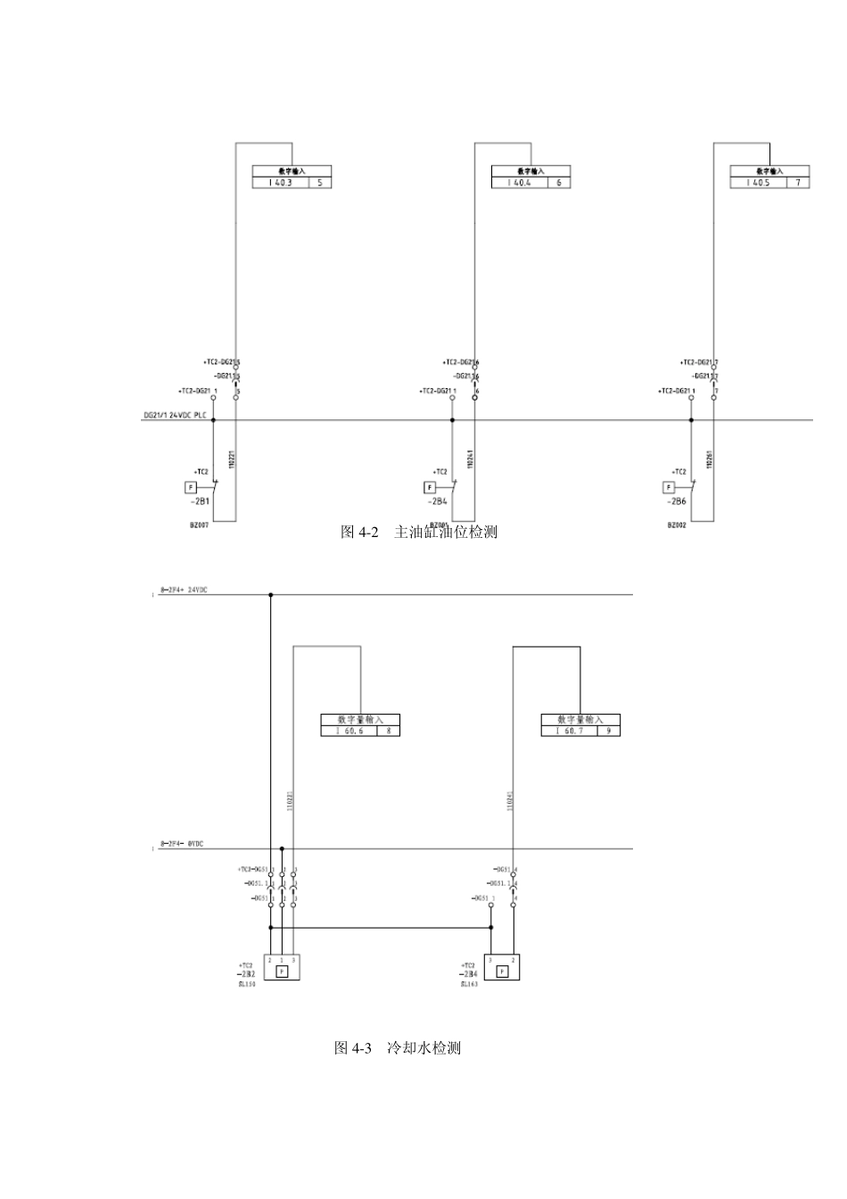
第四章 刀盘驱动系统 刀盘驱动系统是盾构中功率最大的系统,目前的盾构中,刀盘驱动方式主要有两种,一种是液压马达驱动,另一种是变频电机驱动,本章主要介绍这两种驱动方式。 第一节 刀盘电液驱动系统的启动条件 所谓电液驱动,就是由电动机驱动主油泵,再由主油泵提供的液压油驱动液压马达,液压马达经减速器驱动刀盘的驱动方式。要想刀盘能够驱动,必需满足一定的联锁条件,才能保证设备的安全运行,这些条件包括常规条件和刀盘驱动的特殊条件,这些条件在PLC 编程时,都要充分地满足。 一、常规条件 所谓常规条件,指的是刀盘驱动系统、推进系统、螺旋输送机、皮带机、泡沫系统启动的公共条件,不满足这些条件,上述系统都不能启动。这些条件是: (一)主油缸油温正常,由下列电路监测 图中3B2 和3B6 分别为温度传感器和温控开关,将各自检测的信号送到 PLC 的模拟量输入端和开关量输入端,以供分析和判断。 (二)主油缸油位正常,由下列电路监控(见图 4-2) (三)内循环水液位正常,由下列电路监控(见图 4-3) (四)齿轮油温度正常,由下列电路监控(见图 4-4) (五)主驱马达温度正常,由下列电路监控(见图 4-5) (六)盾尾油脂桶正常,由下列电路监控(见图 4-6) (七)HBW 油脂桶正常,由下列电路监控(见图 4-7) (八)主轴承润滑油脂桶正常(见图 4-8) 图 4-1 主油缸油温检测 图4 -2 主油缸油位检测 图4 -3 冷却水检测 二、刀盘启动的条件 除满足以上条件外,刀盘的启动还应满足以下条件 (一)人闸急停系统正常 (二)内循环水运行 (三)刀盘减速机温度正常 (四)刀盘齿轮油运行 (五)主轴承润滑油脂运行 (六)刀盘 HBW 油脂运行 (七)螺机转速大于设定的最小值 (八)位盘电位器起始值为零 (九)过滤泵启动 (十)补油泵启动 (十一)控制泵启动 (十二)辅助泵启动 (十三)1#或 2#主驱动选择 (十四)刀盘马达预选正常 (十五)刀盘负载满足旋转条件 (十六)刀盘内部/外部未选 (十七)刀盘左转/右转未选 (十八)刀盘旋转启动 三、主驱动泵的启动过程 土压平衡的盾构中有 2~3 台主驱动液压泵,由软启动器驱动。满足启动条件的时候,按下控制室的启动按钮 6S2,启动信号 I0.7 送到 PLC,PLC 经分析判断,符合启动条件后,由 Q69.5 驱动按钮 6S2 的指示灯,由 Q48.7 给出启动信号,驱动继电器 2K2,其常开触头闭合,使软启动器开始工作...

1、当您付费下载文档后,您只拥有了使用权限,并不意味着购买了版权,文档只能用于自身使用,不得用于其他商业用途(如 [转卖]进行直接盈利或[编辑后售卖]进行间接盈利)。
2、本站所有内容均由合作方或网友上传,本站不对文档的完整性、权威性及其观点立场正确性做任何保证或承诺!文档内容仅供研究参考,付费前请自行鉴别。
3、如文档内容存在违规,或者侵犯商业秘密、侵犯著作权等,请点击“违规举报”。

碎片内容

第六章刀盘驱动系统

确认删除?
VIP
微信客服
  • 扫码咨询
会员Q群
  • 会员专属群点击这里加入QQ群
客服邮箱
回到顶部