电脑桌面
添加小米粒文库到电脑桌面
安装后可以在桌面快捷访问

04上人保温平屋面防水建筑做法VIP免费

04上人保温平屋面防水建筑做法_第1页
1/6
04上人保温平屋面防水建筑做法_第2页
2/6
04上人保温平屋面防水建筑做法_第3页
3/6
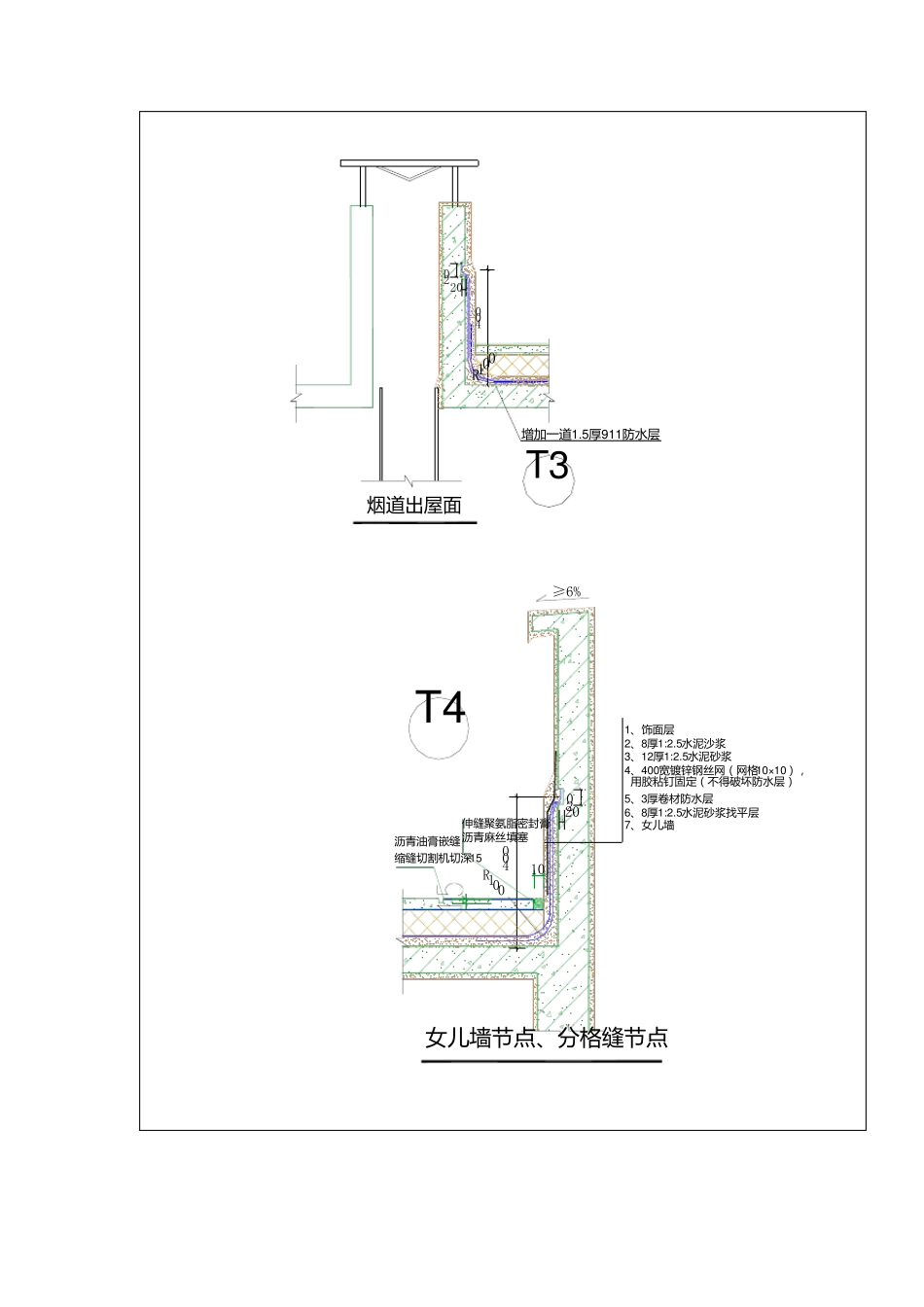
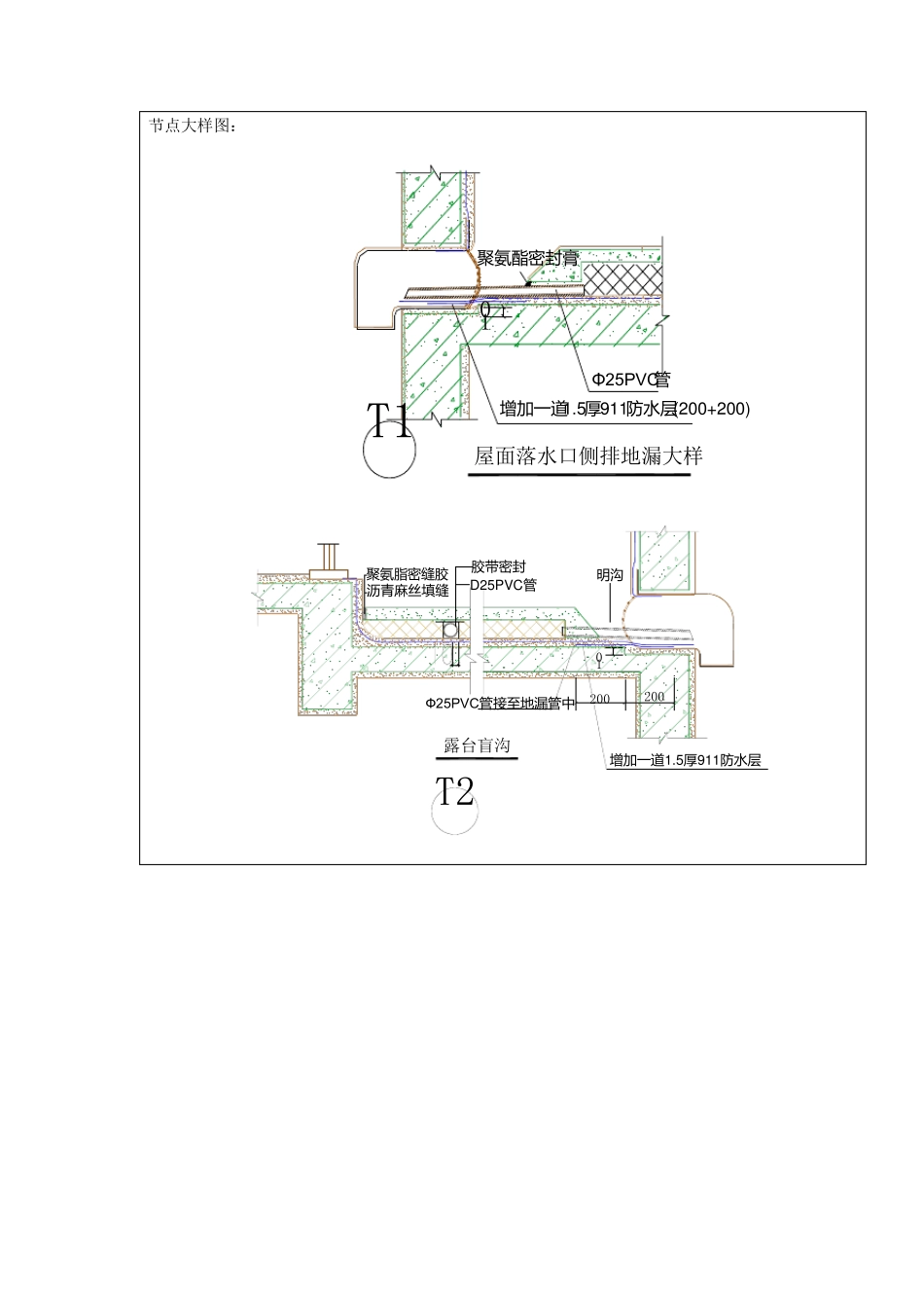
0 4 上人平保温屋面防水建筑做法 通用说明: 1、此做法适用于下部为非公共空间的上人平屋面、露台。 2、排水体系是找坡、明沟、排气有机的结合,明沟设置根据屋面形状及图纸,保证排水通畅、迅速。下方为楼梯间、开放空间(车库、架空层)无需隔热,取消保温层,4 改为点粘一层350#石油沥青油毡隔离层。小于 10 平方的私家露台不设置明沟。 构造做法: 1、8-10 厚地砖铺平拍实,1:1 水泥砂浆填缝(住户自理) 2、25 厚 1:4 干硬性水泥砂浆,面撒素水泥(住户自理) 3、40 厚 C30UEA 补偿收缩砼防水层,表面压光,内配φ4 双向 15 ;平面四周(沿墙和水沟 边)设伸缝,缝宽10 m m ,缝内嵌聚氨酯密封膏;平面内间距≤ 3000m m 设缩缝,用切割 机切深15m m ; 4、25 厚挤塑聚苯板保温层(FM250),设排气管(25PVC 管打梅花孔),3000m m ×3000m m 横 纵布置,相互连接汇集到地漏里,并在边角位设置排气孔,36 平方米内设置一个; 5、3 厚聚脂胎改性沥青防水卷材,反上结构面 400,(2.0 厚双组分聚氨酯防水涂料加强地漏、管 道周围,反上结构面不少于 400m m ,水平面不少于 200m m )如果女儿墙低于 400,防水层 在女儿墙檐口 收头; 6、刷基层处理剂一道 7、20 厚 C20 细石砼(最薄处)找 2%坡,原浆压光 8、钢筋砼板 关键质量控制点: 1、坡度地、坡向:找坡层的坡度必须满足不小于 2%,坡向排水口; 2、结构板48 小时淋水检查渗漏; 3、防水材料、配比、厚度必须验收和检查;高层建筑为 3 厚聚胺胎 SBS,多层建筑为 3 厚聚乙烯胎 SBS; 4、防水层、吊洞完成后 48 小时蓄水检查渗漏; 5、防水材料的上反高度不小于 400m m (自找坡层面算起); 6、排气管的设置(要求排气管伸入排水口,并下弯 100m m ); 7、分隔缝的施工; 8、屋面落水口应比防水层低 10-15m m ,且做成喇叭口。对立管洞口要洒水湿润洞壁和管面,在 粘结面刷一度 108 胶水泥浆,先灌 10-15m m 厚 1:2 水泥砂浆,再灌砼,用铁棒捣实,刮平表 面,第二天刷嵌一层防水材料,再补 10-15m m 厚 1:2 水泥砂浆,凹 10m m 左右。待修补料终 凝后进行蓄水 48h 试验,做到不渗水。 节点大样图: T1屋面落水口侧排地漏大样10增 加 一道1.5厚911防水层(200+200)Φ25PVC管 聚氨酯密封膏 Ф25PVC管接至地漏管中露台盲沟10200200增 加 一道1.5厚911防水层胶带密封D...

1、当您付费下载文档后,您只拥有了使用权限,并不意味着购买了版权,文档只能用于自身使用,不得用于其他商业用途(如 [转卖]进行直接盈利或[编辑后售卖]进行间接盈利)。
2、本站所有内容均由合作方或网友上传,本站不对文档的完整性、权威性及其观点立场正确性做任何保证或承诺!文档内容仅供研究参考,付费前请自行鉴别。
3、如文档内容存在违规,或者侵犯商业秘密、侵犯著作权等,请点击“违规举报”。

碎片内容

04上人保温平屋面防水建筑做法

您可能关注的文档

确认删除?
VIP
微信客服
  • 扫码咨询
会员Q群
  • 会员专属群点击这里加入QQ群
客服邮箱
回到顶部