电脑桌面
添加小米粒文库到电脑桌面
安装后可以在桌面快捷访问

农村实用民房设计平面图VIP免费

农村实用民房设计平面图_第1页
1/7
农村实用民房设计平面图_第2页
2/7
农村实用民房设计平面图_第3页
3/7
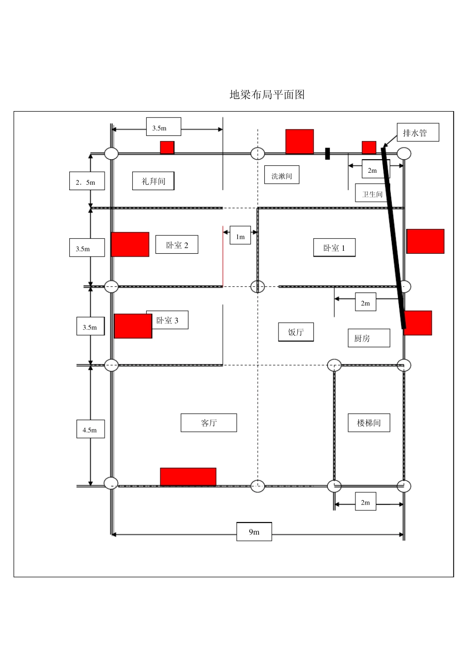
墙正放在线上(实际净空不足所标示尺寸)。 双线:30cm(双砖)。 单线:15cm(单砖)。 椭圆:100cm(窝子和柱子所在点)。 :小窗子(1 平方米)。在合适高度处留 :厨房、后墙窗子(宽 1.5x高1.8) 离地 1.5m 处 宽 1.2X 高1.5 :中号窗子。(标准尺寸大小) :阳台窗子。(全窗子都可以) 缺口:门。 :虚线表示地梁结构。 注释:(1)、一楼的窗子全部有安全网。 (2)、窗子置于相夹两墙的正中间位置。 (3)、前、后、厨房、卧室 1 窗子留大些。(为了好采光) 未解决问题: 1、 厕所净空高度在2.2m 较合适,否则太高难以安装浴霸灯,空间太大洗澡冷。 窗 地梁布局平面图 2m 3.5m 2.5m 3.5m 4.5m 9m 客厅 卧室 1 楼梯间 卧室 3 卧室 2 2m 厨房 饭厅 1m 礼拜间 卫生间 2m 3.5m 洗漱间 排水管 一楼布局平面图 2m 3.5m 2.5m 3.5m 4.5m 客厅 卧室 1 楼梯间 卧室 3 卧室 2 2m 厨房 饭厅 1m 礼拜间 卫生间 2m 3.5m 洗漱间 9m 二楼布局平面图 2m 3.5m 2.5m 3.5m 5.7m 9m 客厅 卧室 1 楼梯间 卧室 3 卧室 2 2m 厨房 饭厅 1m 礼拜间 卫生间 2m 3.5m 洗漱间 建房花费预算 钢筋: 1、20 圆:30 根*85=2550 元。 2、14 圆:200 根*45=9000 元。 3、8 圆:3.2 吨*4000=12800 元。 4、6.5 圆:0.7 吨*4000=2800 元。 总计:2250+9000+12800+2800=27150 元。 水泥: 40 吨*340=13600 元。 砖: 0.3 元*70000=21000 元。 工费: 15.2*9*2*273.6=73872 元。 地板: 240m2 *50=12000 元。 墙砖: 230m2*20=4600 元。 前瓷砖: 70m2 *20=1400 元。 角线砖: 240/0.8*2=300*2=600. 卫生间: 120*20=2400 元。 沙石: 1、 黄沙:20 车*200=4000 元。 2、 机齿沙+公分石=10000 元。 3、 毛石:1000 元。 电线:3000 元 扎线:10*40=400 元。 合计:27150+13600+21000+73872+12000+4600+1400+600+2400+4000+10000+1000+3000+400=230000 (事先假象出室内布局效果图便于调整尺寸。) 一楼室内布局效果平面图 2m 3.5m 2.5m 3.5m 4.5m 9m 客厅 卧室 1 楼梯间 卧室 3 卧室 2 2m 厨房 1m 礼拜间 卫生间 2m 3.5m 洗漱间 炉子 沙发 沙发 电视柜 饭桌 门

1、当您付费下载文档后,您只拥有了使用权限,并不意味着购买了版权,文档只能用于自身使用,不得用于其他商业用途(如 [转卖]进行直接盈利或[编辑后售卖]进行间接盈利)。
2、本站所有内容均由合作方或网友上传,本站不对文档的完整性、权威性及其观点立场正确性做任何保证或承诺!文档内容仅供研究参考,付费前请自行鉴别。
3、如文档内容存在违规,或者侵犯商业秘密、侵犯著作权等,请点击“违规举报”。

碎片内容

农村实用民房设计平面图

确认删除?
VIP
微信客服
  • 扫码咨询
会员Q群
  • 会员专属群点击这里加入QQ群
客服邮箱
回到顶部