电脑桌面
添加小米粒文库到电脑桌面
安装后可以在桌面快捷访问

农村房子太老土?这样盖房才能让你心动VIP免费

农村房子太老土?这样盖房才能让你心动_第1页
1/31
农村房子太老土?这样盖房才能让你心动_第2页
2/31
农村房子太老土?这样盖房才能让你心动_第3页
3/31
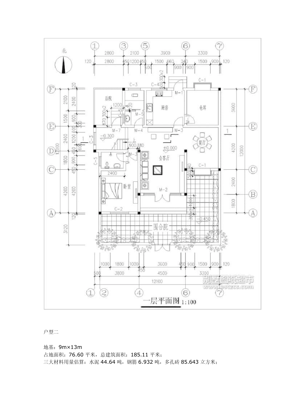
农村房子太老土?这样盖房才能让你心动! ‘转身,不再来 随着房价物价的迅速攀升,很多在外面打工的朋友感觉在城里买一套房子变得越来越艰难了,而且城市里住房面积小,空气质量越来越差;乡下就不一样了,乡下环境好,空气清新,手头有个二三十万就可以建一栋好点的房,再买辆车,生活也可以过得很潇洒。 但目前绝大多数农村建房的师傅没有专业的施工图纸,建起来的房子千篇一律,感觉很土气,没有创新!下面我给大家介绍几款新农村户型图,先展示效果图和首层的平面图,需要完整的图纸请联系别墅图纸超市。 一、新农村住宅户型 户型一: 地基:12m×12m 占地面积:116 平米,总建筑面积:213.53 平米; 户型二 地基:9m×13m 占地面积:76.60 平米,总建筑面积:185.11 平米; 三大材料用量估算:水泥 44.64 吨,钢筋 6.932 吨,多孔砖 85.643 立方米; 户型三 地基:9m×12m 占地面积:75.1 平米,总建筑面积:119.7 平米; 三大材料用量估算:水泥 32.28 吨,钢筋 4.753 吨,多孔砖 74.179 立方米; 户型四: 地基:12m×10m 占地面积:109.68 平米,总建筑面积:287.82 平米; 二、双拼户型 家里有两兄弟需要建房的可以考虑双拼的,一来兄弟间能有个照应,二来可以节省建筑成本。 户型一 地基:24m×10m 占地面积:178.46 平米,总建筑面积:284.2 平米; 户型二 地基:19m×12m 占地面积:123 平米,总建筑面积:213.2 平米; 三、独栋别墅户型 独栋别墅即独门独院,上有独立空间,下有私家花园领地,是私密性很强的独立式住宅,表现为上下左右前后都属于独立空间,一般房屋周围都有面积不等的绿地、院落。这一类型是别墅历史最悠久的一种,也是别墅建筑的终极形式。在城市里花 50 万买一百平米,在农村却可以建这样的别墅: 户型一: 地基:14m×15m 占地面积:147.7 平米,总建筑面积:366.4 平米; 户型二: 地基:13m×16m 占地面积:130 平方米,总建筑面积:310 平方米; 户型三: 地基:14m×13m 占地面积:170.38 平米,总建筑面积:412.72 平米; 户型四: 地基: 8m×12m 占地面积:88.7 平米,总建筑面积:220.9 平米; 四、精选小成本户型 如果感觉以上房屋建筑成本太高,手头又没有足够的资金,可以考虑以下户型: 户型一: 地基:12m×9m 占地面积:80.3 平米,总建筑面积:80.3 平米; 三大材料用量估算:水泥 22.85 吨,钢筋 2.77...

1、当您付费下载文档后,您只拥有了使用权限,并不意味着购买了版权,文档只能用于自身使用,不得用于其他商业用途(如 [转卖]进行直接盈利或[编辑后售卖]进行间接盈利)。
2、本站所有内容均由合作方或网友上传,本站不对文档的完整性、权威性及其观点立场正确性做任何保证或承诺!文档内容仅供研究参考,付费前请自行鉴别。
3、如文档内容存在违规,或者侵犯商业秘密、侵犯著作权等,请点击“违规举报”。

碎片内容

农村房子太老土?这样盖房才能让你心动

小辰3+ 关注
实名认证
内容提供者

出售各种资料和文档

确认删除?
VIP
微信客服
  • 扫码咨询
会员Q群
  • 会员专属群点击这里加入QQ群
客服邮箱
回到顶部