篇一:业主活动方案业主联欢会活动主题:业主联欢会活动时间:2024 年 3 月 3 日(星期六)活动形式:联欢会活动参加人数:业主 60 ...
浅谈物业管理服务与业主的沟通汪 芳(广华社区中心)联系电话:0728-6502475 15871902081内容概要:物业管理是与人民群众生活息息相关的...
浅谈建设业主对安全生产管理办法 陈耿忠 广东省广州市摘要:建设业主如何制定公司安全生产制度,对开发的项目如何实施才能最大限度避开安...
交房期间业主维权突发事件应急预案一、目的:为了确保交房工作的顺利进行,针对在交楼过程中可能与业主发生的各种纠纷,特制定本预案。二、...
业主委员会章程业主委员会负责制定出业主委员会章程。业主委员会章程主要反映出业主委员会的宗旨,是规范业主委员会的行为、保障业主委员会...
FIDIC 业主/征询工程师原则服务协议书条件(白皮书) 业主/征询工程师原则服务协议书(协议书) 业主/征询工程师原则服务协议书条件(第一...
护理中级职称考试试题――护理专业主管护师实践技能内科模拟(二) A1 题型 1.急性胰腺炎患者护理措施哪项不对的A.严密监测病情 B.注意...
护理专业主管护师基础知识模拟和答案A1 型1.对消化性溃疡病病人做健康教育,下列哪项是错误的A、 生活要有规律,注意休息B、 避免刺激...
FIDIC,CLIENT/CONSULTANT MODEL SERVICES AGREEMENT(“White Book”)Third Edition, 1998CONTENTSAGREEMENTGENERAL CONDITIONSDEFIN...
XXXXX 高速公路工程工程建设管理总结XXX 公路建设管理局二 0 一二年一月XXXXXX 高速公路工程建设管理总结XXX 高速公路是我省公路网主...
业主现场管理工作手册工程项目现场管理是企业的对外窗口,体现着企业的形象,也肩负着企业基建项目管理的重任,需要现场各个环节的人员精诚...
FIDIC 业主/征询工程师原则服务协议书条件(白皮书) 业主/征询工程师原则服务协议书(协议书) 业主/征询工程师原则服务协议书条件(第一...
物业管理 业主委员会问答----考试必备问:什么是物业管理?答:物业管理是指业主通过选聘物业服务企业,由业主和物业服务企业按照物业服务...
飞霞港湾春节期间物业工作方案与业主春节消防安全攻略狗年春节的脚步越来越近了,每年的春节,都是居民用火、用电、燃放烟花爆竹等的高峰期...
总包与业主、监理、设计人等单位配合措施第一节 总包与业主的关系处理 2第二节 总包与设计单位的合作关系处理 2 第三节 项目部与监理...
紫薇·东进老业主维系方案一、维系背景截至 2024 年 7 月 16 日,紫薇东进共售出 395 套住宅,积累了 395 组成交客户。由于项...
总包单位对业主指定分包单位的管理协议一、总分包管理原则总包单位受业主委托对业主指定分包单位的施工进行现场协调与配合服务工作,其服务...
开发商、物业管理公司、业主三者之间关系 进展商和物业管理公司与业主之间常发生许多矛盾和纠纷,给物业管理工作带来了很大的麻烦,究其原...
监理向业主提供的资料包括:项目建设过程监理提供资料和工程竣工监理归档移交资料、属业主财产的业主提供给监理机构用于实施监理服务的文件...
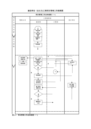
建设单位(业主方)工程项目管理工作流程图项目管理工作总体流程(一)项目立项与可研设计与招标物资公司工程指挥部设计单位建设部工程部是是...

