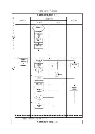
建设单位(业主方)工程项目管理工作流程图项目管理工作总体流程(一)项目立项与可研设计与招标物资公司工程指挥部设计单位建设部工程部是是...
工程项目管理工作流程图项目管理工作总体流程(一)项目立项与可研设计与招标物资公司工程指挥部设计单位建设部工程部是是否 否 图 1—1...
建筑工程项目业主方工作手册业主方在开发前期的工作一、 确定投资建设工程项目对项目从前期开发角度入手,进行合理分析和有效测算,为公司...
XXX 道路、给、排水工程业主竣工总结XXX 基础设施开发建设有限公司二○一五年十一月二十日根据 XXX 规划和工程建设进度要求,我单位于 ...
项目现场管理制度***建设投资有限公司目 录一、总则 3二、 编制目的 2 三、 编制依据 2 四、 适用范围及对象 2 五、 实施日...
业主证明湘阴县 2024 年度低丘岗地改造项目第一标段,由湖北大洋水利水电建筑有限公司中标承建。承担本工程的项目经理:黄建平、技术负责...
工程部/业主代表岗位职责直接上级:总工助理 直接下级:施工单位1、加强协调和服务工作,积极主动地与地方各级政府有关部门联系,协调好工程...
序号归档文件册数页数一监理综合文件1监理委托合同、协议(总监任命通知、公司资质证、营业执照、代码证、开户许可证、监理人员资格证、参建...
绿能高科集团有限公司工程项目建设管理办法(试行)1 总则 制度名称绿能高科集团有限公司工程建设项目管理办法主办部门工程部制度文号制度...
工程建设项目业主的安全管理 引言多年来,作为建设项目管理者的主体,很多建设项目的业主没有充分意识到自身在安全管理中所起到的关键作用,...
FIDIC 业主/征询工程师原则服务协议书条件(白皮书) 业主/征询工程师原则服务协议书(协议书) 业主/征询工程师原则服务协议书条件(第一...
业主项目部手册—安全管理部分一、单选题(149 题)1、项目安委会由 A 负责组织召开。A、建设单位 B、设计单位 C、监理单位 D、施工...
就物业管理公司和小区业主的关系来讲,一个是提供服务收取管理费,一个是享受服务支付管理费,二者应该是一种比较单纯的合作关系。然而,随着...
就物业管理公司和小区业主的关系来讲,一个是提供服务收取管理费,一个是享受服务支付管理费,二者应该是一种比较单纯的合作关系.然而,随着...
苏 州 工 业 园 区 海 尚 壹 品 小 区 业主 管 理 规 约 ( 草 案 )第一章 总则第一条为加强物业管理区域内建筑物及...
小区业主满意度问卷调查表尊敬的女士/先生:您好!非常感谢您在百忙中完成调查,为了进一步完善物业的管理工作,也为给各位尊敬的业主提供...
小区业主满意度问卷调查表尊敬的女士/先生: 您好!非常感谢您在百忙中完成调查,为了进一步完善物业的管理工作,也为给各位尊敬的业主提供...
衡阳市 XX 物业管理有限公司业主满意度调查表尊敬的业主: XX 物业为 XXXX 提供物业服务已经三年了。这三年来,我们一直致力于为您提...
小区业主游泳竞赛的方案在这炎炎夏日,为体现公司全心全意服务业主的宗旨,客户服务中心以实质回报业主对物业的支持和肯定,特举办“小区业...
客户满意度调查问卷尊敬的客户:您好!感谢您一直以来对我们的大力支持!我们非常渴望听到您的声音,无论满意与否.为更好地为您服务,烦请您...

