电脑桌面
添加小米粒文库到电脑桌面
安装后可以在桌面快捷访问

《安装工程造价之从零基础讲解》VIP专享VIP免费

《安装工程造价之从零基础讲解》_第1页
1/89
《安装工程造价之从零基础讲解》_第2页
2/89
《安装工程造价之从零基础讲解》_第3页
3/89
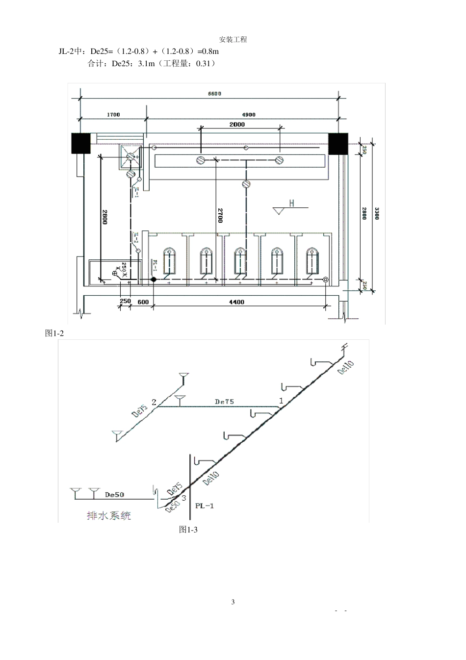
安装工程预算 (上册) 课程内容 本教材分为上下册 上册以水暖工程的工程量计算和安装工程造价的组成、计算为主要内; 下册以电气工程的工程量计算和工程量清单及清单计价为主要内容。 第一章 给水排水工程 第一节 室内给水工程识图中的预算知识 室内给水工程施工顺序 引入管-→干管―→立管―→支管-→阀门类-→水压试验-→管道冲洗消毒。 一、引入管也称进户管 1、室内外管道界限划分 (1)入户处有阀门者以阀门为界(水表节点)。 (2)入户处无阀门者以建筑物外墙皮1.5m 处为界。 2、防水套管 入户管在穿越地下室等外墙时,要设置防水套管,根据不同的防水要求分为刚性、柔性两种。刚性防水套管在一般防水要求时使用,柔性防水套管在防水要求较高时使用,如;水池壁、与水泵连接处。 (1)定额单位:个 (2)规格:按被套管的管径确定。 安 装 工 程 - - 2 图 1-1 注 意 : 入 户 管 为 DN100, 那 么 防 水 套 管 规 格 即 为 “DN100”的 , 该 防 水 套 管 的 规 格 虽 是 “DN100”, 但 其真 正 的 管 径 不 是 DN100的 , 而 应 该 是 DN150, 比 被 套 管 的 管 径 大 , 否 则 穿 不 过 去 。 DN100防 水 套 管 这 一 定额 ( 6册 ) 中 已 经 按 DN150的 人 工 费 、 材 料 费 、 机 械 费 计 入 了 。 〔 例 题 〕 1 、 某 给 排 水 工 程 给 水 入 户 管 为 De75, 消 防 入 户 管 为 DN100 , 排 水 入 户 管 为 De160, 在 穿 越 建筑 物 外 墙 时 设 置 防 水 套 管 , 问 : 分 别 用 什 么 规 格 的 防 水 套 管 ? 答 : 给 水 用 DN80的 防 水 套 管 1个 。 消 防 用 DN100的 防 水 套 管 1个 。 排 水 用 DN150的 防 水 套 管 3个 。 二 、 管 道 计 算 ( 干 管 、 立 管 、 支 管 ) 1、 定 额 单 位 : 10m 2、 计 算 : 按 不 同 材 质 、 不 同 管 径 分 别 累 计 长 度 。 准 确 计 算 管 道 长 度 的 关 键 是 找 准 管 道 变 径 点 的 位 置 , 对 于 螺 纹 连 接 的 管 道 来 说 , 变 径 点 发 生 在 三 通 处 。 注 意 : 管 道 的 弯 头 、 阀 门 、 穿 楼 板 ...

1、当您付费下载文档后,您只拥有了使用权限,并不意味着购买了版权,文档只能用于自身使用,不得用于其他商业用途(如 [转卖]进行直接盈利或[编辑后售卖]进行间接盈利)。
2、本站所有内容均由合作方或网友上传,本站不对文档的完整性、权威性及其观点立场正确性做任何保证或承诺!文档内容仅供研究参考,付费前请自行鉴别。
3、如文档内容存在违规,或者侵犯商业秘密、侵犯著作权等,请点击“违规举报”。

碎片内容

《安装工程造价之从零基础讲解》

确认删除?
VIP
微信客服
  • 扫码咨询
会员Q群
  • 会员专属群点击这里加入QQ群
客服邮箱
回到顶部