电脑桌面
添加小米粒文库到电脑桌面
安装后可以在桌面快捷访问

《安装工程造价之从零基础讲解》VIP专享

《安装工程造价之从零基础讲解》_第1页
1/89
《安装工程造价之从零基础讲解》_第2页
2/89
《安装工程造价之从零基础讲解》_第3页
3/89
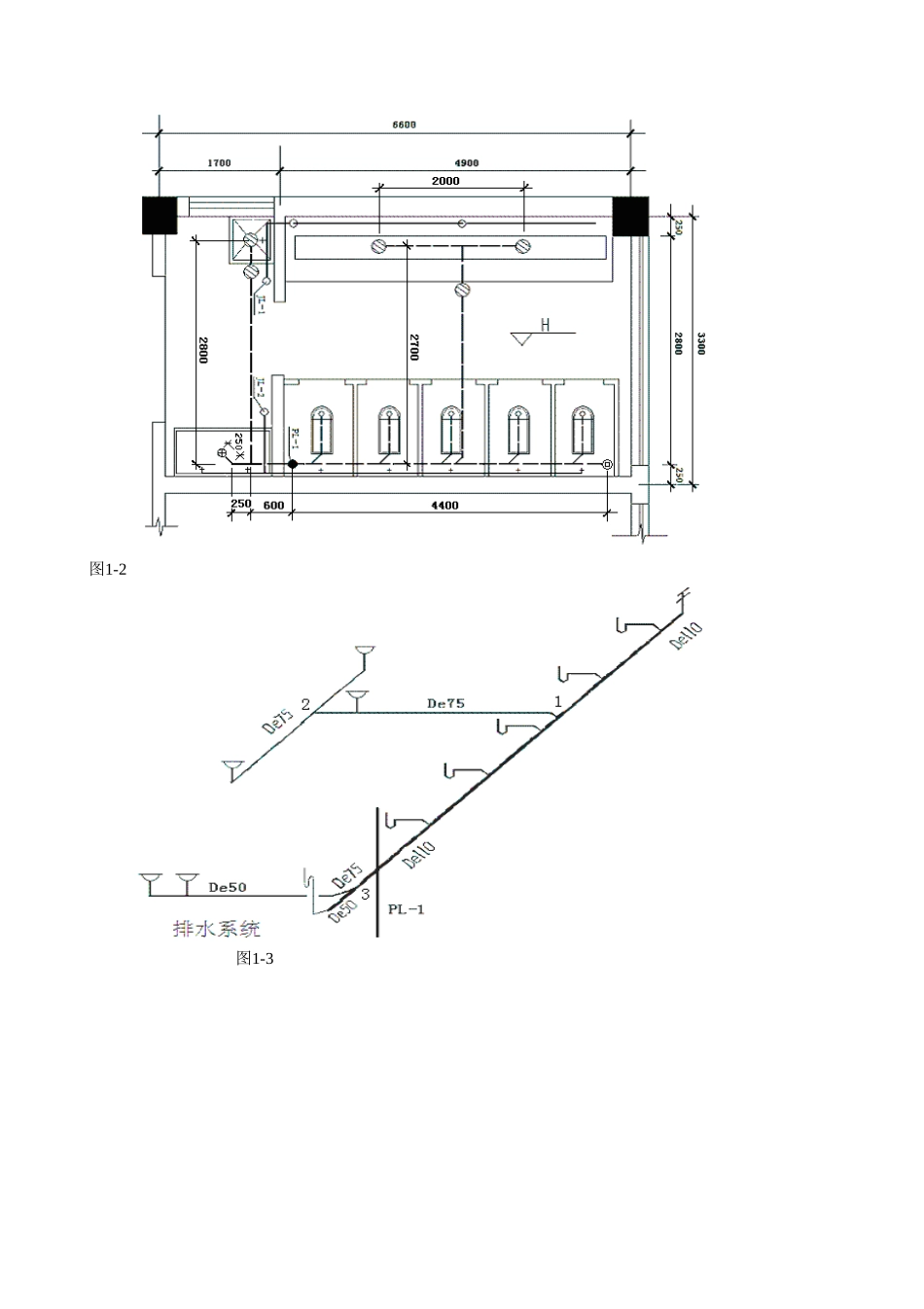
安装工程预算(上册)课程内容本教材分为上下册上册以水暖工程的工程量计算和安装工程造价的组成、计算为主要内;下册以电气工程的工程量计算和工程量清单及清单计价为主要内容。第一章 给水排水工程第一节 室内给水工程识图中的预算知识室内给水工程施工顺序引入管-→干管―→立管―→支管-→阀门类-→水压试验-→管道冲洗消毒。一、引入管也称进户管1、室内外管道界限划分(1)入户处有阀门者以阀门为界(水表节点)。(2)入户处无阀门者以建筑物外墙皮1.5m处为界。2、防水套管 入户管在穿越地下室等外墙时,要设置防水套管,根据不同的防水要求分为刚性、柔性两种。刚性防水套管在一般防水要求时使用,柔性防水套管在防水要求较高时使用,如;水池壁、与水泵连接处。 (1)定额单位:个(2)规格:按被套管的管径确定。图1-1注 意 : 入 户 管 为 DN100 , 那 么 防 水 套 管 规 格 即 为 “ DN100” 的 , 该 防 水 套 管 的 规 格 虽 是“DN100”,但其真正的管径不是DN100的,而应该是DN150,比被套管的管径大,否则穿不过去。DN100防水套管这一定额(6册)中已经按DN150的人工费、材料费、机械费计入了。 〔例题〕1、某给排水工程给水入户管为De75,消防入户管为DN100 ,排水入户管为De160,在穿越建筑物外墙时设置防水套管,问:分别用什么规格的防水套管?答:给水用DN80的防水套管1个。消防用DN100的防水套管1个。排水用DN150的防水套管3个。二、管道计算(干管、立管、支管)1、定额单位:10m2、计算:按不同材质、不同管径分别累计长度。准确计算管道长度的关键是找准管道变径点的位置,对于螺纹连接的管道来说,变径点发生在三通处。注意:管道的弯头、阀门、穿楼板、穿墙等处一般不会是管道变径点的位置。(1)水平管计算:应根据平面图上标注的尺寸计算,因为图纸设计原因安装工程施工图中很少有尺寸标注,或因计算太繁琐,实际工作中利用比例尺进行计量。将不同规格的管道分别计算,然后汇总。如下图1-2某卫生间的平面图中的排水系统,计算水平管道的长度时,参考图1-3中标注的管径,在平面图中用比例尺计量。首先,查看施工图比例,并复核。De110:从PL-1立管中心量至清扫口中心的位置。为:4.4mDe75:从排水横管上1#三通(De110×De75)处量至小便槽处的2#三通及小便槽内两个De75的地漏间之长为:2.7m+2m=4.7m,再从PL-1立管中心量至3#三通处为:0.6m,两处之和为4.7m+0.6m=5.3...

1、当您付费下载文档后,您只拥有了使用权限,并不意味着购买了版权,文档只能用于自身使用,不得用于其他商业用途(如 [转卖]进行直接盈利或[编辑后售卖]进行间接盈利)。
2、本站所有内容均由合作方或网友上传,本站不对文档的完整性、权威性及其观点立场正确性做任何保证或承诺!文档内容仅供研究参考,付费前请自行鉴别。
3、如文档内容存在违规,或者侵犯商业秘密、侵犯著作权等,请点击“违规举报”。

碎片内容

《安装工程造价之从零基础讲解》

确认删除?
VIP
微信客服
  • 扫码咨询
会员Q群
  • 会员专属群点击这里加入QQ群
客服邮箱
回到顶部