电脑桌面
添加小米粒文库到电脑桌面
安装后可以在桌面快捷访问

巴南立交改造工程施工专项方案模板

巴南立交改造工程施工专项方案模板_第1页
1/59
巴南立交改造工程施工专项方案模板_第2页
2/59
巴南立交改造工程施工专项方案模板_第3页
3/59
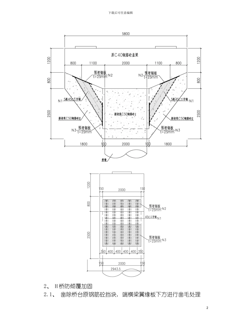
下载后可任意编辑巴南立交改造工程施工专项方案1下载后可任意编辑第一章 工程概况一、 工程概况巴南立交为内环快速路与渝南大道、 龙洲大道(渝南分流道)之间的六路立体交叉, 现状为单喇叭立交, 本次设计充分利用原有立交, 除了界石至渝南大道方向匝道废除外, 其它匝道均利用, 且不进行改造。渝南大道为南北走向, 城市主干道 I 级, 设计行车速度 60Km/h, 双向六车道, 路幅宽度为 54m; 龙洲大道为南北走向, 为城市主干道 I 级, 设计行车速度 50Km/h, 双向六车道, 路幅宽度为 44m; 内环快速路为东西走向, 设计行车速度 80Km/h, 路幅宽度为 32m, 双向六车道, K0+000~K1+266.995 为本次改造范围, 快速路两侧设置集散车道, 分别为 A 匝道、 B 匝道。本项目新建匝道全长 3584.706m, 挖方 246609m3, 填方148796m3, 路面 26354m2, 桥梁 5 座,下穿通道 2 座。本工程加固施工内容范围为盖梁加固、 H 桥防倾覆加固施工及内环快速拼宽桥桥墩防护。1、 盖梁加固本次盖梁加固范围为: A 匝道 A1、 C 匝道 C2、 B 匝道 B2 和 B3 墩柱盖梁。1.1、 原盖梁构造图1.2、 盖梁型钢支承、 增大截面加固立面构造1下载后可任意编辑2、 H 桥防倾覆加固2.1、 凿除桥台原钢筋砼挡块, 端横梁翼缘板下方进行凿毛处理2下载后可任意编辑2.2、 增设大致积砼挡块, 极限梁体转角位移。3、 内环快速拼宽桥桥墩防护新增路缘石及波形护栏3下载后可任意编辑二、 工程特点1、 本工程内环快速路与渝南大道、 龙洲大道(渝南分流道)之间的六路立体交叉, 施工难度大, 社会关注度高, 工期紧。2、 工程地处城区主干道, 安全文明施工措施要求高。3、 本工程连接内环快速公路, 交通量大, 不能停运, 交通协调难度大, 施工期间安全风险高, 交通安全措施费用高。4、 本工程跨越重庆市轨道交通三号线, 作业难度大。三、 施工要求1、 严格遵守施工技术法律规范及质量检验评定标准的要求。施工时, 对比原桥盖梁施工图及工程实物掌握原有结构的准确几何尺寸及构造, 熟悉场地状况, 更好地组织施工。2、 顶升梁体施工时必须全过程进行监控监测。。3、 搭设临边防护栏杆及安全用电系统布置。4、 设立完善的安全警示标志, 保证施工安全。5、 本次加固所选用的材料必须符合国家法律规范及设计要求。四、 技术保证条件4下载后可任意编辑1、 建立以项目经理为首的安全管理组织架构, 层层落实安全责任。2...

1、当您付费下载文档后,您只拥有了使用权限,并不意味着购买了版权,文档只能用于自身使用,不得用于其他商业用途(如 [转卖]进行直接盈利或[编辑后售卖]进行间接盈利)。
2、本站所有内容均由合作方或网友上传,本站不对文档的完整性、权威性及其观点立场正确性做任何保证或承诺!文档内容仅供研究参考,付费前请自行鉴别。
3、如文档内容存在违规,或者侵犯商业秘密、侵犯著作权等,请点击“违规举报”。

碎片内容

巴南立交改造工程施工专项方案模板

您可能关注的文档

确认删除?
VIP
微信客服
  • 扫码咨询
会员Q群
  • 会员专属群点击这里加入QQ群
客服邮箱
回到顶部