电脑桌面
添加小米粒文库到电脑桌面
安装后可以在桌面快捷访问

铝合金电阻点焊和缝焊工艺样本

铝合金电阻点焊和缝焊工艺样本_第1页
1/14
铝合金电阻点焊和缝焊工艺样本_第2页
2/14
铝合金电阻点焊和缝焊工艺样本_第3页
3/14
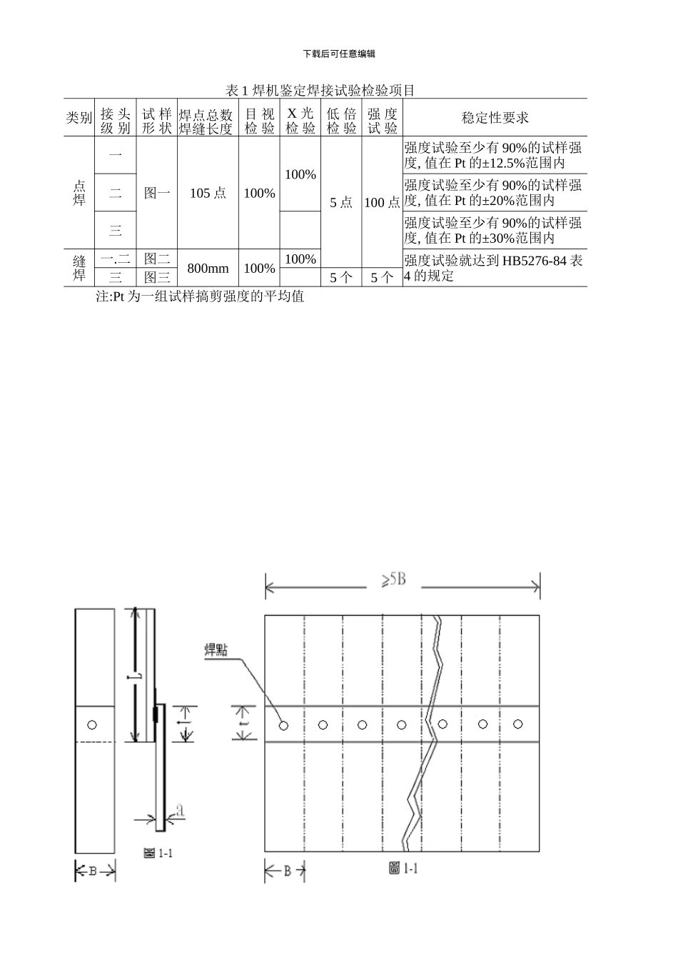
中华人民共和国航空工业部部标准 HB/Z 77-84铝合金电阻点焊和缝焊工艺1 总则1.1 本标准适用于 LF2、 LF3、 LF6、 LF21、 LY12、 LY16、 LC4、 LC9 变形铝合金电阻点焊及 LF2、 LF3、 LF6、 LF21 变形铝合金电阻缝焊工艺。1.2 焊工应有焊接航空产品的焊接操作证书。2 设备 2.1 焊机:点焊机、 缝焊机。 2.1.1 焊接铝合金一般选用直流脉冲式、 电容储能式、 次级整流式等类型的焊机,缝焊机建议选用步进式的。 2.1.2 焊机最好具有三种加压方式:不变的压力、 附加锻压力、 附加予压和锻压力。 2.1.3 焊机电极臂应有足够的刚性,当施加最大额定压力时,臂长不大于 500㎜,弹性挠度应不超过 1.5㎜,臂长不大于 1200㎜,挠度应不超过 2㎜。 2.1.4 焊机在规定气压范围和额定焊接速度下工作时,电极压力的波动应不超过+8%。上电极下降时应平稳无冲击现象。 2.1.5 焊机工作时,电源电压应在额定值的+5%范围内。管道压缩空气压力应不低于5kg/cm2,室温应不低于 15℃。 2.1.6 焊机的次级回路电阻,直流脉冲焊机应不大于 60μΩ,沟通焊机应不大于100μΩ,单个活动连结处电阻不大于 20μΩ,单个固定结合处电阻不大于 2μΩ。焊机的次级回路电阻至少三个月测量一次,并记入设备档案中。 2.1.7 焊机应定期检修,活动导电部分应定期更换石墨润滑剂。 2.1.8 焊机应配备必要的专用工具。 2.1.9 焊机在安装、 改装、 大修或改变动力线路之后,由工厂主管部门组织进行鉴定,鉴定合格后才允许投入生产使用。 焊机鉴定内容如下:a. 按附录 A《焊机鉴定表》规定内容测量焊机的参数。下载后可任意编辑b. 选用生产中常见的一种材料,取最薄和最厚的两种相同厚度的组合进行工艺稳定性试验,试验内容列于表 1,试验结果应符合表 1 及 HB5276--84《铝合金电阻点焊和缝焊质量检验》的规定。在全部试验项目中有一项不合格, 则应调整焊机重新试验, 直到全部试验项目合格为止。鉴定试验结果应记入焊机鉴定表中(附录 A)。c. 焊机鉴定试验应按生产需要在该焊机上焊接的最高等级接头的要求进行。 2.2 电极和滚盘 2.2.1 电极和滚盘能够采纳镉青铜或其它铜合金, 其导电率应不低于 80%IACS(国际标准退火铜)。布氏硬度不小于 110kgf/mm2。当电极压力不大于 600kgf 时, 可选用布氏硬度不小于 80 kgf/mm2的冷拉钢。 2.2.2 电极和滚盘应按不同材料分别打上印记, 并不在损伤其工作面的条件下存放。航空工业部 1983-05-30 发...

1、当您付费下载文档后,您只拥有了使用权限,并不意味着购买了版权,文档只能用于自身使用,不得用于其他商业用途(如 [转卖]进行直接盈利或[编辑后售卖]进行间接盈利)。
2、本站所有内容均由合作方或网友上传,本站不对文档的完整性、权威性及其观点立场正确性做任何保证或承诺!文档内容仅供研究参考,付费前请自行鉴别。
3、如文档内容存在违规,或者侵犯商业秘密、侵犯著作权等,请点击“违规举报”。

碎片内容

铝合金电阻点焊和缝焊工艺样本

您可能关注的文档

确认删除?
VIP
微信客服
  • 扫码咨询
会员Q群
  • 会员专属群点击这里加入QQ群
客服邮箱
回到顶部