电脑桌面
添加小米粒文库到电脑桌面
安装后可以在桌面快捷访问

CAD高级练习绘图题建筑类

CAD高级练习绘图题建筑类_第1页
1/40
CAD高级练习绘图题建筑类_第2页
2/40
CAD高级练习绘图题建筑类_第3页
3/40
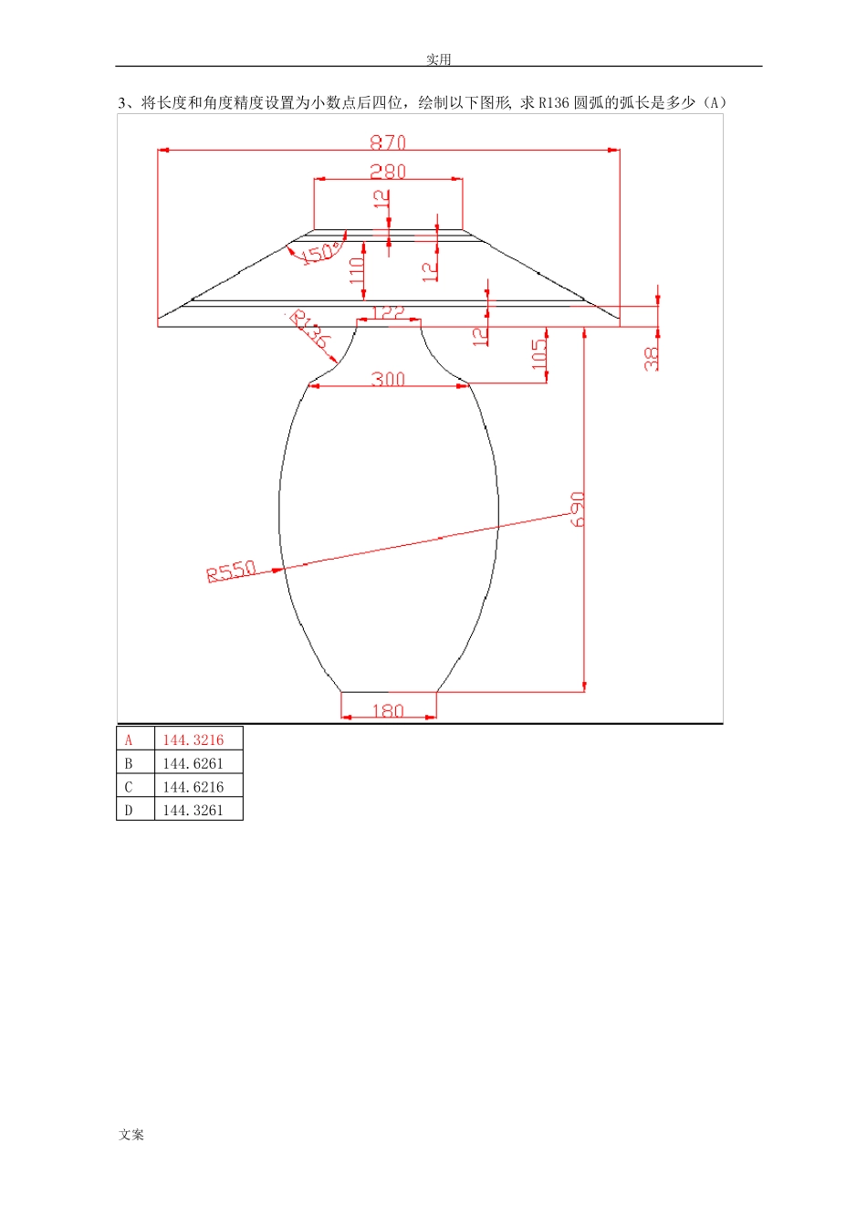
实用绘图题:1、将长度和角度精度设置为小数点后四位,绘制以下图形, 求蓝色区域的面积(C)A11819429.6342B11819429.6432C11819429.6324.D11819429.6243文案实用2、将长度和角度精度设置为小数点后四位,绘制以下图形, 求蓝色区域的周长是多少(D)ABCD1831.53591831.58531831.5389.1831.5398文案实用3、将长度和角度精度设置为小数点后四位,绘制以下图形, 求 R136 圆弧的弧长是多少(A)ABCD144.3216144.6261144.6216144.3261文案实用4、将长度和角度精度设置为小数点后四位,绘制以下图形, 求图中蓝色区域的面积是多少?(A)A673522.1316B673522.1361C673522.1613D673522.3161文案实用5、将长度和角度精度设置为小数点后四位,绘制以下图形, 求图中蓝色区域的周长是多少?(C)A5198.8796B5198.8967C5198.8769D5198.7867文案实用6、将长度和角度精度设置为小数点后四位,绘制以下图形, 求下图的整体面积是多少?(A)A176113.3139B176113.3193C176113.3339D176113.1339文案实用7、将长度和角度精度设置为小数点后四位,绘制以下图形, 求下图中 R145 的弧长是多少?(C)A261.4680B261.4080C261.4608D261.4086文案实用8、将长度和角度精度设置为小数点后四位,绘制以下图形, 求图中蓝色区域的周长是多少?(A)A386.1007B386.1008C386.1009D386.1010文案实用9、将长度和角度精度设置为小数点后四位,绘制以下图形, 求图中红色区域的面积是多少?(D)A601.5243B601.5043C601.5143D601.5134文案实用10、将长度和角度精度设置为小数点后四位,绘制以下图形, 求图中角 CAB 的值?(D)A12.6720°B12.6719°C12.6718°D12.6717°文案实用11、24 绘制下图,并回答问题。将绘图精度设置为小数点后四位,图中玻璃的面积为 BA、14900B、14904C、14902D、14908文案实用12、绘制下图,并回答问题。将绘图精度设置为小数点后四位,图中B 段线的长度为 AA、37.7817C、37.8817文案B、37.7827D、37.7017实用13、将绘图精度设置为小数点后四位,绘制下图,并回答问题。图中阴影宽度为10。图中 A 的面积为:BA、2477.1337B、2477.1327C、2477.1325D、2477.1320文案实用14、将绘图精度设置为小数点后四位,绘制下图,并回答问题。图中阴影宽度为10。图中 CD 段的弧长为:CA、133.5420B、133.5329C、133.5429D、133.5439文案实用15、绘制下图,回答问题。将绘图精度设置为小数点后四位,图中所标注的L 的长度为 BA、49.11B、49.71C...

1、当您付费下载文档后,您只拥有了使用权限,并不意味着购买了版权,文档只能用于自身使用,不得用于其他商业用途(如 [转卖]进行直接盈利或[编辑后售卖]进行间接盈利)。
2、本站所有内容均由合作方或网友上传,本站不对文档的完整性、权威性及其观点立场正确性做任何保证或承诺!文档内容仅供研究参考,付费前请自行鉴别。
3、如文档内容存在违规,或者侵犯商业秘密、侵犯著作权等,请点击“违规举报”。

碎片内容

CAD高级练习绘图题建筑类

确认删除?
VIP
微信客服
  • 扫码咨询
会员Q群
  • 会员专属群点击这里加入QQ群
客服邮箱
回到顶部