电脑桌面
添加小米粒文库到电脑桌面
安装后可以在桌面快捷访问

墙柱面装饰工程施工工艺手法

墙柱面装饰工程施工工艺手法_第1页
1/20
墙柱面装饰工程施工工艺手法_第2页
2/20
墙柱面装饰工程施工工艺手法_第3页
3/20
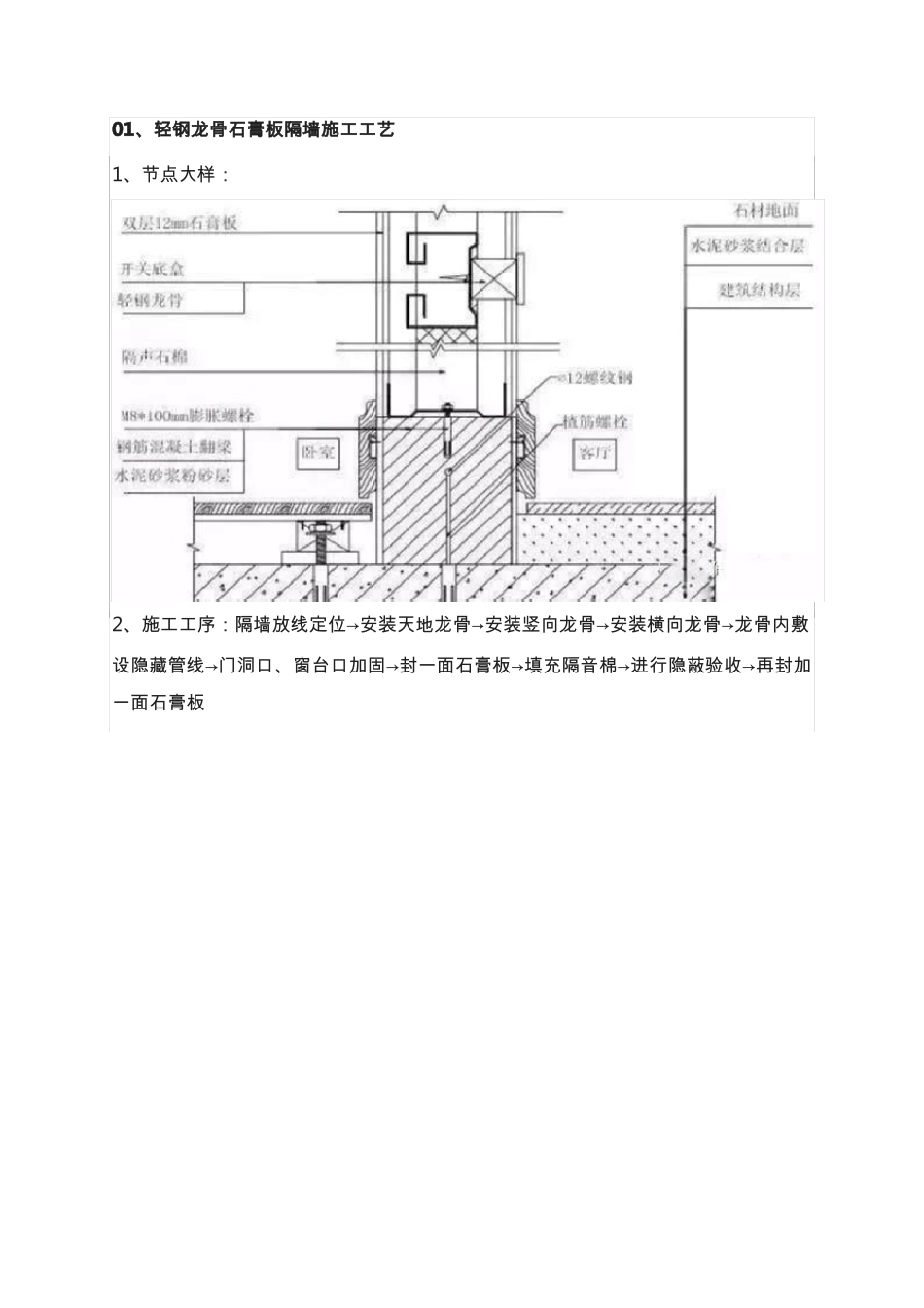
墙柱面装饰工程是在墙柱结构上进行表层装饰的工程,分为“内墙面装饰工程”和“外墙面装饰工程”。下面我们为大家总结了 7 点此方面的施工工艺手法。1、轻钢龙骨石膏板隔墙施工工艺2、卫生间镀锌方通隔墙施工工艺3、石材灌浆施工工艺4、墙面石材干挂施工工艺5、顶面石材干挂施工工艺6、吊顶玻璃/镜子安装施工工艺7、墙面瓷砖铺贴施工工艺01、轻钢龙骨石膏板隔墙施工工艺1、节点大样:2、施工工序:隔墙放线定位→安装天地龙骨→安装竖向龙骨→安装横向龙骨→龙骨内敷设隐藏管线→门洞口、窗台口加固→封一面石膏板→填充隔音棉→进行隐蔽验收→再封加一面石膏板3、重点说明:(1)常规竖龙骨为 3000mm,如超过 3000mm 或小于 3000mm 建议采用定制型竖龙骨。(2)门洞口、窗口内侧须预埋基层板材加固,并做好防腐、防霉、防火处理。(3)天地龙骨安装前先把橡胶垫安装在天地面线位上,再将天地龙骨放在橡胶垫上安装。(4)未找平的地面封石膏板时下口 150mm 处应先安装水泥纤维压力板(防潮、防水),而后再封石膏板,封第二层石膏板时下口不应直接落地,应平地脚线上口高度安装。(5)自攻螺丝应陷入板材表面 0.5mm-1.0mm 深度为宜,且面纸不应破裂暴露石膏。(6)石膏板与石膏板接口预留 3-5mm 缝隙为宜。(7)封纸面石膏板打螺丝前须进行弹线。(8)高度超过 4m 隔墙,应用 100 系列隔墙龙骨,或者按设计要求增加钢架。4、施工图片:02、卫生间镀锌方通隔墙施工工艺1、节点大样:2、施工工序:隔墙放线定位→焊接钢架→焊口防锈处理→捣制混凝土地梁→封硅酸钙板→挂网→水泥砂浆批荡→涂刷防水涂料→铺贴石材3、重点说明:(1)方钢骨架采用镀锌成品,焊接点涂刷防锈漆。(2)镀锌方通两侧每隔 600mm 钻透气孔。(避免电焊时高温没透气孔造成镀锌方通变型)(3)钢架焊接完成后在底部浇筑 300mm 高混凝土地梁,宽度根据设计要求。(4)内层封硅酸钙板采用自钻螺丝固定 ,然后进行挂网,挂网采用自然平整安装法(即不要太平整,要有一定的起拱度)。(5)水泥砂浆批荡,先在硅酸钙板上刷一层加胶状的素浆,然后再进行水泥砂浆批荡,水泥砂浆批荡层控制在距石材背面 7-10mm。(6)水泥砂浆批荡层干透后进行防水施工。4、施工图片:03、石材灌浆施工工艺1、节点大样:2、施工工序:石材排板放线→预排石材→板材固定→灌桨→嵌缝3、重点说明:(1)石材采用湿挂灌浆施工时,固定石材的钢筋网应与预埋件连接牢固;每块石材与...

1、当您付费下载文档后,您只拥有了使用权限,并不意味着购买了版权,文档只能用于自身使用,不得用于其他商业用途(如 [转卖]进行直接盈利或[编辑后售卖]进行间接盈利)。
2、本站所有内容均由合作方或网友上传,本站不对文档的完整性、权威性及其观点立场正确性做任何保证或承诺!文档内容仅供研究参考,付费前请自行鉴别。
3、如文档内容存在违规,或者侵犯商业秘密、侵犯著作权等,请点击“违规举报”。

碎片内容

墙柱面装饰工程施工工艺手法

确认删除?
VIP
微信客服
  • 扫码咨询
会员Q群
  • 会员专属群点击这里加入QQ群
客服邮箱
回到顶部