电脑桌面
添加小米粒文库到电脑桌面
安装后可以在桌面快捷访问

DANFOSS插装阀技术文献Section20_Cavities

DANFOSS插装阀技术文献Section20_Cavities_第1页
1/44
DANFOSS插装阀技术文献Section20_Cavities_第2页
2/44
DANFOSS插装阀技术文献Section20_Cavities_第3页
3/44
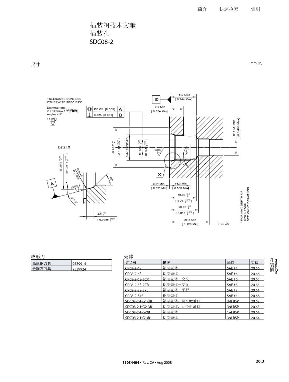
插装孔2 0 .1插装阀技术文献插装孔1 1 0 3 4 4 0 4 • Rev. CA • Aug 2008简介快速检索索引 快速检索快速检索可用插装孔插装孔页码SDC08-220.3SDC08-320.4SDC08-420.5SDC10-220.6SDC10-320.7SDC10-3S20.8SDC10-420.9SDC12-220.10SDC12-320.11SDC16-220.12SDC16-320.13SDC16-3S20.14SDC20-220.15SDC20-320.16SDC20-420.17CP04-220.18CP04-320.19CP07-320.20CP08-3L20.21CP12-220.22CP12-320.23CP12-3M20.24CP12-3S20.25CP12-420.26CP16-420.27CP20-3S20.28NCS04/220.29NCS04/320.30NCS06/220.31NCS06/320.32NCS06/420.33NCS12/220.34NCS12/320.35NCS12/420.36VME0620.37VME0720.38VME0820.39FC-14420.40FC-30420.41FC-33620.42ISO D0320.43ISO D0520.4420.2插装阀技术文献插装孔11034404 • Rev. CA • Aug 2008应用简介快速检索索引 以下几页内容是萨澳-丹佛斯标准阀插装孔。这些插装孔根据SAE标准O型圈螺纹安装油口设计。在许多情况下,这些插装孔与其他厂商生产的插装孔可以互换。下面的表格作为插装阀替换的参考。插装孔替换表萨澳-丹佛斯螺纹Delta PowerEaton-VickersHydraForceParkerSterlingCP04-27/16-20否否CP04-3否否CP07-35/8-18是是是SDC08-23/4-16是是是是是CP08-3是是是是是CP08-3LSDC08-4是是是是是SDC10-27/8-14是是是是是SDC10-3是是是是是SDC10-3S是是是是SDC10-4是是是是是CP12-2否否是否SDC12-21 1/16-12否否否否CP12-3S否否否否CP12-3否否是否CP12-4否否否否SDC16-21 5/16-12是是是是SDC16-3S是是是是SDC16-3是是是是SDC16-4是是是是SDC20-21 5/8-12是是CP20-3S否SDC20-3是SDC20-4是请注意大多厂商有许多非标准的插装孔,细节参数会发生变化。在替换阀芯时需要比较插装孔的细节参数。The National Fluid Power Association (NFPA)和International Standards Organization(ISO) 正在制定一项标准- NFPA T3.5.31M-19XX。它将定义一个全工业范围适用的标准插装孔。萨澳-丹佛斯将正式通过该标准,制造适用于 NFPA插装孔的插装式阀。综述插装孔20.3插装阀技术文献插装孔11034404 • Rev. CA • Aug 2008mm [in]简介快速检索索引 尺寸SDC08-2SDC08-2P103 926Detail XLengths:成形刀高速钢刀具9539914金刚石刀具9539924壳体订货号描述油口页码CP08-2-4S铝制壳体SAE #420.66CP08-2-6S铝制壳体SAE #620.66CP08-2-6S-2CR铝制壳体-交叉SAE #620.65CP08-2-8S-2CR铝制壳体-交叉SA...

1、当您付费下载文档后,您只拥有了使用权限,并不意味着购买了版权,文档只能用于自身使用,不得用于其他商业用途(如 [转卖]进行直接盈利或[编辑后售卖]进行间接盈利)。
2、本站所有内容均由合作方或网友上传,本站不对文档的完整性、权威性及其观点立场正确性做任何保证或承诺!文档内容仅供研究参考,付费前请自行鉴别。
3、如文档内容存在违规,或者侵犯商业秘密、侵犯著作权等,请点击“违规举报”。

碎片内容

DANFOSS插装阀技术文献Section20_Cavities

小辰+ 关注
实名认证
内容提供者

出售各种文档和资料

确认删除?
VIP
微信客服
  • 扫码咨询
会员Q群
  • 会员专属群点击这里加入QQ群
客服邮箱
回到顶部