电脑桌面
添加小米粒文库到电脑桌面
安装后可以在桌面快捷访问

《混凝土结构设计》试题VIP专享

《混凝土结构设计》试题_第1页
1/10
《混凝土结构设计》试题_第2页
2/10
《混凝土结构设计》试题_第3页
3/10
《混凝土结构设计》 1. ( 2009.1 选择)关于结构的功能要求,下列说法中错误.. 的是(C) A.能承受可能出现的各种作用 B.具有良好的工作性能 C.具有卓越的节能、环保性能 D.具有足够的耐久性能 2. ( 2009.1 填空)结构在规定的时间内,在规定的条件下,完成预定功能的能力,称为结构的 可靠性 。 3. ( 2010.1 填空)结构丧失稳定属于超过 承载能力极限状态。 4. 2008.10 在判断结构是否达到正常使用极限状态时,不需要...考虑的因素是( C ) A. 混凝土开裂情况 B.钢筋锈蚀情况 C.结构的抗滑移能力 D.构件的挠度 5. ( 2010.1 填空)荷载作用下结构或构件产生的内力和变形称为 荷载效应 。 6. ( 2007.1 填空)结构或构件承受荷载效应的能力,称为 结构抗力 。 7. R-S<0 的概率,称为结构的 失效 概率。 8. ( 2008.1 填空)结构在规定的时间内,规定的条件下,完成预定功能的概率,称为结构的 可靠度 9. ( 2010.1 选择)结构的可靠指标( B ) A.随结构失效概率的增大而增大 B.随结构失效概率的增大而减小 C.与结构失效概率无关 D.与结构失效概率呈正态分布关系 10.( 2006.1 填空)目标可靠指标[β ]值是通过三个分项系数来表达的,它们分别是材料分项系数、荷载分项系数及 结构重要性 系数。 11.在计算结构构件承载力时引入的与建筑物安全等级有关的分项系数称为结构重要性系数。对于安全等级是二级的结构构件,该结构重要性系数是( B )。 A.1.1 B.1.0 C.0.9 D.0.8 12.( 2008.10)下列说法中正确的是(D ) A.混凝土强度的标准值小于其设计值 B.材料强度的设计值等于其标准值与材料分项系数的乘积 C.荷载组合值大于荷载标准值 D.荷载设计值等于其标准值与荷载分项系数的乘积 13.( 2004.10)我国规范规定结构物的设计基准期为( ) A. 30 年 B. 50 年 C. 80 年 D. 100 年 14.取荷载分项系数≤1 的条件是( D ) P19 A.考虑多个可变荷载同时作用时 B.考虑可变荷载最不利布置时 C.当永久荷载效应对结构不利时 D.当永久荷载效应对结构有利时 15.对结构承载能力极限状态进行验算时,采用( A ) P20. A.荷载设计值及材料强度设计值 B.荷载设计值及材料强度标准值 C.荷载标准值及材料强度设计值 D.荷载标准值及材料强度标准值 16.( 2007.1)单层厂房排架结构由屋架(或屋面梁)、柱和基础组成(D ...

1、当您付费下载文档后,您只拥有了使用权限,并不意味着购买了版权,文档只能用于自身使用,不得用于其他商业用途(如 [转卖]进行直接盈利或[编辑后售卖]进行间接盈利)。
2、本站所有内容均由合作方或网友上传,本站不对文档的完整性、权威性及其观点立场正确性做任何保证或承诺!文档内容仅供研究参考,付费前请自行鉴别。
3、如文档内容存在违规,或者侵犯商业秘密、侵犯著作权等,请点击“违规举报”。

碎片内容

《混凝土结构设计》试题

确认删除?
VIP
微信客服
  • 扫码咨询
会员Q群
  • 会员专属群点击这里加入QQ群
客服邮箱
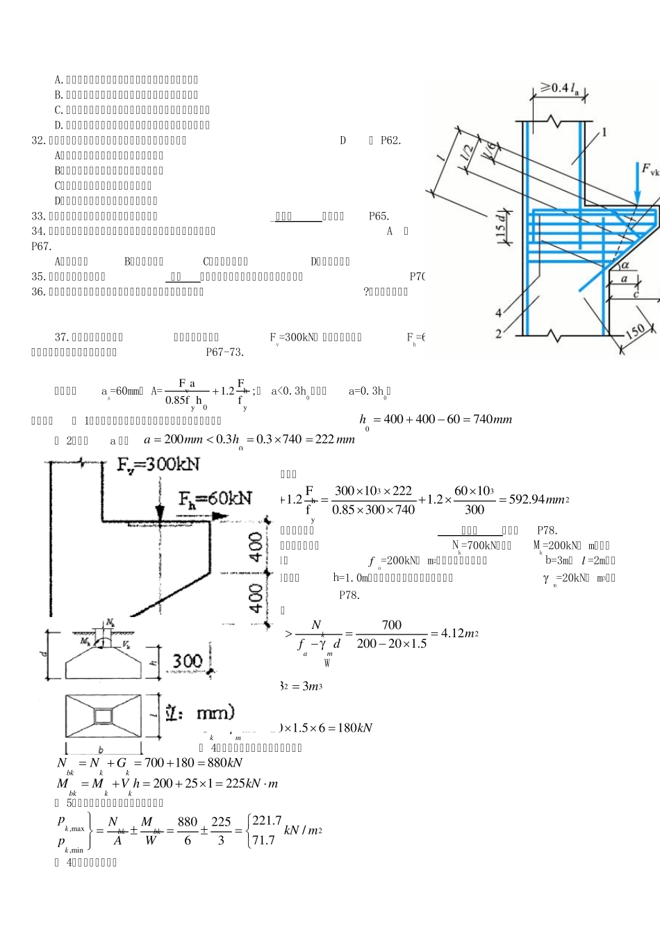
回到顶部