电脑桌面
添加小米粒文库到电脑桌面
安装后可以在桌面快捷访问

2025年江苏造价员资格考试土建造价案例试卷及答案VIP专享

2025年江苏造价员资格考试土建造价案例试卷及答案_第1页
1/25
2025年江苏造价员资格考试土建造价案例试卷及答案_第2页
2/25
2025年江苏造价员资格考试土建造价案例试卷及答案_第3页
3/25
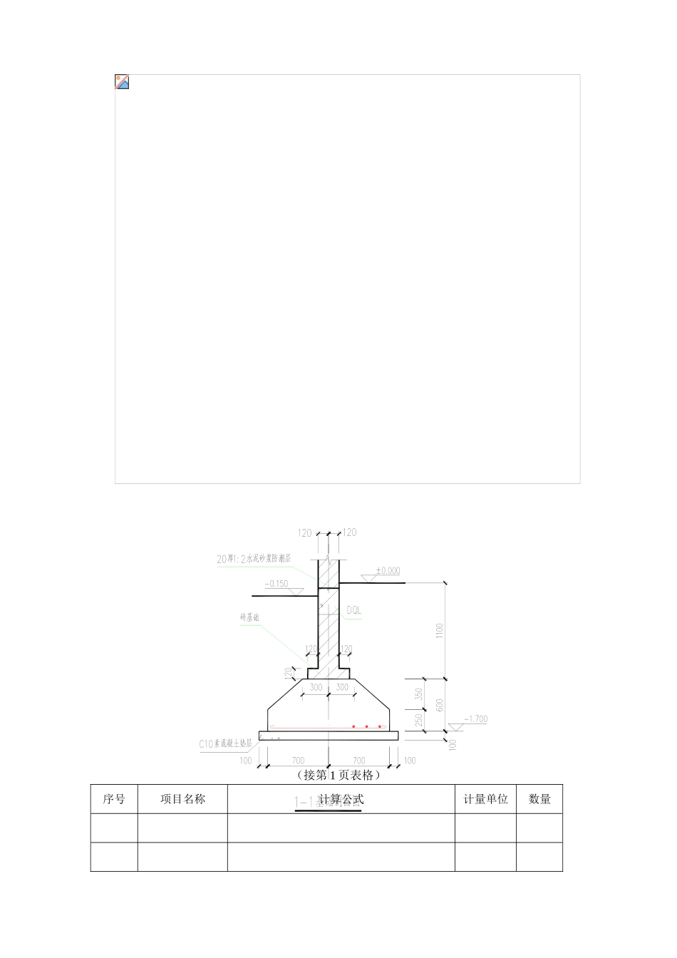
江苏造价员资格考试土建造价案例试卷及答案题号一二三四五六七总分计分人核分人得分本卷为案例分析题,初级做一~四题,共四题,总分 100 分;中级做三~六题,共四题,总分 120 分;高级做四~七题,共四题,总分 120 分;多做和漏做的题均不得分。除注明外,人工工资单价、材料单价和施工机械台班单价所有以计价表中价格为准;文字与图形不一样步,以文字阐明为准;规定分析合理,结论对的,并简要写出计算过程。一、(本题 25 分,初级做)某接待室,为三类工程,其基础平面图、剖面图如图所示。基础为 C20 钢筋砼条形基础,C10 素砼垫层,±0.00m 如下墙身采用砼原则砖砌筑,设计室外地坪为-0.150m。根据地质勘探汇报,土壤类别为三类土,无地下水。该工程采用人工挖土,从垫层下表面起放坡,放坡系数为 1:0.33,工作面从垫层边到地槽边为 200mm,砼采用泵送商品砼。请按以上施工方案以及江苏省 04 计价表计算土方开挖、砼垫层以及砼基础的计价表工程量和综合单价。(一)计价表工程量计算表序号项目名称计算公式计量单位数量(接第 1 页表格)序号项目名称计算公式计量单位数量(二)套用计价表子目综合单价计算表定额号子目名称单位数量单价合价二、(本题 25 分,初级做)根据下表提供的子目名称及做法,请按江苏省计价表填写计价表编号、单位和综合单价,综合单价有换算的列简要换算过程。其他未阐明的,按计价表执行。(管理费、利润费率原则按计价表子目不做调整,材料、机械需换算单价的按照计价表附录单价或给定条件换算。) 计价表编号子目名称及做法单位综合单价有换算的列简要换算过程综合单价(元)正铲挖掘机挖湿土(装车,斗 容 量 1m3 , 湿 土 含 水 率30%)震动沉管灌注砼桩(单打,现浇自拌 C30 砼,碎石最大粒径 40mm,水泥 42.5 级,桩长 16m,充盈系数 1.3)M5 混 合 砂 浆 砌 KP1 砖 墙(240mm 厚,弧形墙)肋梁砼(现浇 C35 泵送商品砼)预制砼吊车梁安装(安装点高度 25 m)屋面板制作(20mm 厚,一面刨光,平口) 外墙贴釉面砖(勾缝,缝宽 10mm,面砖规格 200×50 mm,单价 1 元/块)现浇 110 mm 厚有梁板复合木 模 板 ( 框 架 构 造 , 层 高4.5m)三、(本题 15 分,初、中级做)某打桩工程,设计桩型为 T-PHC-AB700-650(110)-13、13a,管桩数量 250 根,断面及示意如图所示,桩外径 700mm,壁厚 110mm,自然地面标高-0.3m,桩顶标高-3....

1、当您付费下载文档后,您只拥有了使用权限,并不意味着购买了版权,文档只能用于自身使用,不得用于其他商业用途(如 [转卖]进行直接盈利或[编辑后售卖]进行间接盈利)。
2、本站所有内容均由合作方或网友上传,本站不对文档的完整性、权威性及其观点立场正确性做任何保证或承诺!文档内容仅供研究参考,付费前请自行鉴别。
3、如文档内容存在违规,或者侵犯商业秘密、侵犯著作权等,请点击“违规举报”。

碎片内容

2025年江苏造价员资格考试土建造价案例试卷及答案

您可能关注的文档

翰墨流离+ 关注
实名认证
内容提供者

该用户很懒,什么也没介绍

确认删除?
VIP
微信客服
  • 扫码咨询
会员Q群
  • 会员专属群点击这里加入QQ群
客服邮箱
回到顶部