电脑桌面
添加小米粒文库到电脑桌面
安装后可以在桌面快捷访问

桥博横向分布系数计算工具总结

桥博横向分布系数计算工具总结_第1页
1/36
桥博横向分布系数计算工具总结_第2页
2/36
桥博横向分布系数计算工具总结_第3页
3/36
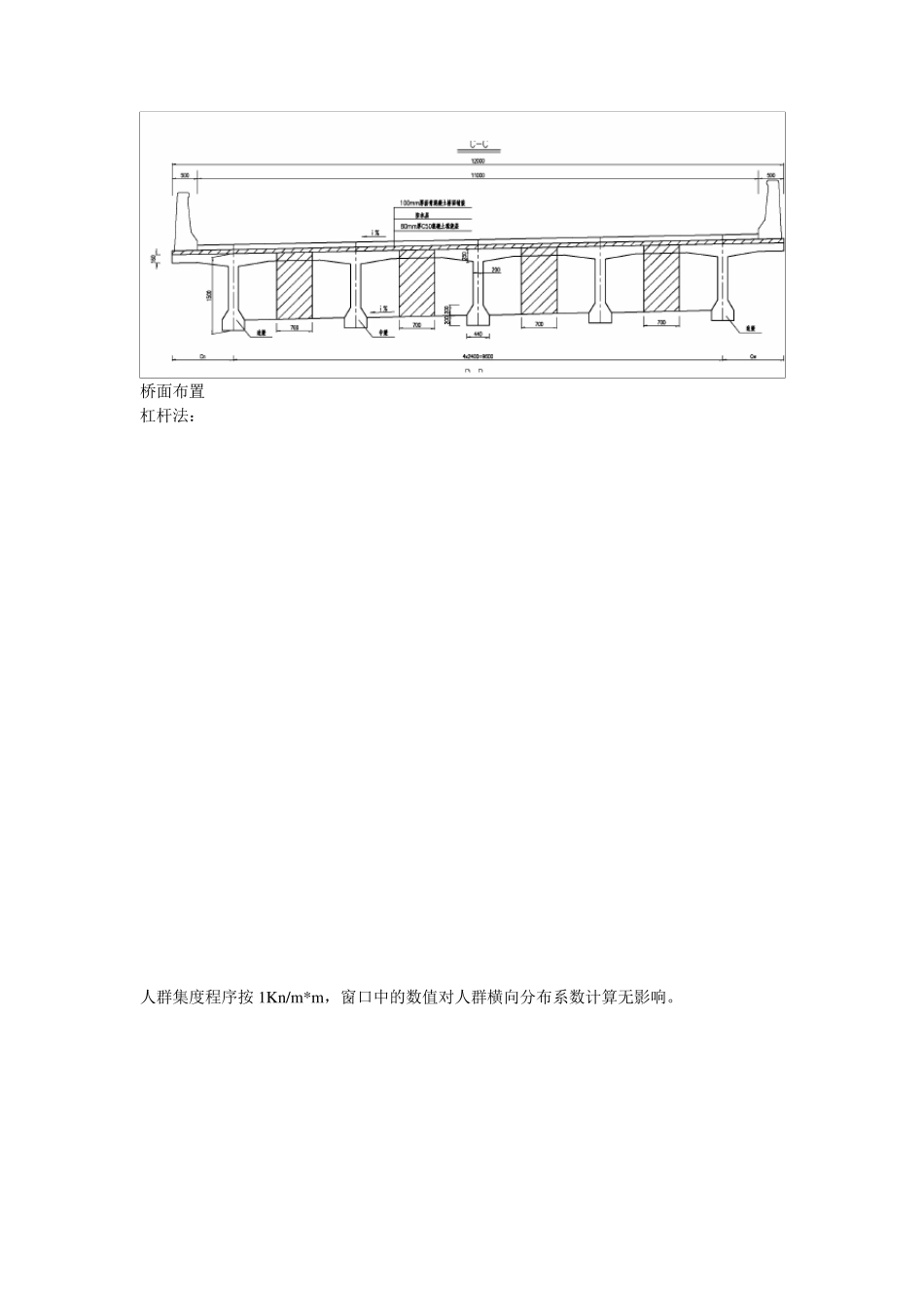
桥面布置 杠杆法: 人群集度程序按1Kn/m*m,窗口中的数值对人群横向分布系数计算无影响。 汽车荷载均按1/2P,横向轮间距1.8m 布置,汽-10 级,汽-15 级,汽-20 级,汽超-20 级计算结果均相等。 挂车荷载按1/4P,横向轮间距0.9m 布置, 挂-80 级,挂-100 级,挂-120 级,计算结果均相等。 桥面布置信息填写中,桥面中心线为参考,以桥面中线距首梁距离确定桥面布置的定位(刚接板梁法为首梁边缘)。以上两种填写方式结果均相同。 特殊荷载描述为车量荷载,轴距为车轮横向间距,按1/4P 描述,结果与挂车荷载计算结果相同。 在横向分布系数计算中,轴距为横向车轮的轮距,按1.3m 间距填则与汽-10 级,汽-20 级,汽超-20 级相同。 重车按1/2P,横向轮距1.8m 重车按1/2P,横向轮距1.8m 则特殊车列横向分布系数与汽车相同。 横向分布系数计算结果: 梁号 汽车 挂车 人群 满人 特载 车列 1 0.706 0.370 0.697 2.699 0.370 0.706 2 0.856 0.625 0.000 2.400 0.625 0.625 3 0.856 0.625 0.000 2.400 0.625 0.625 4 0.851 0.625 0.000 2.400 0.625 0.625 5 0.705 0.373 0.670 2.686 0.373 0.705 ------------------------------------------------------------ 计算成功完成 刚接(铰接)板梁法 理论部分: 刚接板梁法T 梁例子: 对于带有翼板、挑板的梁桥,在采用刚接板梁法和铰接板梁法进行横向分布系数计算时,需要考虑每一片梁的单位力偏载于翼板端部时,引起三部分位移:刚性竖向位移w、梁体的转角位移φ、翼板端部的自身挠曲位移f。其中,第三项位移f 时,主要是沿跨径方向的板的弯曲挠度。 对于问题中的左右悬臂板(翼板)的惯性矩,就是用来计算第三个位移f 的,具体计算公式为: d1 为翼板的悬出长度;h1 为翼板的计算厚度,对于变厚度的翼板,可近似的取距离梁肋 d1/3处的板厚度来计算;跨长方向单位长度 b=1m。则有:单位宽度的翼板的抗弯惯矩(为参照自身的水平惯性轴)为:I=(b*h1^3)/12. 此时左、右板惯性矩为:I=(1*(0.25*2/3)^3)/12=0.00386m4 T 梁抗弯惯性矩及抗妞惯性矩可通过 midas截面特性计算器进行计算。 桥面布置 注意刚接板梁法桥面中心到首梁距离为桥面中心线到首梁外边缘距离。 活载信息与铰接板法相同,计算结果如下: 横向分布系数计算结果: 梁号 汽车 挂车 人群 满人 特载 车列 1 0.759 0.435 0.367 2.694 0.435 0.5...

1、当您付费下载文档后,您只拥有了使用权限,并不意味着购买了版权,文档只能用于自身使用,不得用于其他商业用途(如 [转卖]进行直接盈利或[编辑后售卖]进行间接盈利)。
2、本站所有内容均由合作方或网友上传,本站不对文档的完整性、权威性及其观点立场正确性做任何保证或承诺!文档内容仅供研究参考,付费前请自行鉴别。
3、如文档内容存在违规,或者侵犯商业秘密、侵犯著作权等,请点击“违规举报”。

碎片内容

桥博横向分布系数计算工具总结

小辰5+ 关注
实名认证
内容提供者

出售各种资料和文档

确认删除?
VIP
微信客服
  • 扫码咨询
会员Q群
  • 会员专属群点击这里加入QQ群
客服邮箱
回到顶部