电脑桌面
添加小米粒文库到电脑桌面
安装后可以在桌面快捷访问

砌体结构课程设计

砌体结构课程设计_第1页
1/27
砌体结构课程设计_第2页
2/27
砌体结构课程设计_第3页
3/27
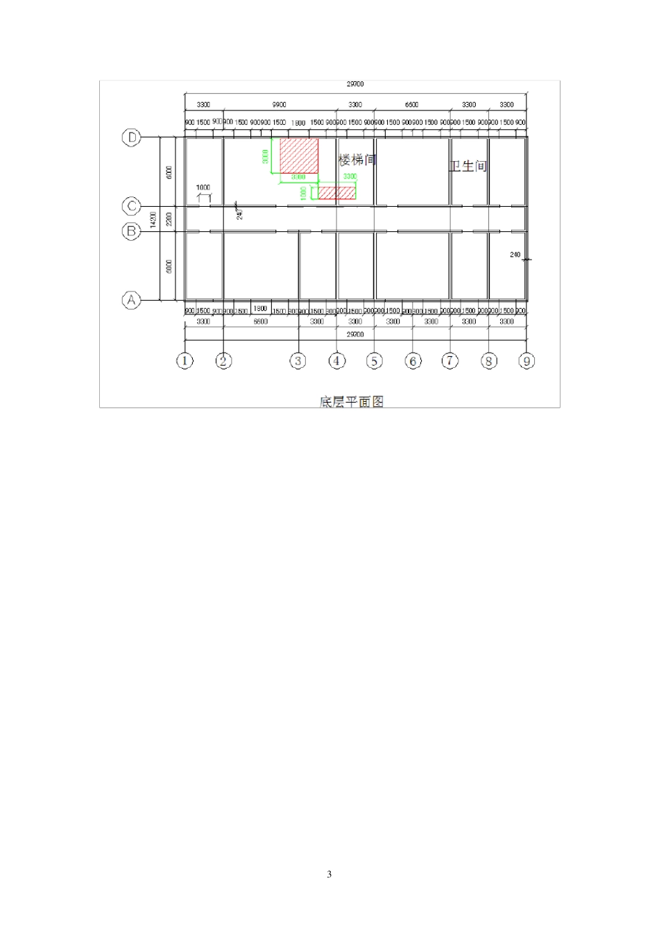
2 一、设计资料 某三层教学楼(无地下室)平面剖面如图,才用1 类楼盖体系,大梁尺寸250m m ×500m m 。墙体用MU10 砖,M5 砂浆砌筑,墙厚均为 240m m 。屋面和楼面构造做法及相应荷载可由标准图集 98ZJ001 查取(自定),空心板自置按 2.5 kN /㎡,190mm 厚双面粉刷,墙自重 2.08 kN /㎡,240mm 厚双面粉刷墙自重 5.24 kN /㎡,铝合金窗按 025 kN /㎡计算。屋面、楼面活荷载查《建筑结构荷载规范》。 工程地质资料:自然地表下0.5m 内为填土,填土下0.8 秒内为粉质粘土(af =130 MPa ),其下为 1.2m 厚粘土(af =220 MPa ),再下面是砾石层(af =355 MPa )。该地区的基本风压值为 0.55 kN /㎡。抗震设防烈度为 7 度,设计地震分组为第一组,II 类场地。 二、设计要求 1、确定房屋的结构承重方案; 2、确定房屋的静力计算方案; 3、熟练掌握各种方案多层房屋墙体设计及墙、柱高厚比验算方法; 4、熟悉梁端下砌体的局部受压承载力验算; 5、熟悉过梁、挑梁的设计计算; 6、掌握墙体设计中的构造要求,确定构造柱和圈梁的布置; 7、熟悉基础结构设计; 8、掌握绘制结构施工图。 3 4 设计计算书 1 .房屋的静力计算方案和承重体系 因为本教案楼的楼盖采用1 类楼盖体系,横墙的最大间距S=3.3×3=9.9m<32m,因此本房屋属刚性方案。采用纵横墙承重体系。 2.墙体的高厚比验算 <1>外纵墙高厚比验算: 取轴线 D 上横墙间距最大的一段外纵墙进行高厚比验算。因为此教学楼采用M5砂浆砌筑,所以  =24 对于第一层:H=3.75m S=3.3×3=9.9m>2H=7.5m ∴0H =1.0H=3.75m 对于第二、三层:H=3.3m S=3.3×3=9.9m>2H=6.6m ∴0H =1.0H=3.3m 考虑窗洞的影响:2 =1-0.4 bss =1-0.4×1.5 39.9=0.82>07 因为墙厚均为240m m ,所以第一层0HH = 3.750.24 =15.625 而2   =0.82×24=19.68 所以  <2   满足要求 第二、三层 0Hh =3.3/0.24=13.75<2   =19.68 <2>内纵墙高厚比验算 考虑门洞口的影响,选取①-②定位轴线之间的内纵墙进行验算[B]=24,2 =1-0.4 bss =1-0.4× 13.3 =0.88>0.82 故不必验算可知内纵墙高厚比符合要求。 <3>横墙高厚比验算 横墙厚 度 为240mm, 墙长s=6m, 对 于 第 一 层2H>S>H=3.75, 所 以0H =0.4s+0.2H=0.4×6+0.2×3.75=3.15m 所以0HH = 3.150.24 =13.13< ...

1、当您付费下载文档后,您只拥有了使用权限,并不意味着购买了版权,文档只能用于自身使用,不得用于其他商业用途(如 [转卖]进行直接盈利或[编辑后售卖]进行间接盈利)。
2、本站所有内容均由合作方或网友上传,本站不对文档的完整性、权威性及其观点立场正确性做任何保证或承诺!文档内容仅供研究参考,付费前请自行鉴别。
3、如文档内容存在违规,或者侵犯商业秘密、侵犯著作权等,请点击“违规举报”。

碎片内容

砌体结构课程设计

您可能关注的文档

确认删除?
VIP
微信客服
  • 扫码咨询
会员Q群
  • 会员专属群点击这里加入QQ群
客服邮箱
回到顶部