电脑桌面
添加小米粒文库到电脑桌面
安装后可以在桌面快捷访问

3种石膏旋流器图纸

3种石膏旋流器图纸_第1页
1/10
3种石膏旋流器图纸_第2页
2/10
3种石膏旋流器图纸_第3页
3/10
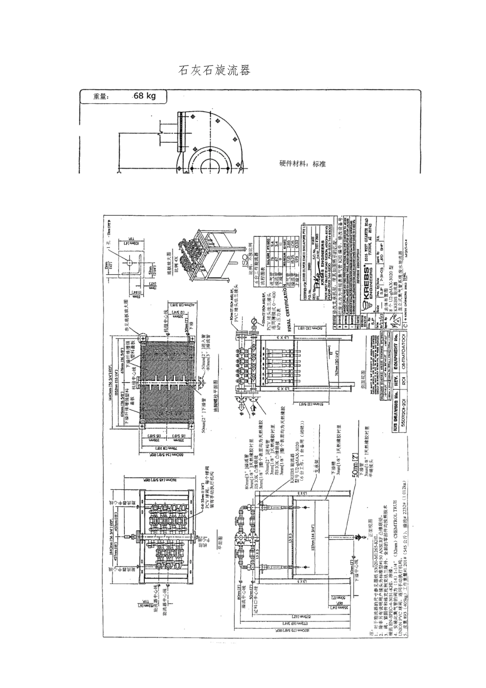
石灰石旋流器废水旋流器图纸和零件单PL 5020-M1265-KHI修改 KREBS 旋风器零件单装有 G85L-45-RU 顶尖组件的 U2-g079115U(U2-gMAX-3020)型DORR OLIVER EIMCO 新加坡/KHI 中国定洲烟气脱硫项目用户邮政编号:30059/系列号:g079115U-g079121U对日期进行过修改:2003 年 8 月 15 日零件号说明1.C1341-RU-.375 涡轮定位器/溢流插入件,包括 1.25″维克托 利克接头,尺寸 0.375″,氨基甲酸乙酯,备 有尺寸:0.25″,0.375″,0.5″,0.625″或.800″LD2.VIC-750-2X1.5 维克托利克型 750 缩径联轴节,尺寸 2″×1.5″,钢3.C1339-RU-25 进口压头,包括 1.25″维克托利克进口接头, 尺寸为 0.25 平方英寸的进口孔板,氨基甲酸乙酯。4.C7707-SS 装有手轮的夹具,不锈钢5.C1389-SS 定心环,不锈钢6.C8034G-RN 密封垫,氨基甲酸乙酯7.G65-092024-RU 锥体/主体,氨基酸乙酯8.C1528-RC 顶尖套环,Rayal 铸铁9.G85L-45-RU-.256 顶尖,氨基甲酸乙酯,尺寸 0.256″,备有尺寸 0.156″,0.189″,0.256″,0.312″,0.394″和 0.448---------------------------------------------------------------------------------结构的标准材料氨基甲酸乙酯和 Royal 铸铁根据请求提供的其他材料石膏旋流器15PL 5060-M772-KHI修改 KREBS 旋流器零件单型号 D4-g079122U(D4-gMAX-3052)带 No. G81-20A 分流器组件DORR OLIVER EIMCO 新加坡/KHI-定洲 FGD中国项目客户 P.O.NO:30059/序号:g079122U-g079131U修订日期:2003 年 8 月 21 日零件号说明1. 42F-RG-2FG1. PF-PLUG-.25-GA2. 45F-RG-2F3. 45G-RN4. 43-ST5. 43R-BPC6. 42-CS7. 42R-BPC-1.28. 45-NH-19.G61-044130B-ST10.G62-044130-BPC11.G4-43A-M772-KHI12. G61-043120A-ST13. G62-043120-BPC14. G81-20A-ST15. G82-20-BPC-.7516. G83-20A-ST进口法兰过渡接头园柱形零件, 2 英寸大小,纯胶胶料衬里钢。管塞,.25 英寸大小,镀锌钢。溢流法兰过渡接头园柱形零件, 2 英寸大小,纯胶胶料衬里钢。衬垫,氯丁橡胶。顶盖板,钢。顶盖板衬里,BPC。进口泵头部件,铸钢。进 口 泵 头 衬 里 , 1.2 英 寸 2 进 口 孔 板 大小,BPC 橡胶。涡流定向器,1 英寸大小,镍铬冷硬铸铁,可提供大小:.75 英寸,1 英寸与 1..25 英寸。锥体外壳,钢。锥体衬里,BPC 橡胶。安装板,钢,2 套。锥体外壳,钢。锥体衬里,B...

1、当您付费下载文档后,您只拥有了使用权限,并不意味着购买了版权,文档只能用于自身使用,不得用于其他商业用途(如 [转卖]进行直接盈利或[编辑后售卖]进行间接盈利)。
2、本站所有内容均由合作方或网友上传,本站不对文档的完整性、权威性及其观点立场正确性做任何保证或承诺!文档内容仅供研究参考,付费前请自行鉴别。
3、如文档内容存在违规,或者侵犯商业秘密、侵犯著作权等,请点击“违规举报”。

碎片内容

3种石膏旋流器图纸

确认删除?
VIP
微信客服
  • 扫码咨询
会员Q群
  • 会员专属群点击这里加入QQ群
客服邮箱
回到顶部