电脑桌面
添加小米粒文库到电脑桌面
安装后可以在桌面快捷访问

地下室顶板车道加固支撑方案

地下室顶板车道加固支撑方案_第1页
1/8
地下室顶板车道加固支撑方案_第2页
2/8
地下室顶板车道加固支撑方案_第3页
3/8
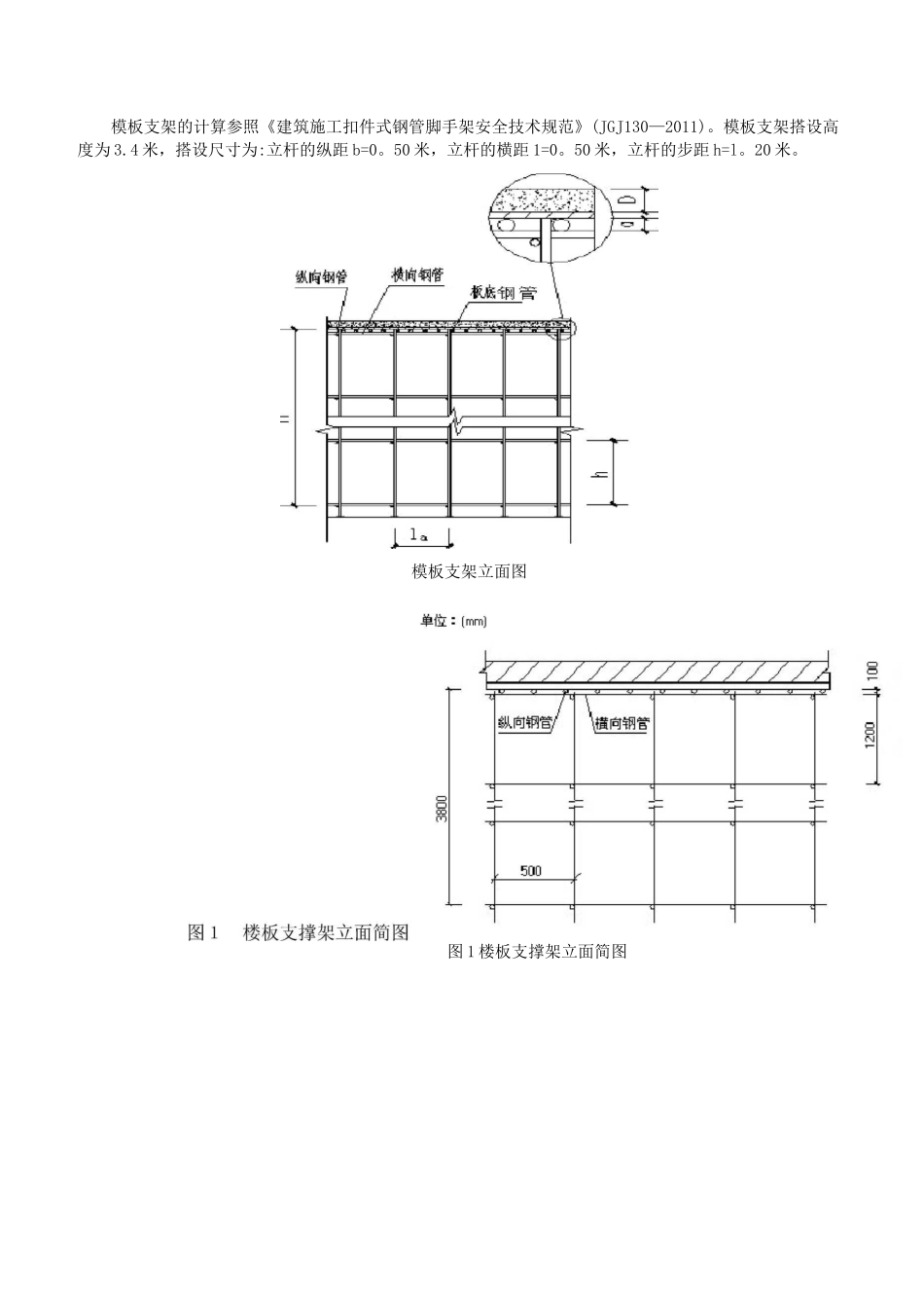
地库顶板行车道支模排架及加固方案一、工程概况xxxxxxxxxxxxxxxxx 工程地下室车库为现浇框架结构,顶板结构的相对标高为一 1.8m.结构层高为:4.Om。预计进入临时施工道路最大荷载车辆,如干粉砂浆运输车为 45 吨,查《建筑结构荷载规范》GB50009—2001 中 4.1。1 条规定,满载 30OKN 的消防车对地库顶板产生的均布活荷载为 20KN/M2,故 30 吨汽车对地库顶板产生的均布活荷载为 30KN/M2。计划对道路区域及水泥、砂浆罐范围内的支模排架加密,立杆纵横向间距 500,步距为 1200mm,加固面积约 1700m2.顶板施工完成后,道路使用期间该区域模板支撑不拆除,已拆除的部位重新搭设支撑排架加固。临时道路局部区域有后浇带贯穿部分,在道路使用前按设计要求用 C40 微膨胀砼封闭。地库顶板混凝土完成后,按设计要求做好地库防水层及钢砼保护层,待砼达到设计强度后方可使用。平面布置见附图.二、支模排架搭设方法2. 1 排架支撑形式(1)采用① 48X2。7 脚手钢管满堂搭设,由立杆、水平杆、纵横向剪刀撑等杆件组成受力体系,节点连接采用铸铁扣件.(2)排架立杆横向间距为 500mm,纵向间距为 500mm,排架步距为 1200mm,纵或横水平杆与立杆采用双扣件连接。(3)排架的四个外立面均连续设置剪刀撑。每组剪刀撑跨越立杆根数为 5〜7 根(>6m),斜杆与地面夹角在 45°〜60°之间。(4)在立杆离地面 200mm 处,设置纵向与横向的扫地杆,以约束立杆水平位移。(5)为了保证排架的整体刚度与稳定,排架内每隔 2~3 步设一道水平剪刀撑,每隔 3 跨设一道纵向剪刀撑。三、地库顶板钢管支模排架计算书地库顶板钢管支模排架计算书(一)、参数信息:1。模板支架参数横向间距或排距(m):0.50;纵距(m):0.50;步距(m):1.20;立杆上端伸出至模板支撑点长度(m):0.10;模板支架搭设高度(m):3.80;采用的钢管(mm):①48X2.7;扣件连接方式:双扣件,取扣件抗滑承载力系数:0.80;板底支撑连接方式:钢管支撑;板底钢管的间隔距离(mm):200.00;2。荷载参数模板与木板自重(kN/m2):0.350;混凝土与钢筋自重(kN/m3):25.000X0.2(考虑待地库顶板砼强度达 100% 后 进 行 行 车 故 乘 0 。 2 折 减 系 数 ) ; 施 工 均 布 荷 载 标 准 值 : 2.000kN/m2 ; 地 库 顶 板 行 车 荷 载 按30KN/m2X1O5=45KN/M2O3. 楼板参数钢筋级别:三级钢 HRB400;楼板混凝土强度等级:C35;楼板的计算宽度(m...

1、当您付费下载文档后,您只拥有了使用权限,并不意味着购买了版权,文档只能用于自身使用,不得用于其他商业用途(如 [转卖]进行直接盈利或[编辑后售卖]进行间接盈利)。
2、本站所有内容均由合作方或网友上传,本站不对文档的完整性、权威性及其观点立场正确性做任何保证或承诺!文档内容仅供研究参考,付费前请自行鉴别。
3、如文档内容存在违规,或者侵犯商业秘密、侵犯著作权等,请点击“违规举报”。

碎片内容

地下室顶板车道加固支撑方案

您可能关注的文档

确认删除?
VIP
微信客服
  • 扫码咨询
会员Q群
  • 会员专属群点击这里加入QQ群
客服邮箱
回到顶部