电脑桌面
添加小米粒文库到电脑桌面
安装后可以在桌面快捷访问

电缆桥架支架安装与图例

电缆桥架支架安装与图例_第1页
1/6
电缆桥架支架安装与图例_第2页
2/6
电缆桥架支架安装与图例_第3页
3/6
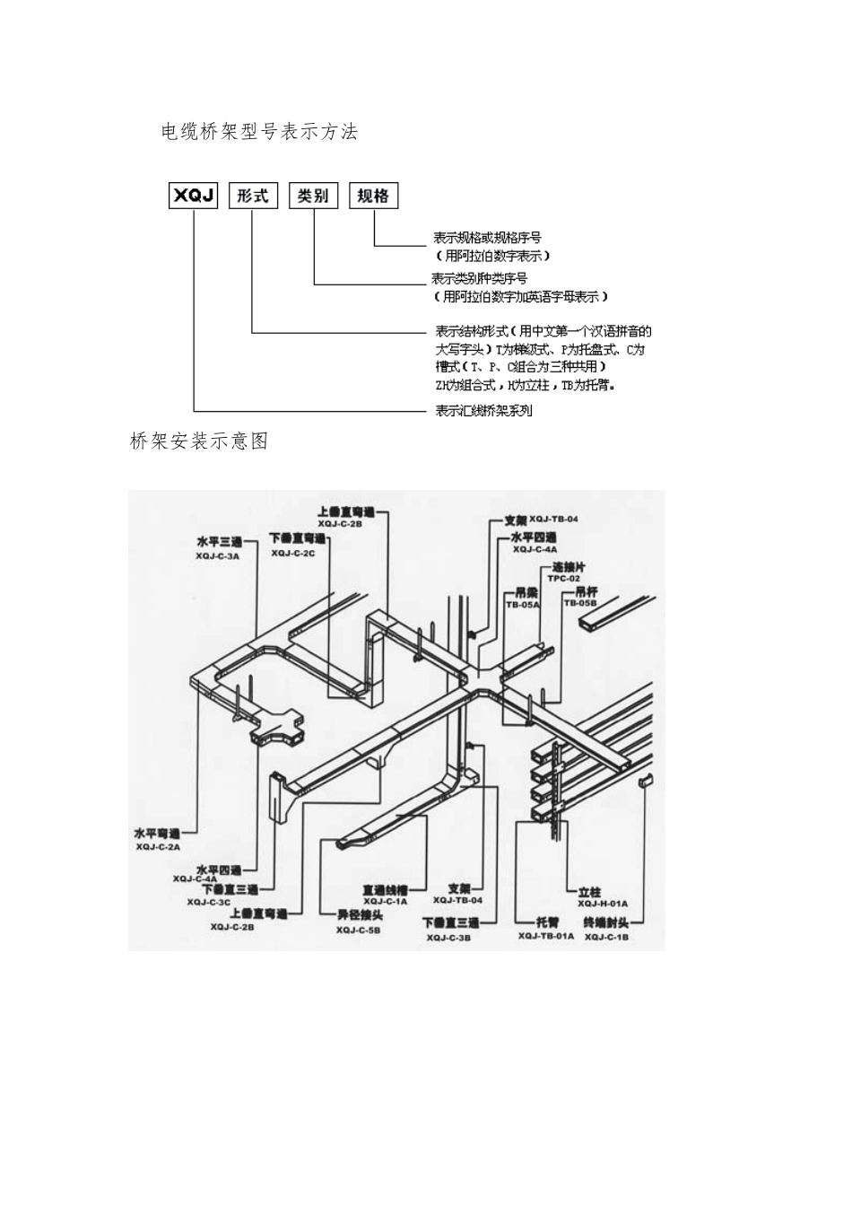
电缆桥架支架安装与图例电缆桥架系指电缆梯架、电缆托盘及金属线槽。电缆桥架主要有钢制、铝合金制及玻璃钢制等。钢制桥架表面处理分为喷漆、喷塑、电镀锌,热镀锌、粉沫静电喷涂等工艺。电缆桥架得安装主要有沿顶板安装。沿墙水平与垂直安装、沿竖井安装、沿地面安装。沿电缆沟及管道支架安装等。安装所用支(吊)架可选用成品或自制。支(吊)架得固定方式主要有预埋铁件上焊接,膨胀螺栓固定等。桥架安装应符合以下规定:1. 直线段钢制电缆桥架长度超过 30m,铝合金或玻钢制桥架长度超过 15m 时,设有伸缩节; 电缆桥架跨越建筑变形缝处设置补偿装置、2.电缆桥架应在下列地方设置吊架或支架:2.1 桥架接头两端 0、5m 处;2、2 每间距 1、5~3m 处;2.3 转弯处;2.4 垂直桥架每隔 1、5 米处、3. 吊架与支架安装保持垂直、整齐、牢固、无歪斜现象。4. 桥架连接板螺栓固定紧固无遗漏,螺母位于桥架外侧。5. 缆桥架应敷设在易燃易爆气体管道与热力管道得下方。6.金属桥架及其支架全长应不少于 2 处接地或接零。7.金属桥架间连接片两端不少于 2 个有防松螺帽或防松垫圈得连接固定螺栓,并且连接片两端跨接不小于 4mm2 得铜芯接地线。8.桥架安装应符合下列要求:8.1桥架左右偏差不大于 50mm;8.2桥架水平度每米偏差不应大于 2mm;8.3桥架垂直度偏差不应大于 3mm建筑电气工程中得电缆桥架均为钢制产品,较少采纳在工业工程中为了防腐蚀而使用得非金属桥架或铝合金桥架。所以其接地或接零至为重要,目得就是不了保证供电干线电路得使用安全,有得施工设计在桥架内底部,全线敷设一支铜或镀锌扁钢制成得保护地线(PE),且与桥架每段有数个电气连通点,则桥得接地或接零保护十分可靠,因而验收时可不做本条 2、3 款得检查9 电缆桥架敷设易燃易爆气体管道与热力管道得下方,当设计无要求时,与管道得最小净距,符合表 12、2、12 得规定;表 12、2、12与管道得最小净距(m)管 道 类 别平 等 净 距交 叉 净 距一般工艺管道0、40、3易燃易爆气体管道0、50、5热力管道有保温层0、50、3无保温层1、00、5电缆桥架型号表示方法桥架安装示意图电缆桥架托臂安装方法1、托臂在工字钢、角钢立柱上安装用 M10*50 螺栓连接固定。2、托臂长度 B 由设计确定。 电缆桥架落地安装方法支架要进行防腐处理 电缆桥架延墙安装方法1、线槽固定点间距,线槽宽 100mm 以下式为 1500mm,线槽宽 150mm 以上时由工程设计确定。2、线槽延楼板或延墙铺设,线槽宽 150mm 以上时,应采纳双螺栓固定。电缆桥架吊装方法

1、当您付费下载文档后,您只拥有了使用权限,并不意味着购买了版权,文档只能用于自身使用,不得用于其他商业用途(如 [转卖]进行直接盈利或[编辑后售卖]进行间接盈利)。
2、本站所有内容均由合作方或网友上传,本站不对文档的完整性、权威性及其观点立场正确性做任何保证或承诺!文档内容仅供研究参考,付费前请自行鉴别。
3、如文档内容存在违规,或者侵犯商业秘密、侵犯著作权等,请点击“违规举报”。

碎片内容

电缆桥架支架安装与图例

确认删除?
VIP
微信客服
  • 扫码咨询
会员Q群
  • 会员专属群点击这里加入QQ群
客服邮箱
回到顶部