电脑桌面
添加小米粒文库到电脑桌面
安装后可以在桌面快捷访问

地产项目钢筋工程标准化施工指引

地产项目钢筋工程标准化施工指引_第1页
1/11
地产项目钢筋工程标准化施工指引_第2页
2/11
地产项目钢筋工程标准化施工指引_第3页
3/11
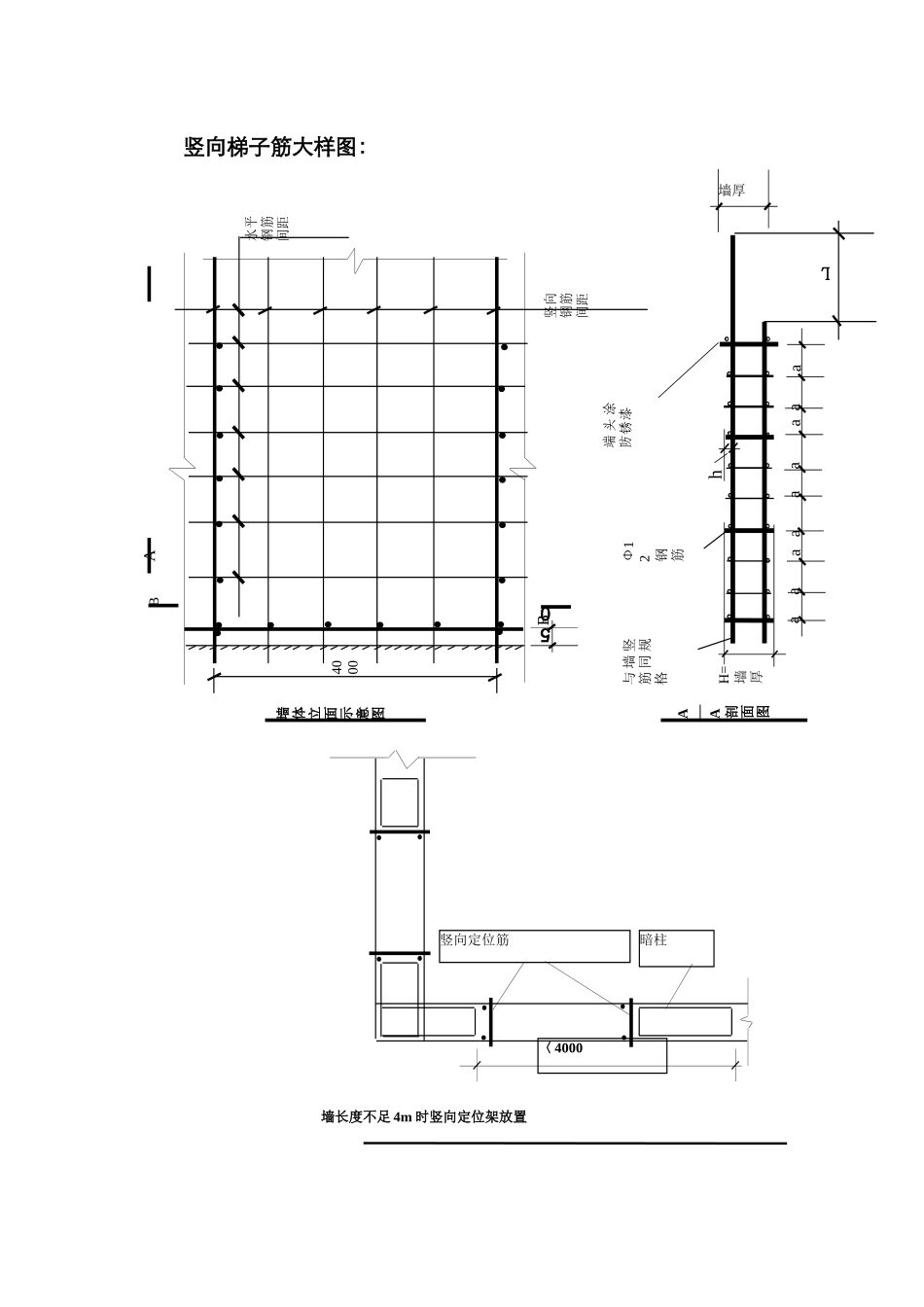
XXXX 钢筋工程标准化施工指引一、定位筋1、墙体水平/竖向梯子筋(1)水平梯子筋制作方法:根据混凝土墙体竖向钢筋间距和墙体宽度,采纳Φ12 或 Φ14 二级钢焊接。要求梯凳筋两端必须用砂轮切割机切平,与墙同宽焊接在梯架钢筋上,梯架筋间距为 H-2d1-2d2-2h(d1 为竖向钢筋直径,d2 为水平钢筋直径,h 墙体保护层厚度),每两根梯凳筋控制一根墙体竖向钢筋,使其不偏位、不跑位。使用说明:用来控制墙体竖向钢筋间距,一般放置在距墙模板上口 100mm 处,使竖向钢筋置于两梯凳钢筋中间,并与墙体竖向钢筋用绑扎丝绑牢,待混凝土浇筑完毕后拆除出来周转使用。水平梯子筋大样图:水平梯子筋照片:(2)竖向梯子筋制作方法:梯架钢筋与墙竖向钢筋同规格、同牌号,要求 2 根梯架钢筋一长一短,留出绑扎搭接接头错开距离 L,上中下至少设置3 根与墙同宽的梯凳筋兼做撑筋(内剪力墙适用),两端必须用砂轮切割机切平并涂上防锈漆,其余梯凳筋长度应为 H-10mm(即梯凳筋端头保护层为 5mm),梯凳筋与梯架筋点焊即可。使用说明:用来控制墙体水平钢筋间距,梯子筋距柱边 50cm左右开始设置,设置间距不大于 4m,且每面墙至少设置两道。绑扎墙体水平筋前,先将本层竖向梯子筋与下层甩出的梯子筋绑扎固定好(竖向梯子筋位置可不设墙体竖向钢筋,由梯子筋代替),根据竖向梯子筋分档间距安放水平筋,调平调正,绑扎牢固。水平梯子筋竖向梯子筋大样图:LH=墙厚墙厚a aaaaaaaah端 头 涂防锈漆与 墙 竖筋 同 规格Φ12钢筋墙体立面示意图A—A剖面图504000竖向钢筋间距水平钢筋间距BBA墙长度不足 4m 时竖向定位架放置暗柱竖向定位筋〈 4000竖向梯子筋照片:2、柱子定位筋制作方法:采纳 Φ14 二级钢焊接,根据柱子主筋间距焊接卡槽,卡槽应比钢筋直径略大,内径制作尺寸为 H-2d-2h(d 为柱子主筋直径,h 为柱子保护层厚度)。竖向梯子筋刷防锈漆使 用 说 明 : 柱 子 定 位 筋 设 置 在 楼 板 结 构 标 高 以 上 300 ㎜~400mm 处,在浇筑梁板砼之前将定位钢筋套在柱子上,绑扎牢固,待楼板混凝土浇筑完毕后取下,周转使用。柱定位筋大样图:柱 定 位筋照片:柱定距框柱边线塑料垫块二、钢筋保护层1、墙体钢筋保护层保证措施(1)墙体钢筋保护层保证措施墙体保护层采纳成品塑料卡或砂浆垫块,钢筋绑扎完毕后卡在墙体水平筋上,根据间距 500mm 梅花布置在墙体上。若采纳塑料卡,则需保证塑料卡中心直径同钢...

1、当您付费下载文档后,您只拥有了使用权限,并不意味着购买了版权,文档只能用于自身使用,不得用于其他商业用途(如 [转卖]进行直接盈利或[编辑后售卖]进行间接盈利)。
2、本站所有内容均由合作方或网友上传,本站不对文档的完整性、权威性及其观点立场正确性做任何保证或承诺!文档内容仅供研究参考,付费前请自行鉴别。
3、如文档内容存在违规,或者侵犯商业秘密、侵犯著作权等,请点击“违规举报”。

碎片内容

地产项目钢筋工程标准化施工指引

您可能关注的文档

确认删除?
VIP
微信客服
  • 扫码咨询
会员Q群
  • 会员专属群点击这里加入QQ群
客服邮箱
回到顶部