电脑桌面
添加小米粒文库到电脑桌面
安装后可以在桌面快捷访问

第五章辅助结构系统VIP专享

第五章辅助结构系统_第1页
1/49
第五章辅助结构系统_第2页
2/49
第五章辅助结构系统_第3页
3/49
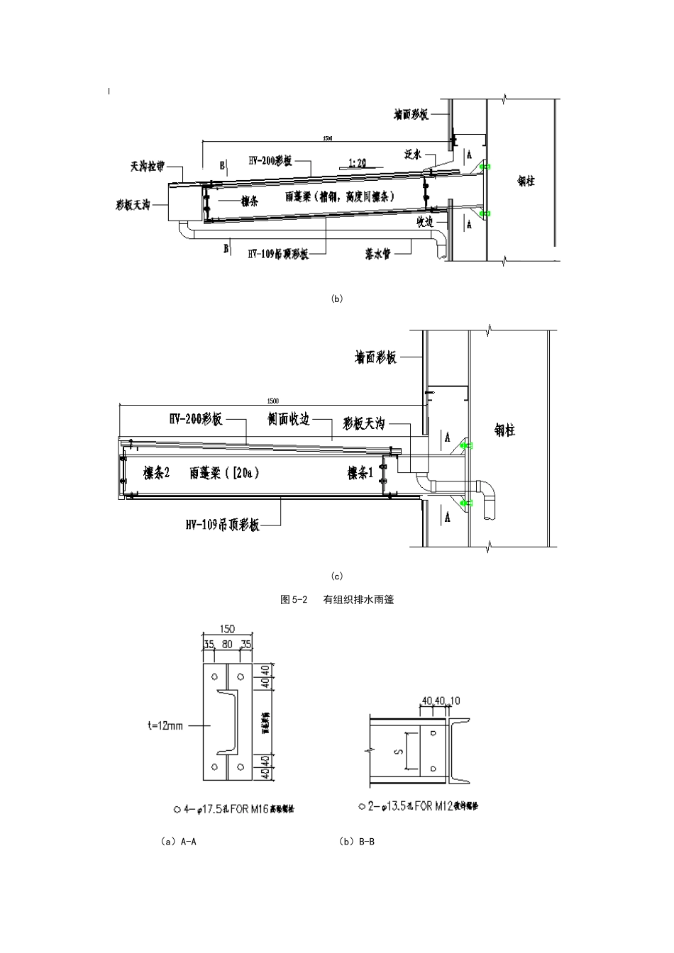
第五章辅助结构系统轻型钢结构的辅助结构系统包括挑檐、雨篷、吊车梁、牛腿、楼梯、栏杆、检修平台和女儿墙等,它们构成了轻型钢结构完整的建筑和结构功能。第一节 雨篷和挑檐一、雨篷钢结构雨篷同钢筋混凝土结构雨篷一样,按排水方式可分为有组织排水和自由落水两种。钢结构雨篷的主要受力构件为雨篷梁,其常用的截面形式有轧制普通工字钢、槽钢、H型钢、焊接工字形截面等,当雨篷的造型为复杂的曲线时亦可选用矩形管或箱形截面等。在轻型门式刚架结构中,雨篷宽度通常取柱距,即每柱上挑出一根雨篷梁,雨篷梁间通过 C 型钢连接形成平面。挑出长度通常为 1.5m 或更大,视建筑要求而定。雨篷梁可做成等截面或变截面,截面高度应按承载能力计算确定。通常情况下雨篷梁挑出的长度较小,按构造做法,其截面做成与其相连的 C 型钢截面同高:当柱距为 6m 时,连接雨篷梁的 C 型钢为 16#,雨篷梁亦取 16#槽钢;当柱距为 9m 时,连接雨篷梁的 C 型钢为 24#,雨篷梁取 25#槽钢;有组织排水的雨篷可将天沟设置在雨篷的根部或将天沟悬挂在雨篷的端部,雨篷四周设置凸沿,以便能有组织的将雨水排入天沟内。图 5-1~5-3 为几种常见雨篷的做法。 (a) (b) 图 5-1 自由落水雨篷(a)(b)(c)图 5-2 有组织排水雨篷 (a)A-A (b)B-B(c)C-C图 5-3 雨篷节点详图二、挑檐在轻型门式刚架厂房结构中,通常将天沟(彩钢或不锈钢)放置在挑檐上,形成外天沟。挑檐挑出构件的间距取柱距,即挑出构件作为主刚架的一部分,挑出构件之间由 C 型钢檩条连接,。图 5-4 所示为典型的挑檐构造。图 5-4 典型的挑檐构造 挑檐柱承受 C 型钢墙梁传递轻质墙体的竖向荷载和风荷载,挑檐梁主要承受考虑天沟积水满布荷载或积雪荷载。挑檐各构件(挑檐柱、挑檐梁)截面通常采纳轧制工字钢或高频 H 型钢,截面大小由承载力计算确定。挑檐计算简图如图 5-5 所示,将挑檐柱和挑檐梁示作一个整体,端部与刚架柱固接,即作为悬臂构件计算。通常情况下轻钢厂房结构的挑檐所承受的荷载较小,截面多选择 200 高的高频焊接 H 型钢。(a)(b)图 5-5 挑檐结构计算简图第二节 吊车梁和牛腿一、吊车梁概述直接支承吊车轮压的受弯构件有吊车梁和吊车桁架,一般设计成简支结构。吊车梁有型钢梁、组合工字形梁及箱形截面梁等(见图 5-6);吊车桁架常用截面形式为上行式直接支承吊车桁架和上行式间接支承吊车桁架(见图 5-7)。(a) (b)...

1、当您付费下载文档后,您只拥有了使用权限,并不意味着购买了版权,文档只能用于自身使用,不得用于其他商业用途(如 [转卖]进行直接盈利或[编辑后售卖]进行间接盈利)。
2、本站所有内容均由合作方或网友上传,本站不对文档的完整性、权威性及其观点立场正确性做任何保证或承诺!文档内容仅供研究参考,付费前请自行鉴别。
3、如文档内容存在违规,或者侵犯商业秘密、侵犯著作权等,请点击“违规举报”。

碎片内容

第五章辅助结构系统

确认删除?
VIP
微信客服
  • 扫码咨询
会员Q群
  • 会员专属群点击这里加入QQ群
客服邮箱
回到顶部