电脑桌面
添加小米粒文库到电脑桌面
安装后可以在桌面快捷访问

高压开关安装交底记录

高压开关安装交底记录_第1页
1/7
高压开关安装交底记录_第2页
2/7
高压开关安装交底记录_第3页
3/7
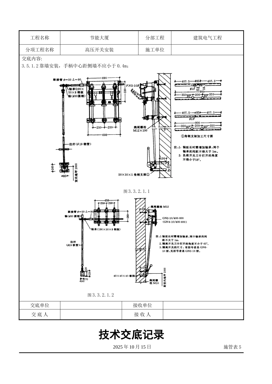
技术交底记录2025 年 10 月 15 日施管表 5工程名称节能大厦分部工程建筑电气工程分项工程名称高压开关安装施工单位交底内容:1、依据标准:《建筑工程施工质量验收统一标准》GB50300-2001《建筑电气工程施工质量验收法律规范》GB50303-20252、施工准备2.1 设备及材料要求:2.1.1 高压开关设备规格、型号、电压等级应符合设计要求2.1.2 设备应装有铭牌,注明生产厂家及规格、型号,并有产品合格证及技术文件。2.1.3 设备附件齐全,外观检查完好,瓷件无破损及裂纹。2.1.4 安装用的材料均应有合格证,材料规格型号符合设计要求,型钢无明显锈蚀。除地脚螺栓外,其它紧固螺栓及垫圈均应采纳镀锌件。2.2 主要机具:2.2.1 安装机具:电锤、电钻、型钢切断机、电焊机、气焊工具。2.2.2 一般工具:电工工具、手锤、扳手、水平尺、尺类、线坠、高凳。2.3 作业条件:2.3.1 土建工程基本施工完毕、墙面、屋顶喷浆刷漆完毕,无漏水。门窗玻璃安齐,门加锁。2.3.2 预留、预埋件符合设计要求。2.3.3 与高压开关有关的电气设备(如开关柜、变压器)安装完毕,检验合格。2.3.4 施工图纸及技术资料齐全,并有可靠的安全、消防措施。2.3.5 安装场地清理洁净,有适度照明,必须时脚手架搭设安全可靠。3、操作工艺3.1 工艺流程:设备开箱点件→型钢支架制作安装→设备安装→操作机构安装调整→引线安装→设备及支架接地(接零)→耐压试验→送电运行验收交底单位接收单位交 底 人接 收 人技术交底记录2025 年 10 月 15 日施管表 5工程名称节能大厦分部工程建筑电气工程分项工程名称高压开关安装施工单位交底内容:3.2 设备开箱点件:3.2.1 设备开箱点件应由安装、供货、建设等单位共同进行。并做好详细记录。3.2.2 根据设备清单及技术资料,核对设备规格型号是否符合设计要求,附件是否齐全,并有产品合格证。3.2.3 设备外观检查:框架是否锈蚀,有无开焊或变形,绝缘瓷件有无坏损和裂纹,拉撑绝缘子两头螺栓是否牢固。接线端子及载流部分应清洁,且接触良好,触头镀银层无脱落。3.2.4 消弧件齐全,无变形及坏损。3.2.5 负荷开关保险管测量无断丝。3.3 型钢支架制作安装:3.3.1 高压开关安装固定方式一般有三种:3.3.1.1 采纳混凝土灌注燕尾螺栓靠墙直接安装;3.3.1.2 采纳预埋钢板安装,安装时先加工一套与设备框架尺寸相同的型钢支架,将支架焊在预埋钢板上,然后安装设备;3.3.1.3 采纳穿墙螺栓安装。不管采纳那种方式安装...

1、当您付费下载文档后,您只拥有了使用权限,并不意味着购买了版权,文档只能用于自身使用,不得用于其他商业用途(如 [转卖]进行直接盈利或[编辑后售卖]进行间接盈利)。
2、本站所有内容均由合作方或网友上传,本站不对文档的完整性、权威性及其观点立场正确性做任何保证或承诺!文档内容仅供研究参考,付费前请自行鉴别。
3、如文档内容存在违规,或者侵犯商业秘密、侵犯著作权等,请点击“违规举报”。

碎片内容

高压开关安装交底记录

您可能关注的文档

确认删除?
VIP
微信客服
  • 扫码咨询
会员Q群
  • 会员专属群点击这里加入QQ群
客服邮箱
回到顶部