电脑桌面
添加小米粒文库到电脑桌面
安装后可以在桌面快捷访问

owa防火型烤漆龙骨施工工艺VIP免费

owa防火型烤漆龙骨施工工艺_第1页
1/5
owa防火型烤漆龙骨施工工艺_第2页
2/5
owa防火型烤漆龙骨施工工艺_第3页
3/5
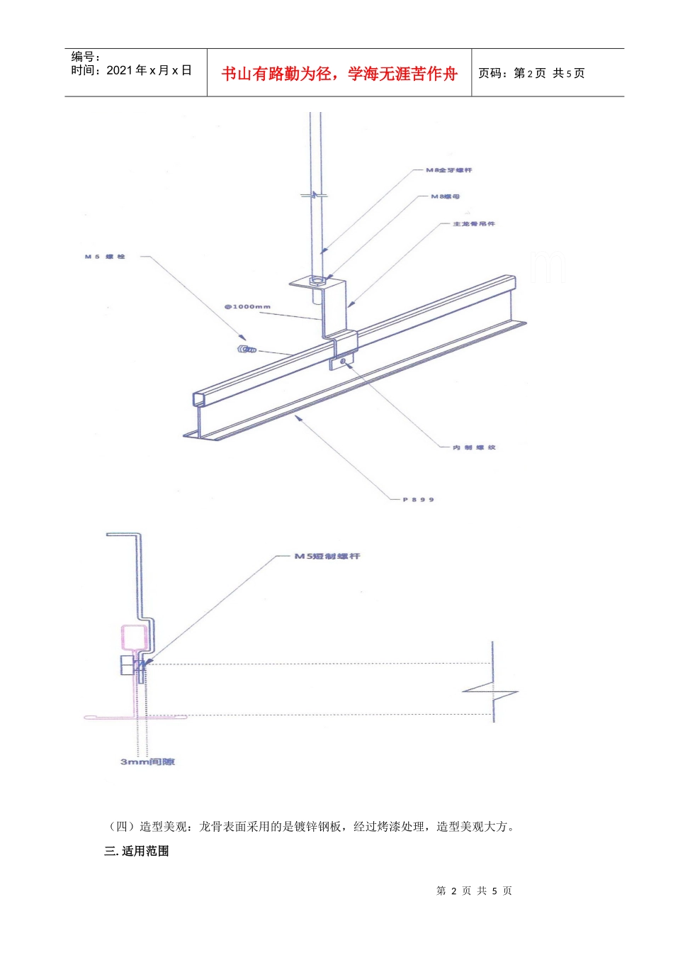
第1页共5页编号:时间:2021年x月x日书山有路勤为径,学海无涯苦作舟页码:第1页共5页OWA防火型烤漆龙骨施工工艺一.前言OWA防火烤漆龙骨是欧洲和美国的一个矿棉板安装标准,中国目前还没有这个标准。其原理是高温状况下,一般龙骨会变软、拉长、下垂,致使矿棉板脱落,而防火龙骨会收缩而不下垂,所以整个矿棉板结构延缓垮塌,以起到隔热、阻燃的目的。二.工法特点(一)优良的防火性能防火龙骨的主龙骨上的防火收缩孔,这个孔的大小、位置、形状都有严格的规定,这样才能保证龙骨在高温状况下不伸长,而是通过定向扭曲而收缩。次龙骨和主龙骨连接特殊接头,目的也是为了保证在高温状况下不伸长,而是定向收缩。(二)超强的强度(平整度、直线度)按照德国OWA公司的质量标准,这款防火烤漆龙骨只能用以0.4mm厚冷轧连续热镀锌钢带和烤漆带为原料,通过冷弯工艺,复合轧制而成的合理“T”型断面结构的薄壁型材。所以也是目前国内强度最高的一款烤漆龙骨,用这款龙骨施工的平整度、线条的直线度是其它T型烤漆龙骨无法比拟的。(三)结构合理:采用经济放置式结构,特殊连接方法,组合装卸方便,节省工时、施工简单。第2页共5页第1页共5页编号:时间:2021年x月x日书山有路勤为径,学海无涯苦作舟页码:第2页共5页(四)造型美观:龙骨表面采用的是镀锌钢板,经过烤漆处理,造型美观大方。三.适用范围第3页共5页第2页共5页编号:时间:2021年x月x日书山有路勤为径,学海无涯苦作舟页码:第3页共5页适用于防火等级要求高的体育馆、博物馆、展览馆、游泳馆、图书馆、影剧院、教堂、音乐停、演播厅、会议厅等建筑内的吊顶。四.工艺原理其原理是在高温状况下,一般龙骨会变软、拉长、下垂,致使矿棉板脱落。而防火龙骨通过防火收缩孔会收缩而不下垂,所以整个矿棉板结构延缓垮塌,以起到隔热、阻燃的目的。而次龙骨和主龙骨连接特殊接头,目的也是为了保证在高温状况下不伸长,而是定向收缩。五.施工工艺流程及操作要点(一)工艺流程:吊顶标高弹水平线→划龙骨分档线→安装水电管线→安装主龙骨→安装次龙骨→安装罩面板(二)材料要求这款龙骨是以0.4mm厚冷轧连续热镀锌钢带和烤漆带为原料,通过冷弯工艺,复合轧制而成的合理“T”型断面结构的薄壁型材,所以是目前国内强度最高的一款烤漆龙骨,用这款龙骨施工的平整度、线条的直线度在国内无法比拟。(三)施工工艺1.吊顶标高弹水平线根据楼层标高水平线,用尺竖向量至吊顶设计标高,沿墙、柱四周弹吊顶标高水平线。2.划龙骨分档线按设计要求的主、次龙骨间距布置,在已弹好的吊顶标高水平线上划龙骨分档线。3.安装主龙骨吊杆弹好吊顶标高水平线及龙骨分档位置线后,确定吊杆下端头的标高,按主龙骨位置及吊挂间距,将通丝吊杆一端与楼板连接固定。4.安装主龙骨(1)配装吊杆螺母。(2)在主龙骨上安装吊挂件。(3)安装主龙骨将组装好吊挂件的主龙骨,按分档线位置使吊挂件穿入相应的吊杆螺栓,拧好螺母。(4)主龙骨相接处装好连接件,拉线调整标高、起拱和平直。(5)安装洞口附加主龙骨,按图集相应节点构造,设置连接卡固件。5.钉固边龙骨边龙骨采用射钉固定,设计无要求时,射钉间距为1000mm。第4页共5页第3页共5页编号:时间:2021年x月x日书山有路勤为径,学海无涯苦作舟页码:第4页共5页6.安装次龙骨次龙骨应在安装罩面板时,每装一块罩面板先后各装一根次龙骨。7.安装罩面板在安装罩面板前必须对吊顶内的各种管线进行检查验收,并经打压试验合格后,才允许安装罩面板。T型轻钢骨架通长主龙骨安装完毕,经检查标高、间距、平直度和吊挂荷载符合设计要求,垂直于通长主龙骨弹分块及次龙骨线。罩面板安装由吊顶的中间行次龙骨的一端开始,先装一根次龙骨,再将罩面板托入T形次龙骨翼缘上,然后安装另一侧次龙骨。按上述程序分行安装,最后分行拉线调整T形龙骨。六.材料与设备主要机具设备表序号设备名称规格、型号数量单位1激光经纬仪GJD21台2切割机J3GG-4001台3电锤Z1C-DS-263把4电钻FDVA5把5铆钉枪HANDR5把6壁纸刀10把7配电箱DPXL3个8灭火器2个七.质量控制(一)质量控制1.技术控制:认真熟悉图纸,正确贯彻按图施工的原则。...

1、当您付费下载文档后,您只拥有了使用权限,并不意味着购买了版权,文档只能用于自身使用,不得用于其他商业用途(如 [转卖]进行直接盈利或[编辑后售卖]进行间接盈利)。
2、本站所有内容均由合作方或网友上传,本站不对文档的完整性、权威性及其观点立场正确性做任何保证或承诺!文档内容仅供研究参考,付费前请自行鉴别。
3、如文档内容存在违规,或者侵犯商业秘密、侵犯著作权等,请点击“违规举报”。

碎片内容

owa防火型烤漆龙骨施工工艺

您可能关注的文档

确认删除?
VIP
微信客服
  • 扫码咨询
会员Q群
  • 会员专属群点击这里加入QQ群
客服邮箱
回到顶部