电脑桌面
添加小米粒文库到电脑桌面
安装后可以在桌面快捷访问

SIGARELC气体灭火控制盘使用说明VIP专享VIP免费

SIGARELC气体灭火控制盘使用说明_第1页
1/6
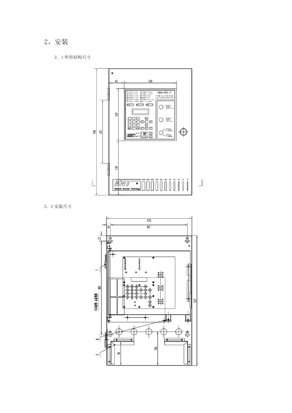
SIGARELC气体灭火控制盘使用说明_第2页
2/6
SIGARELC气体灭火控制盘使用说明_第3页
3/6
SIGA-REL-C 气体灭火控制盘 使用说明书 1 操作说明 1.1 事件监视界面 气体灭火控制器接通电源后完成初始化后,即进入监视状态。液晶分为两行,第一行最左边是查询图标,在查询历史事件时使用,见“历史事件查询“部分。图标后面是当前的一条事件或是一条历史事件的所有信息,包括事件名,事件发生的时间和日期,其中时间和日期分两次滚动显示。液晶右下角实时显示当前时间,也是滚动显示。 控制器记录的所有事件分为高低两种优先级,火警事件、防火设备和电磁阀启动、声光警报器启动、紧急启动、紧急停止(只在释放延时过程中起作用)和手自动开关切换等事件属于高优先级事件,其它如故障、设备停止等均为低优先级事件。如果当前显示的是高优先级事件,且不是在历史事件查询状态下,此时有低优先级的事件发生的话,后者并不会显示出来,但可它会记录在历史事件里。 如果有火警或是防火设备启动等事件,可以记录该事件并立刻在液晶上显示,并发出警报声,详细介绍见“报警状态”部分。这 时如果产 生故障,只会记录该故障事件和亮 故障灯 ,而 不会显示出来,且只有当故障发生时火警声已 被 消 音 ,才 可以发故障声; 如果当前没 有火警或是防火设备启动等高优先级事件,有故障产 生时可以马 上显示出来,并且亮 故障灯 和发出故障声。另 外 ,在某 一故障恢 复 时,会记录该恢 复事件,如果所有故障都 消 失 ,则 故障灯 灭,故障声停止。 如果气体释放延时正 在进行,则 不会显示其它任 何 事件,直 到 延时被 中止或结 束 。 1.2 按 键 及 功 能 菜 单 在监视界面下,按 下【 自检 】 键 ,可对 控制器上的两个 蜂 鸣 器、面板 上的所有灯 和液晶进行检 测 。按【 ∧ 】 键 或【 ∨ 】 键 可查询历史事件,详细介绍见“历史事件查询”部分。按 下控制器下方 的【 启动】 或【 停止】 键 ,可以启动或停止声光警报器。【 复 位 】 键 的功 能 尚 未 定 义 。 如果没 有火警、故障和按 键 事件的状态持 续 超 过 10 秒 钟 ,则 会跳 出监视界面显示 logo,但实时时间仍能 显示。这 时如果有火警、故障或按 键 ,则 会马 上跳 出logo 显示界面,进入相 关界面。对 于按 键 (不包括紧急启动和手自动开关),只是使液晶退 出logo 显示界面,并不会响 应 该按 键 的功 能 。如果logo 显示超 过5 秒 钟 ,则 ...

1、当您付费下载文档后,您只拥有了使用权限,并不意味着购买了版权,文档只能用于自身使用,不得用于其他商业用途(如 [转卖]进行直接盈利或[编辑后售卖]进行间接盈利)。
2、本站所有内容均由合作方或网友上传,本站不对文档的完整性、权威性及其观点立场正确性做任何保证或承诺!文档内容仅供研究参考,付费前请自行鉴别。
3、如文档内容存在违规,或者侵犯商业秘密、侵犯著作权等,请点击“违规举报”。

碎片内容

SIGARELC气体灭火控制盘使用说明

确认删除?
VIP
微信客服
  • 扫码咨询
会员Q群
  • 会员专属群点击这里加入QQ群
客服邮箱
回到顶部