现场签证管理作业指引编制人编制日期审核人签发人修订记录日 期修订状态修改内容修改人审核人签发人1.目 的为 了 加 强 现 场 签 ...
现场活动组织作业指引 编制:____ 日期:____ 审核:____ 日期:____ 批准:____ 日期:____ 修 订 记 ...
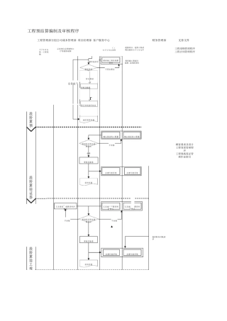
1.目的法律规范公司物资采购过程的控制。2.范围适用于公司各部门。3.职责3.1 人力资源部、客户关系部、财务管理部门负责本指引的制订、...
物业移交验收工作指引编制: 日期: 审核: 日期: 批准: 日期: 修订记录日期修订状态修改内容修改人审核人批准人流程概述流程目的法律规...
附件清洁生产审核评估与验收指南第一章 总 则第一条 为科学法律规范推动清洁生产审核工作,保障清洁生产审核质量,指导清洁生产审核评估...
混凝土工程作业指引编制林立修日期2025-7-30初审冯健宗日期2025-10-10审核伍献忠日期2025-10-13批准关建辉日期2025-10-13修订记录日 期修...
测量放线作业指引编制林立修日期2025-7-1初审冯健宗日期2025-7-6审核伍献忠日期2025-7-6批准关建辉日期2025-7-8修订记录日 期修订状态修改...
1 目的法律规范公司对服务质量、设备设施的测量工具管理及方法使用。2 范围 适用于公司各部门。3 职责3.1客户关系部负责督促各部门对各...
1.目的1.1 法律规范泳池维修改造流程,避开施工不当造成的风险。2.范围2.1 本指引适用于武汉物业公司所管理的泳池。3.职责3.1 经营部班...
文件编号: 版 号: 受 控 号: 标题: 橡胶油涂层的品质检查指引发行日期: 页 号: 第 1 页 共 7 页 一 目的1. 法律规范橡胶...
XX 集团 “吉林 XX 世纪城”施工图设计指引目录一、 设计总说明二、 建筑专业设计指引三、 结构专业设计指引四、 水暖专业设计指引...
1. 目标使项目工程材料设备采购过程满足项目建设需要,保证质量的前提下,节约成本支出。2. 范围本指引适用于公司各工程项目材料设备的采...
材料堆放作业指引(土建部分)编制刘 超日期2025-09-17初审冯健宗日期2025-09-20审核伍献忠日期2025-09-23批准关建辉日期2025-09-23修订记录...
北京李宁体育用品有限公司招聘面试指引人力资源部(2025 年版)总论招聘面试选拔人才是公司人力资源管理工作中最重要的环节之一,错误的选...
景观绿化工程质量通病及防治指引手册目录一、总则 .....................................................................................
无效成本管理工作指引1. 目的与作用1.1. 培育、提高全员成本意识;1.2. 分析项目成本,找出成本构成的有效和无效部分,形成合理目标成本...
施工图审查作业指引(电气、给排水、暖通)编制日期审核日期批准日期修订记录日 期修订状态修订内容修订人审核人批准人一、电气专业1.1. ...
大唐地产集团厦门城市公司新项目启动会管理操作指引(试行版)第一部分 启动会概念一、定义:启动会是项目在取得土地后,为加快项目前期开...
天津 XX 律师事务所文书送达操作指引文件类别: 操作指引 文件编号: HW-CY-1301 撰 写: 律师事务所 版 本: 第 5 版发布日...
推广策略编写作业指引 编制:____ 日期:____ 审核:____ 日期:____ 批准:____ 日期:____ 修 订 记 ...

