电脑桌面
添加小米粒文库到电脑桌面
安装后可以在桌面快捷访问

架高85米扣件式钢管脚手架钢丝绳分段卸荷2次VIP免费

架高85米扣件式钢管脚手架钢丝绳分段卸荷2次_第1页
1/6
架高85米扣件式钢管脚手架钢丝绳分段卸荷2次_第2页
2/6
架高85米扣件式钢管脚手架钢丝绳分段卸荷2次_第3页
3/6
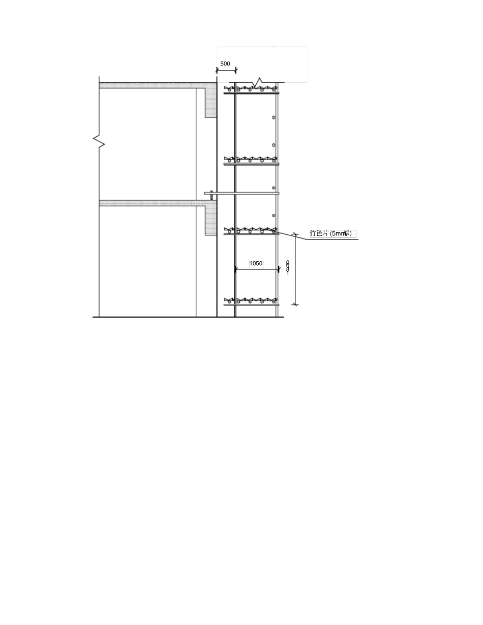
10501800500竹笆片 (5mm厚)180012 0012005001050大横杆实际弯曲应力计算值σ=33.211N/mm2 小于抗弯强度设计值 [f]=205N/mm2,满足要求!大横杆实际最大挠度计算值ν=0.578mm 小于最大允许挠度值 min(1200/150,10)=8.000mm,满足要求!10503503503500.048kN/m1.499kN1.499kN0.530.5310.53·10503503503500.04kN/m1.081kN1.081kN1.72小横杆实际弯曲应力计算值σ=100.993N/mm2 小于抗弯强度设计值 [f]=205N/mm2,满足要求!小横杆实际最大挠度计算值ν=1.720mm 小于最大允许挠度值 min(1050/150,10)=7.000mm,满足要求!10503003503503503000.048kN/m0.781kN1.499kN1.499kN1.396kN0.678kN1.3281.3120.1880.2041.7031.720.6930.678作业层内立杆扣件抗滑承载力验算:内立杆受到的竖向作用力R=3.809kN ≤8.000kN,内立杆采用单扣件,其抗滑承载力的设计计算满足要求! 作业层外立杆扣件抗滑承载力验算: 外立杆受到的竖向作用力R=2.109kN ≤8.000kN,外立杆采用单扣件,其抗滑承载力的设计计算满足要求!立杆实际长细比计算值 λ =169.811 小于容许长细比 210,满足要求!组合风荷载时,第1段( 高度0.000-27.300 米) 外立杆实际抗压应力计算值σ =179.369N/mm2 小于抗压强度设计值[f]=205.000N/mm2,满足要求!组合风荷载时, 第2段( 高度27.300-54.300 米) 外立杆实际抗压应力计算值σ =180.273N/mm2小于抗压强度设计值 [f]=205.000N/mm2,满足要求!组合风荷载时, 第3段( 高度54.300-82.500 米) 外立杆实际抗压应力计算值σ =167.711N/mm2小于抗压强度设计值 [f]=205.000N/mm2,满足要求!不组合风荷载时,第1段( 高度0.000-27.300米) 外立杆实际抗压应力计算值σ =159.674N/mm2 小于抗压强度设计值 [f]=205.000N/mm2,满足要求!不组合风荷载时,第 2段( 高度 27.300-54.300 米) 外立杆实际抗压应力计算值σ=153.714N/mm2 小于抗压强度设计值 [f]=205.000N/mm2,满足要求!不组合风荷载时,第 3段( 高度 54.300-82.500 米) 外立杆实际抗压应力计算值σ=130.523N/mm2 小于抗压强度设计值 [f]=205.000N/mm2,满足要求!第 1段( 高度0.000-27.300 米)内立杆实际抗压应力计算值σ =155.002N/mm2 小于抗压强度设计值 [f]=205.000N/mm2,满足要求!第2段( 高度27.300-54.300 米) 内立杆实际抗压应力计算值σ =149.168N/mm2 小于抗压强度设计值 [f]=205.000N/mm2,满足要求!第3段...

1、当您付费下载文档后,您只拥有了使用权限,并不意味着购买了版权,文档只能用于自身使用,不得用于其他商业用途(如 [转卖]进行直接盈利或[编辑后售卖]进行间接盈利)。
2、本站所有内容均由合作方或网友上传,本站不对文档的完整性、权威性及其观点立场正确性做任何保证或承诺!文档内容仅供研究参考,付费前请自行鉴别。
3、如文档内容存在违规,或者侵犯商业秘密、侵犯著作权等,请点击“违规举报”。

碎片内容

架高85米扣件式钢管脚手架钢丝绳分段卸荷2次

确认删除?
VIP
微信客服
  • 扫码咨询
会员Q群
  • 会员专属群点击这里加入QQ群
客服邮箱
回到顶部