电脑桌面
添加小米粒文库到电脑桌面
安装后可以在桌面快捷访问

铁路线路标志预制及埋设

铁路线路标志预制及埋设_第1页
1/10
铁路线路标志预制及埋设_第2页
2/10
铁路线路标志预制及埋设_第3页
3/10
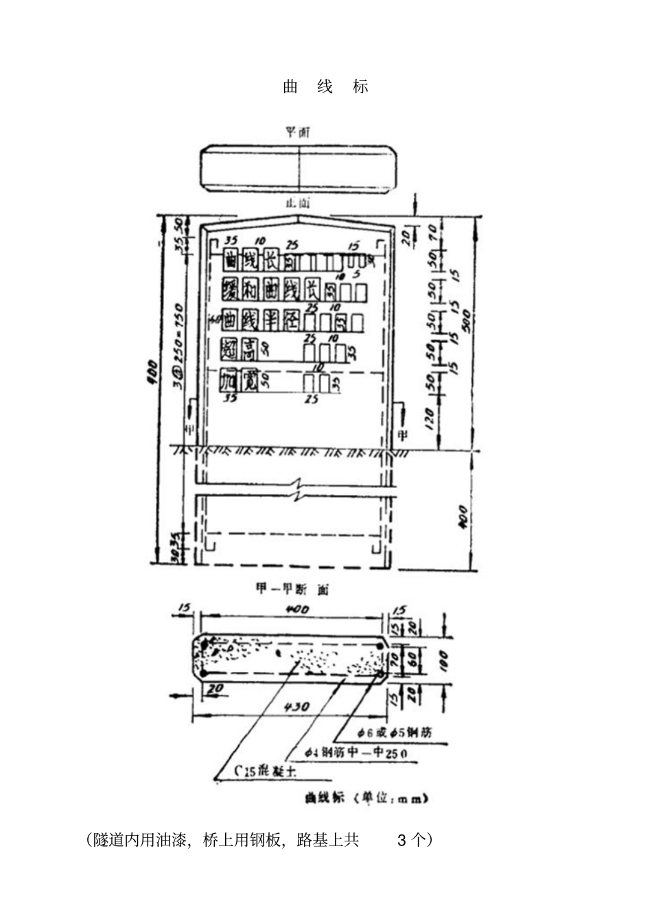
公里标注: 1、单线上设于线路左侧,距左侧钢轨头部外侧不小于2m 2、桥梁和隧道内不设公里标;13 号字(共 1 个: K167+000) 半公里标注:1、单线设于线路左侧,距左侧钢轨头外侧不小于2m;2、桥梁和隧道免设;14 号字样(共 2 个: K165+500;K166+500) 曲线标(隧道内用油漆,桥上用钢板,路基上共3 个)注:桥上用铁板写好挂栏杆上,隧道内用油漆写于边墙,底边高于轨面 1m,漆成白底,黑字。(路基上 90cm 的 7 个;桥上 40cm 的 3 个)桥标注:桥号标安置于列车前进方向左侧桥头前,单线桥一桥一个。桥-37为桥编号, 123456 为公里数米数。标注数“ 0~9”见 9 号、12 号字样,汉字“桥”见汉字式样(共 7 个桥标;5个涵标)坡度标注:隧道内仅刷漆,不设砼坡度标,底面高出轨面约2m,并标轨面标高;坡度以千分率表示,面向线路侧划里程,所用数字为10/11/12 号;设于线路左侧,距左侧轨头外侧不小于2m (桥上 2 个钢板;路基上1 个)字体尺寸(高 *宽)字别用处60*40mm 直缓圆隧道内曲线始点及终点标90*60mm 直缓圆曲线起点及终点标50*35mm 缓和曲线半径长超高加宽曲线中点标50*40mm 缓和曲线半径长超高加宽隧道内曲线标170*120mm 桥桥号标120*80mm 平水准点标字号尺寸(高 * 宽)用处14 100*70mm 半公里标13 140*85mm 公里标12 120*60mm 桥号标、坡度标11 80*40mm 水位标、坡度标10 50*35mm 坡度标、水准点标9 60*30mm 桥号标8 40*30mm 隧道曲线标7 35*30mm 隧道曲线标6 35*25mm 曲线中点标5 35*20mm 曲线始点及终点标4 30*20mm 隧道内曲线标、障蔽建筑标3 30*15mm 曲线中点标线路标桩2 19*12mm 曲线始点及终点标、隐蔽建筑标1 15*10mm 隧道内曲线始点及终点标

1、当您付费下载文档后,您只拥有了使用权限,并不意味着购买了版权,文档只能用于自身使用,不得用于其他商业用途(如 [转卖]进行直接盈利或[编辑后售卖]进行间接盈利)。
2、本站所有内容均由合作方或网友上传,本站不对文档的完整性、权威性及其观点立场正确性做任何保证或承诺!文档内容仅供研究参考,付费前请自行鉴别。
3、如文档内容存在违规,或者侵犯商业秘密、侵犯著作权等,请点击“违规举报”。

碎片内容

铁路线路标志预制及埋设

您可能关注的文档

确认删除?
VIP
微信客服
  • 扫码咨询
会员Q群
  • 会员专属群点击这里加入QQ群
客服邮箱
回到顶部